
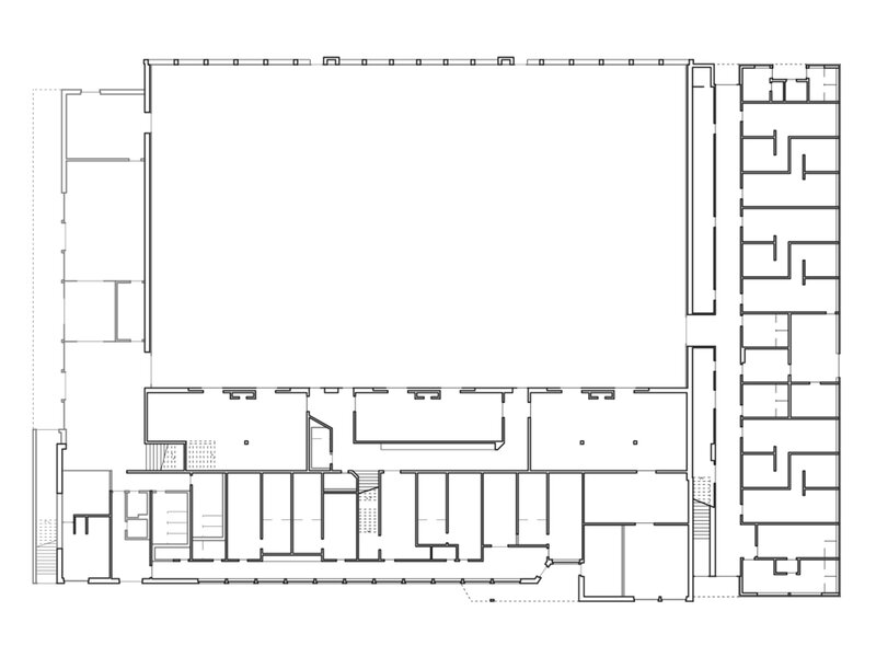
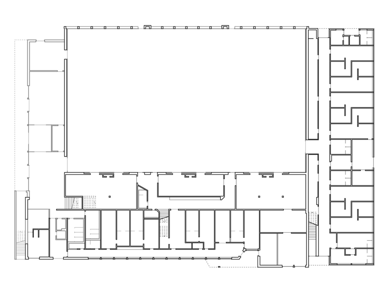
Die Stadt Gossau lancierte 2009 einen Projektwettbewerb in Form einer Skizzenkonkurrenz zur nachhaltigen Sanierung der in die Jahre gekommenen Sporthalle. Das Konzept von RLC überzeugte.
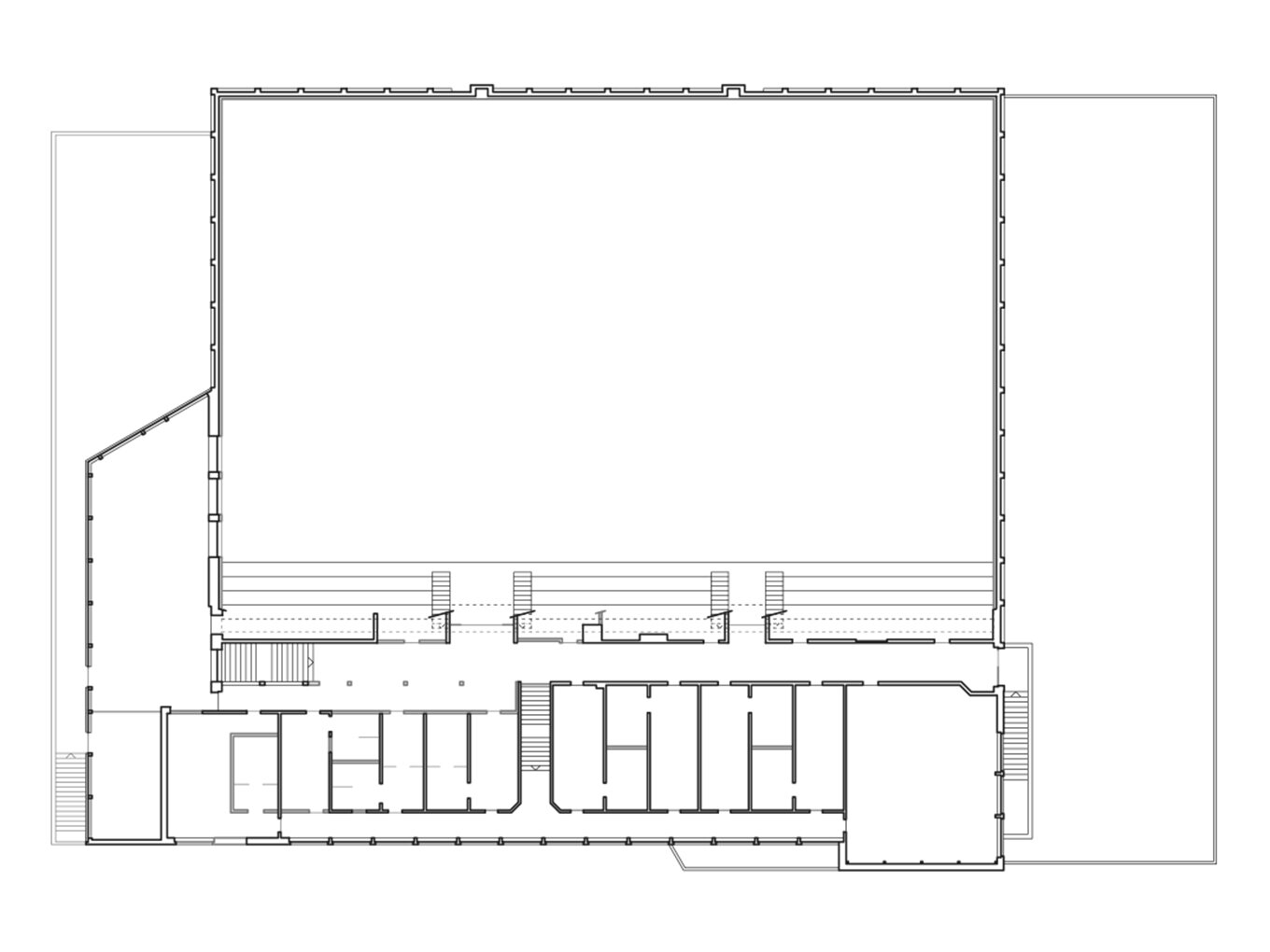
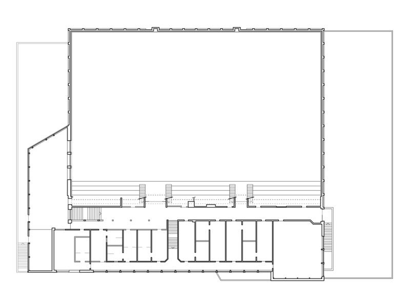
Der Fokus der Baumassnahmen lag im Innern der Halle. Die Oberflächen wurden ganzheitlich erneuert, Sicherheitsdefizite behoben und die Rollstuhlgängigkeit sichergestellt. Die Halle wurde zusätzlich gedämmt und die Akustik verbessert. Alle haustechnischen Sanierungsmassnahmen zielen auf eine Reduktion des Energiebedarfs. Im Erweiterungsbau befindet sich der neue Haupteingang, ein flexibel nutzbarer Schulungs- und VIP-Bereich, neue Toilettenanlagen sowie der neue grosszügige Zugang zur Tribüne, den Garderoben und der Sportlerbeiz.
Das äussere Erscheinungsbild blieb mehrheitlich bestehen. Die gesamte Fassade wurde neu gestrichen, der Dachrand mit einem Stirnband ergänzt und die Dachflächen extensiv begrünt. Durch die ausgeführten Massnahmen während zwölf Monaten ist heute ein nachhaltiger Betrieb der Sporthalle für die nächsten Generationen sichergestellt.



-
Informationen
Bauherrschaft Stadt Gossau Hochbauamt Aufgabe Sanierung Sporthalle Auftragsart Wettbewerb 1. Rang Leistungen Vorstudien, Projektierung, Ausschreibung, Realisierung Planung Wettbewerb 2009 Realisierung 2014–2015
-
Planerteam
Architekt RLC Architekten AG, Rheineck Bauingenieur FBK Ingenieure und Planer AG, St.Gallen HLKSW-Ingenieur: Amstein + Walthert AG, St.Gallen Holzbauingenieur Menig AG, St.Gallen Bauphysik Baumann Akustik & Bauphysik AG, Dietfurt
- Wettbewerb Rang
- Geschossfläche m2
- Gebäudevolumen m3
-
- Wohnüberbauung «Otmarhof», Güttingen
- Güttingen
- Architektur, Wohnen
-
- Mehrfamilienhaus «Wuhrstrasse», Goldach
- Wuhrstrasse 28, 9403 Goldach
- Architektur, Baumanagement, Wohnen
-
- Wohn- und Tagesstätte «Autismus Wyden» Brühlgut Stiftung, Winterthur
- Euelstrasse 52d, 8408 Winterthur
- Architektur, Baumanagement, Fürsorge & Gesundheit, Neubau
-
- Überbauung Areal Alp, St.Margrethen
- St. Margrethen
- aktuell, Areal- und Immobilienentwicklung, Architektur, Wohnen, Büro & Verwaltung, Hotel & Gastro
-
- Einfamilienhaus & Reihen-Einfamilienhäuser «Meierhof» im Eigentum, Muolen
- Muolen
- aktuell, Areal- und Immobilienentwicklung, Architektur, Baumanagement, Wohnen
-
- Zentrumsüberbauung «Rosenhof» Oase-Gruppe, Effretikon
- Effretikon
- Wohnen, Fürsorge & Gesundheit, Architektur, Neubau
-
- Schreinerkompetenzzentrum, St.Margrethen
- St.Margrethen
- Architektur, Areal- und Immobilienentwicklung, Bildung & Forschung
-
- Wohnüberbauung «Tres Terrae», Altstätten
- Altstätten
- Architektur, Wohnen
-
- Wohnüberbauung «Eichwaldhof», Winterthur
- Winterthur
- Architektur, Wohnen
-
- Wohnüberbauung VIVO 2, Amriswil
- Allee-/Freiestrasse, 8580 Amriswil
- Architektur, Wohnen
-
- Alterswohnungen Altersheim, Amriswil // Wettbewerb 1. Rang
- Amriswil
- Architektur, Wohnen, Fürsorge & Gesundheit, Wettbewerb, Generalplanung
-
- Hochregallager JUST Schweiz AG, Rheineck
- Langenhagstrasse 42, 9424 Rheineck
- Architektur, Baumanagement, Industrie & Gewerbe
-
- Kindergarten & Primarschule Felben-Wellhausen // Planerwahlverfahren 1. Rang
- Felben-Wellhausen
- Architektur, Baumanagement, Wettbewerb, Bildung & Forschung
-
- Logistikzentrum Pyropac AG, Sennwald
- Heberrietstrasse 6, 9466 Sennwald
- Architektur, Baumanagement, Industrie & Gewerbe
-
- Sanierung & Aufstockung Mehrfamilienhäuser «Bergholz», Wil
- Bergholzstrasse 26, 28 & 30, 9500 Wil
- Architektur, Wohnen
-
- Sanierung Wohn- und Geschäftshaus «Bühlhof» Steinberggasse, Winterthur
- Winterthur
- Architektur, Baumanagement, Wohnen, Kultur
-
- Aufstockung & Umbau ETH Forschungsgebäude «AgroVet-Strickhof», Lindau
- Lindau
- Architektur, Baumanagement, Bildung & Forschung, Büro & Verwaltung
-
- Wohnüberbauung VIVO 1, Amriswil
- Allee-/Freiestrasse, 8580 Amriswil
- Architektur, Generalplanung, Wohnen
-
- Gesamtsanierung Freibad Eichbüel, Oetwil am See
- Schachenstrasse 6, 8618 Oetwil am See
- Architektur, Freizeit, Sport & Bäder
-
- Ersatzneubauten «Flüeli» Wülflingerstrasse, Winterthur
- Wülflingerstrasse 135 & 137, 8400 Winterthur
- Wohnen, Architektur, Baumanagement
-
- Sanierung Primarschulhaus Feld, Thal
- Thal
- Architektur, Baumanagement, Bildung & Forschung, Kultur
-
- Mieterausbau Klubschule Migros «Clime», Basel
- Basel
- Architektur, Bildung & Forschung
-
- Mieterausbau SWICA «Elefant» Lokstadt, Winterthur
- Zürcherstrasse 31, 8400 Winterthur
- Architektur, Baumanagement, Büro & Verwaltung
-
- Mehrfamilienhaus «Im Wiesen», St. Margrethen
- Wiesen- / Industriestrasse, St. Margrethen
- Architektur, Areal- und Immobilienentwicklung, Wohnen, abgeschlossen
-
- Doppel-Einfamilienhäuser & Terrassenwohnungen «Panorama», Rebstein
- Sonnenbergstrasse, Rebstein
- Architektur, Areal- und Immobilienentwicklung, Wohnen, abgeschlossen
-
- Gesamtsanierung Primarschulhaus Lindenhof, Wil
- Lindenhofstrasse 19, 9500 Wil
- Architektur, Baumanagement, Bildung & Forschung
-
- Erweiterung BOGRAMA AG Turbenthal
- Mettlenstrasse 1, 8488 Turbenthal
- Industrie & Gewerbe, Architektur
-
- Bildungszentrum Polybau und Hauptsitz Gebäudehülle Schweiz, Uzwil // Wettbewerb 1. Rang
- Uzwil
- Büro & Verwaltung, Bildung & Forschung, Wettbewerb
-
- Neubau Schulhaus Breite, Balgach // Planerwahlverfahren 1. Rang
- Balgach
- Wettbewerb, Bildung & Forschung
-
- Zentrumsüberbauung «CLEMATIS», St. Margrethen // Wettbewerb 1. Rang
- St. Margrethen
- Wohnen, Wettbewerb
-
- Wohn- und Gewerbeüberbauung Raiffeisenbank, Goldach // Wettbewerb 1. Rang
- Goldach
- Wohnen, Büro & Verwaltung, Wettbewerb
-
- SFS intec AG Halle 6 Heerbrugg
- Rosenbergsaustrasse 10
- Architektur, Industrie & Gewerbe, Baumanagement
-
- Alterszentrum Hottingen Historisches Haus Wäldli
- Hottingen
- Fürsorge & Gesundheit, Wohnen, Architektur, realisiert, Umbau, Stiftungen, Vereine, Betreiber, Generalplanung
-
- Kath. Pfarrkirche St.Theresia, Rheineck
- 9424 Rheineck
- Architektur, Kultur, realisiert, Umbau, Kirchgemeinden
-
- Erweiterung Schulanlage Chapf, Brütten
- Brütten
- Architektur, Baumanagement, Bildung & Forschung
-
- Wohnen & Einkaufen Migros, Herisau // Wettbewerb 1. Rang
- Kasernenstrasse 18, 9100 Herisau
- Architektur, Wohnen, Handel & Verkauf, Hotel & Gastro, Neubau, Wettbewerb, Baumanagement
-
- Pflegeheim PeLago Rorschacherberg
- Wiesenstrasse 14, 9404 Rorschacherberg
- Architektur, Fürsorge & Gesundheit, Umbau, Sanierung, realisiert, Stiftungen, Vereine, Betreiber
-
- Zentrumsüberbauung St.Margrethen // Wettbewerb 1. Rang
- Bahnhofstrasse Südwest, 9430 St.Margrethen
- Architektur, Wohnen, Handel & Verkauf, Neubau, realisiert, Generalunternehmer, Wettbewerb
-
- Gesamtsanierung Personalhäuser Hochgebirgsklinik Davos // Wettbewerb 1. Rang
- Davos
- Wettbewerb, Fürsorge & Gesundheit, Wohnen
-
- Neubau Alterswohnungen, Amriswil // Wettbewerb 1. Rang
- Amriswil
- Wohnen, Wettbewerb
-
- Mühle Rickenbach
- Mühlestrasse, 9532 Rickenbach TG
- Wohnen, Architektur, realisiert, Neubau, Immobilienverwaltungen
-
- Brütsch Elektronik AG, Beringen
- Bodenäcker-/Anthoptstrasse, 8222 Beringen
- Industrie & Gewerbe, Architektur
-
- Forum St.Katharinen St.Gallen
- Katharinengasse 15/21, 9004 St.Gallen
- Architektur, Büro & Verwaltung, Umbau, realisiert, KMU's, Kultur
-
- Digitalhotel Neu-Schönstatt Quarten // Planerwahlverfahren 1. Rang
- Josef-Kentenich-Weg 1, 8883 Quarten
- Architektur, Hotel & Gastro, Umbau, Sanierung, realisiert, Wettbewerb, Stiftungen, Vereine, Betreiber, Wettbewerb
-
- Geschäftshaus Westoffice St.Gallen
- Kürsteinerstrasse 2, 9015 St. Gallen
- Architektur, Büro & Verwaltung, Neubau, realisiert, Immobilienverwaltungen
-
- Migros Fitnesspark Regensdorf
- Zentrum 3, 8105 Regensdorf
- Architektur, Freizeit, Sport & Bäder, Sanierung, realisiert, Grossverteiler, Betriebsgesellschaften
-
- Fitnesspark Stadelhofen Zürich
- Hufgasse 10, 8008 Zürich
- Architektur, Freizeit, Sport & Bäder, Einbau, realisiert, Grossverteiler, Betriebsgesellschaften
-
- Einkaufszentrum Volkiland Volketswil
- Industriestrasse 1, 8604 Volketswil
- Architektur, Handel & Verkauf, Sanierung, realisiert, Grossverteiler, Betriebsgesellschaften
-
- Besucherzentrum JUST Schweiz AG
- Unterdorf 62, 9428 Walzenhausen
- Architektur, Handel & Verkauf, Büro & Verwaltung, Neubau, realisiert, Institutionelle Bauherren, Anleger, Private
-
- The Circle Zürich Airport
- Zürich Airport
- Architektur, Büro & Verwaltung, Handel & Verkauf, Hotel & Gastro, realisiert, Neubau, Generalunternehmer
-
- Frei- und Hallenbad Opfikon
- Ifangstrasse 13, 8152 Opfikon
- Freizeit, Sport & Bäder, Architektur
-
- Wisenthalle & Bibliothek Wiesendangen
- Schulstrasse 27, 8542 Wiesendangen
- Architektur, Bildung & Forschung, Freizeit, Sport & Bäder, realisiert, Umbau, Erweiterung, Öffentliche Hand, Ortsgemeinden
-
- Gewerbehaus Deisrüti Seuzach // Wettbewerb 1. Rang
- Deisrütistrasse 21, Ober-Ohringen
- Architektur, Büro & Verwaltung, Neubau, Wettbewerb, Immobilienverwaltungen, Wettbewerb
-
- Mehrfamilienhäuser Unterrain Teufen
- Unterrain 11, 9053 Teufen AR
- Architektur, Baumanagement, Wohnen
-
- Pädagogisches Zentrum Pestalozzihaus: Teilprojekt Schulhaus und Mehrzweckhalle
- Alte St. Gallerstr. 1, 8352 Elsau-Räterschen
- Architektur, Bildung & Forschung, Freizeit, Sport & Bäder, Neubau, Sanierung, Umbau, realisiert, Stiftungen, Vereine, Betreiber
-
- Neubau Waldeggstrasse Münchwilen // Wettbewerb 1. Rang
- Münchwilen
- Wettbewerb, Wohnen
-
- Raiffeisenbank Unteres Rheintal Rheineck
- Bahnhofstrasse 38, 9424 Rheineck
- Architektur, Büro & Verwaltung, realisiert, Umbau, Institutionelle Bauherren, Anleger, Private, Grossverteiler, Betriebsgesellschaften
-
- Primarschulhaus Nideren Trogen // Wettbewerb 1. Rang
- Nideren 5, 9043 Trogen
- Architektur, Bildung & Forschung, Erweiterung, Neubau, Wettbewerb, Öffentliche Hand, Ortsgemeinden, Wettbewerb
-
- DACHCOM AG Löwenhof Rheineck
- Rorschacherstrasse 15, 9424 Rheineck
- Architektur, Büro & Verwaltung, Kultur, Einbau, Umbau, realisiert, KMU's
-
- Kunsteisbahn Dolder Zürich
- Adlisbergstrasse 36, 8044 Zürich
- Architektur, Freizeit, Sport & Bäder, Sanierung, realisiert, Öffentliche Hand, Ortsgemeinden
-
- Migros Säntispark Freizeit Abtwil
- Säntispark, 9030 Abtwil
- Architektur, Freizeit, Sport & Bäder, Hotel & Gastro, Handel & Verkauf, realisiert, Umbau, Grossverteiler, Betriebsgesellschaften
-
- Auwiesenstrasse Winterthur
- Auwiesenstrasse 19, 8400 Winterthur
- Architektur, Wohnen, realisiert, Neubau
-
- Migros Klubschule Westlink Zürich-Altstetten
- Vulkanplatz 8, 8048 Zürich-Altstetten
- Architektur, Bildung & Forschung, Einbau, realisiert, Grossverteiler, Betriebsgesellschaften
-
- Verwaltung Schweizerische Südostbahn St.Gallen
- Bahnhofstrasse 1a, 9001 St. Gallen
- Architektur, Büro & Verwaltung, Umbau, Sanierung, Institutionelle Bauherren, Anleger, Private
-
- Planung Hallenbad, Gossau
- Gossau
- Freizeit, Sport & Bäder, Architektur
-
- Wohnüberbauung 36.5° Heerbrugg
- Widnauer- / Nefenstrasse, 9435 Heerbrugg
- Areal- und Immobilienentwicklung, Architektur, Wohnen, abgeschlossen
-
- Data Center Widnau
- Industriestrasse 62, 9443 Widnau
- Architektur, Büro & Verwaltung, Neubau, realisiert, Institutionelle Bauherren, Anleger, Private, Generalunternehmer
-
- Bankfiliale Zürcher Kantonalbank Meilen
- Bahnhofstrasse 25, 8706 Meilen
- Architektur, Büro & Verwaltung, Umbau, realisiert, Institutionelle Bauherren, Anleger, Private
-
- Sporthalle Buechenwald Gossau // Wettbewerb 1. Rang
- Seminarstrasse 10, 9200 Gossau
- Architektur, Freizeit, Sport & Bäder, Sanierung, Wettbewerb, realisiert, Öffentliche Hand, Ortsgemeinden, Wettbewerb
-
- Produktions- und Bürogebäude JUST Schweiz AG Walzenhausen
- Unterdorf 62, 9428 Walzenhausen
- Architektur, Generalplanung, Industrie & Gewerbe, realisiert, Neubau, Institutionelle Bauherren, Anleger, Private, Büro & Verwaltung, Erweiterung, Baumanagement
-
- Betriebsgebäude Hälg & Co. AG St. Gallen
- Lukasstrasse 30, 9001 St. Gallen
- Architektur, Industrie & Gewerbe, realisiert, Neubau, Umbau, Institutionelle Bauherren, Anleger, Private
-
- Industrie- und Handelskammer St.Gallen-Appenzell
- Gallusstrasse 16, 9000 St. Gallen
- Architektur, Büro & Verwaltung, Umbau, Sanierung, realisiert, Stiftungen, Vereine, Betreiber, Kultur
-
- Bürogebäude STUTZ AG St.Gallen // Wettbewerb 1. Rang
- Martinsbruggstrasse 97, 9016 St. Gallen
- Architektur, Büro & Verwaltung, Neubau, Wettbewerb, realisiert, KMU's, Wettbewerb
-
- Sunnepark Alterszentrum Hottingen
- Freiestrasse 71, 8032 Zürich
- Architektur, Fürsorge & Gesundheit, Umbau, realisiert, Stiftungen, Vereine, Betreiber, Generalplanung
-
- Wohn- und Geschäftshaus Blickpunkt Buchs
- Bahnhof- und Alvierstrasse, 9470 Buchs
- Architektur, Areal- und Immobilienentwicklung, Wohnen, Handel & Verkauf, Neubau, realisiert, Institutionelle Bauherren, Anleger, Private
-
- Löwenhof Rheineck
- Rorschacherstrasse 15, 9424 Rheineck
- Architektur, Kultur, Wohnen, Büro & Verwaltung, realisiert, Umbau, Institutionelle Bauherren, Anleger, Private
-
- Primarschulanlage Rothenthurm // Offener Wettbewerb 1. Rang
- Schulstrasse 4, 9418 Rothenthurm SZ
- Architektur, Bildung & Forschung, realisiert, Erweiterung, Öffentliche Hand, Ortsgemeinden, Wettbewerb, Wettbewerb
-
- Produktionsgebäude Fisba AG St.Gallen
- Rorschacherstrasse 268, St. Gallen
- Architektur, Industrie & Gewerbe, Neubau, Erweiterung, realisiert, Institutionelle Bauherren, Anleger, Private
-
- Campus JANSEN AG Oberriet
- 9463 Oberriet
- Baumanagement, Büro & Verwaltung, Neubau, realisiert, Institutionelle Bauherren, Anleger, Private
-
- Universität St.Gallen
- Dufourstrasse 50, 9000 St. Gallen
- Architektur, Bildung & Forschung, Sanierung, Erweiterung, realisiert, Öffentliche Hand, Ortsgemeinden
-
- Einkaufszentrum Migros Rheinpark St.Margrethen
- 9430 St. Margrethen
- Architektur, Handel & Verkauf, Umbau, Sanierung, realisiert, Grossverteiler, Betriebsgesellschaften
-
- Einstein Congress St.Gallen
- Berneggstrasse 2, 9000 St. Gallen
- Architektur, Hotel & Gastro, Neubau, Erweiterung, realisiert, Grossverteiler, Betriebsgesellschaften
-
- Drehrestaurant Hoher Kasten Brülisau
- 9058 Brülisau
- Architektur, Hotel & Gastro, Neubau, realisiert, Grossverteiler, Betriebsgesellschaften
-
- Hauptsitz St.Galler Kantonalbank, St.Gallen // Wettbewerb 1. Rang
- St.Leonhardstrasse 58, 9001 St. Gallen
- Architektur, Büro & Verwaltung, Sanierung, Umbau, Wettbewerb, realisiert, Generalunternehmer, Institutionelle Bauherren, Anleger, Private, Wettbewerb