
Im Auftrag der RPG Management GmbH entstand im Westen St.Gallens ein neues Geschäftshaus.
RLC projektierte und realisierte das Geschäftshaus Westoffice und zeichnete sich für den Grund- wie auch Mieterausbau verantwortlich.
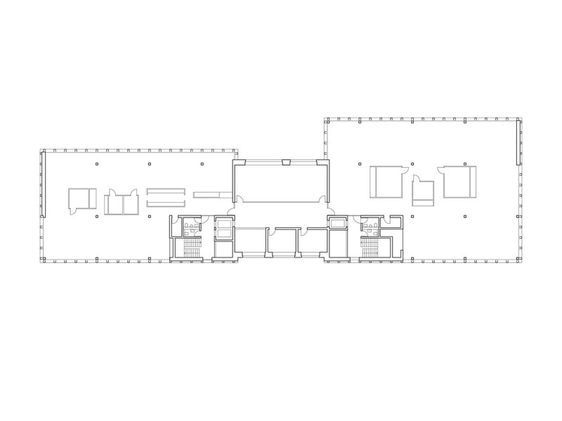
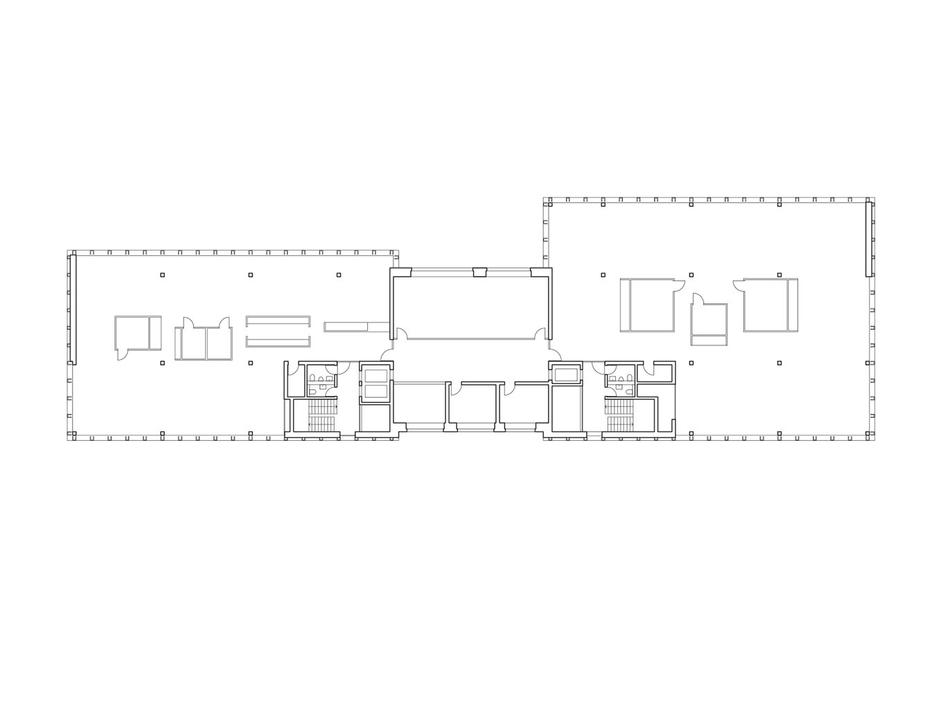
Aufgrund der angestrebten Nutzung mit 250 Arbeitsplätzen, davon 180 für die Zürich Versicherung, war ein Massstabsprung zwischen Neubau und den weilerartigen Häusergruppen unumgänglich. Mit der ostseitigen Abstufung, wie durch die Aufteilung in zwei Hauptkörper mit einem Verbindungsgebäude, wird das Volumen der Umgebung angepasst. Die begrünte Dachterrasse des Mittelbaus ist für die Mitarbeitenden ein attraktiver Begegnungs- und Aufenthaltsraum. Rücksprünge der Fassaden und das Pflanzen von Baumgruppen erzielen eine angemessene Aussenraumqualität.
Innen ermöglicht die rasterartige Strukturierung langfristig eine hohe Flexibilität bei der Gestaltung von Arbeitsplätzen. Die Geschosse sind als offene Bürolandschaften geplant. Die klare innere Organisation widerspiegelt sich Aussen in der Fassade. Im Gegensatz zur warmen Farbgebung und Holzelementen im Innern steht die robuste und beständige Aussenhülle mit Betonelementen und einem grob verputzten Sockel. In der Tiefgarage befinden sich auf zwei Ebenen rund 50 Parkplätze.
-
Informationen
Bauherrschaft RPG Management GmbH, Niederteufen Aufgabe Neubau Geschäftshaus Auftragsart Direktauftrag Leistungen 59.5% Teilleistungen gem. SIA 102 Planung 2018 Realisierung 2019–2020
-
Planerteam
Architekt RLC Architekten AG, Winterthur
- Hauptnutzfläche m2
- Gebäudevolumen m3