Wohnüberbauung Otmarhof, Güttingen Güttingen
Aufgabe

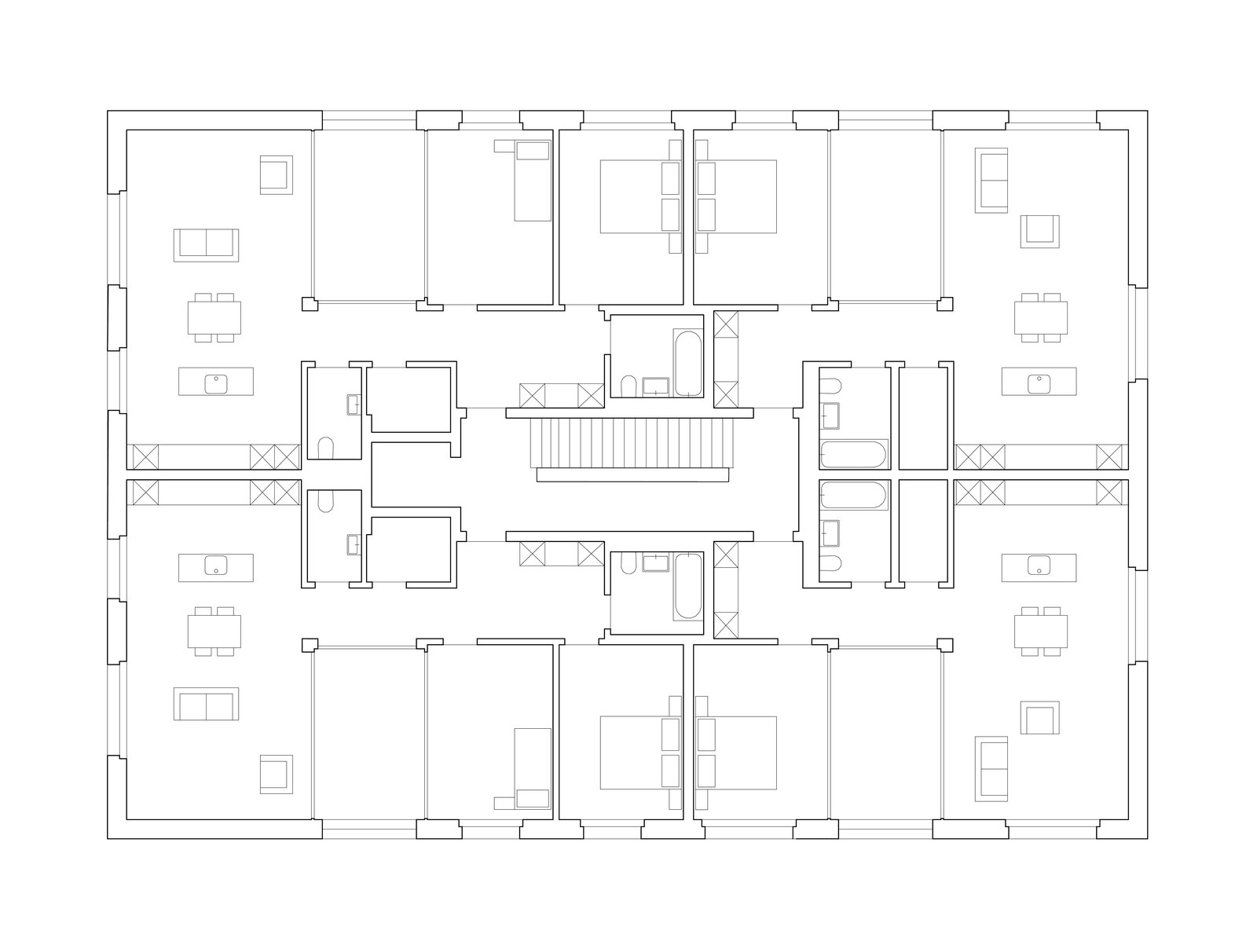
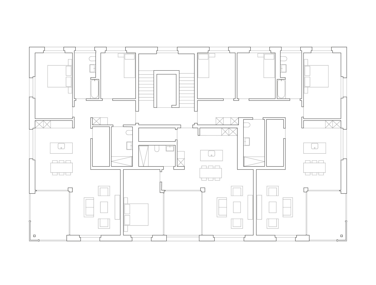
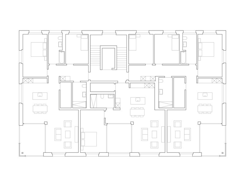
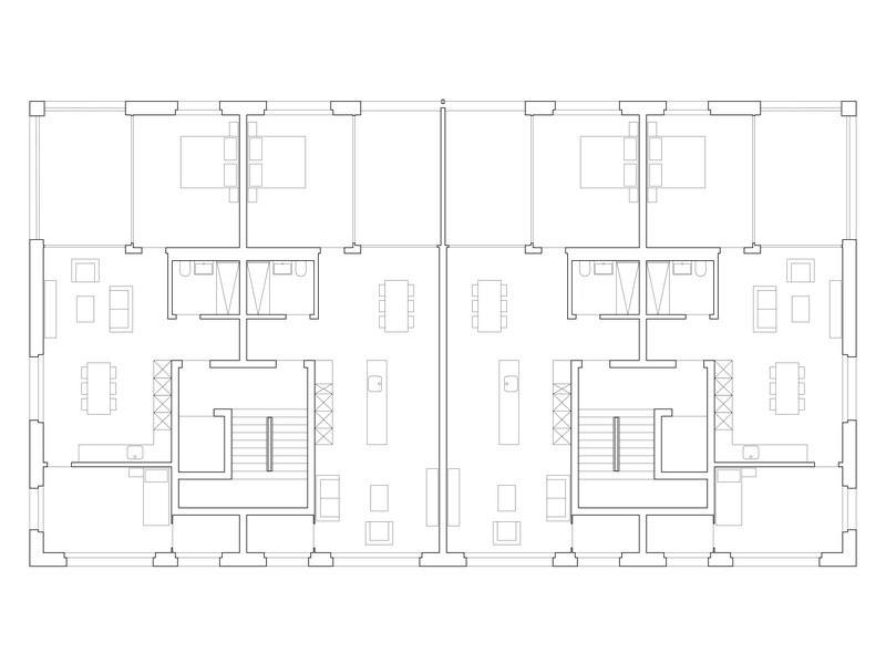
Im Herzen der Thurgauer Seegemeinde Güttingen entstand mit der neuen Wohn- und Zentrumsüberbauung «Otmarhof» ein Ensemble aus sechs Neubauten mit insgesamt 50 Wohnungen. Das Projekt wurde gemeinschaftlich von der Pensionskasse Graubünden, der Gallusberg AG und der Gemeinde Güttingen realisiert. Der Wohnungsmix ist auf unterschiedliche Lebensrealitäten und Generationen abgestimmt: von kompakten 2.5-Zimmer-Geschosswohnungen über grosszügige 4.5-Zimmer-Maisonettewohnungen bis hin zu Atelierwohnungen mit flexiblen Nutzungsmöglichkeiten. Der «Otmarhof» nimmt eine zentrale Rolle im Ortskern von Güttingen ein. Ziel war es, auf die bestehende Heterogenität des Ortes sensibel zu reagieren und gleichzeitig eine neue, identitätsstiftende Mitte zu schaffen.

Das architektonische Erscheinungsbild ist geprägt von einer klaren, zurückhaltenden Sprache, die dem Ort und seiner Geschichte gerecht wird. Ziel war keine Inszenierung, sondern eine dezent zurückhaltende Formensprache, welche das Zusammenspiel der Bauten und Freiräume fördert.

Die Baukörper sind sorgfältig proportioniert, mit fein abgestimmten Fassadenrasterungen und subtilen Materialwechseln. Trotz einheitlicher Gestaltungsprinzipien variiert die Architektur je nach Lage, Funktion und Zielgruppe.

Mit dem «Otmarhof» entstand ein Projekt, das nicht nur hohe architektonische Qualität aufweist, sondern auch ein nachhaltiges, vielfältiges und integratives Wohn- und Arbeitsumfeld schafft. Die Kombination aus zurückhaltender Gestaltung, ortsbaulicher Sensibilität, hochwertiger Materialisierung und technischer Präzision macht den «Otmarhof» zu einem beispielhaften Projekt für die Zentrumsentwicklung ländlicher Gemeinden.

Impressionen
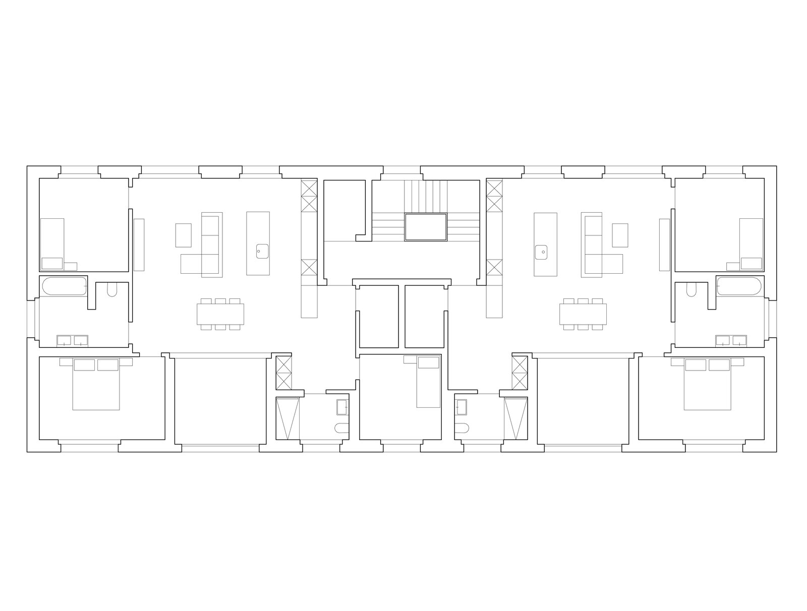
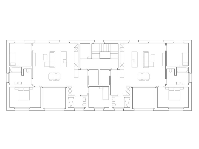
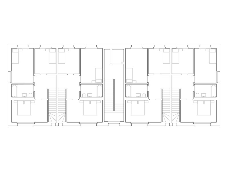
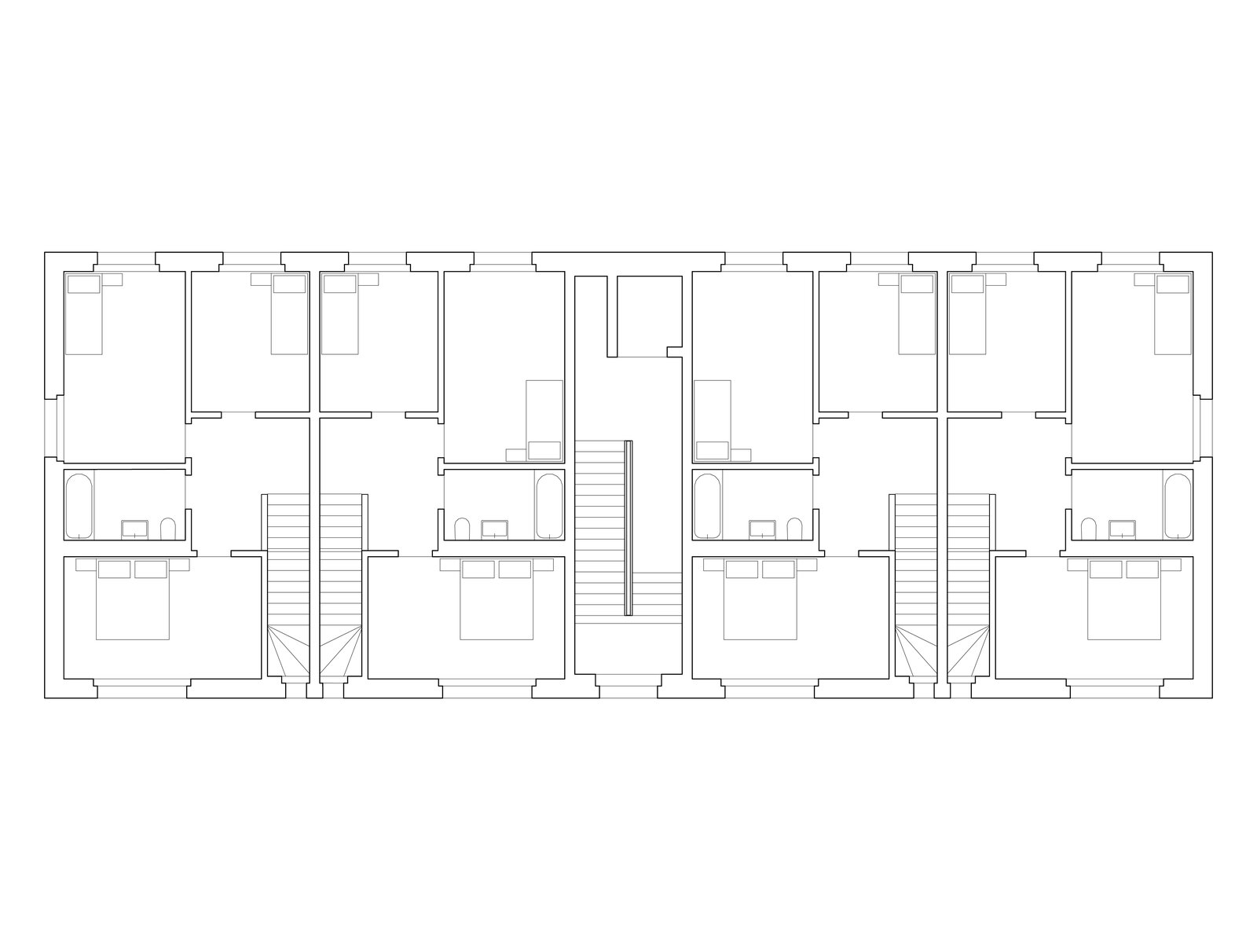
Pläne
Facts
  • Informationen
    Bauherrschaft Pensionskasse Graubünden, Gallusberg AG, Gemeinde Güttingen Aufgabe Planung auf Basis Gestaltungsplan Auftragsart Direktauftrag Planung 2022–2023 Realisierung 2023–2025
  • Planerteam
    Projektmanagement Rhomberg Bau AG, St.Gallen Architekt Entwurf Projekt Planergemeinschaft Mirlo Urbano / Brühlmann Loetscher, Zürich Architekt RLC Architekten AG, Rheineck Bauingenieur Rolf Soller AG, Kreuzlingen Holzbauingenieur Blättler Holzbau GmbH, Affeltrangen HLK-Ingenieur Lubina Engineering GmbH, Abtwil Elektroingenieur Amstein + Walthert St.Gallen AG, St.Gallen Brandschutz B3 Kolb AG, Romanshorn Bauphysiker Durable Planung und Beratung GmbH, Zürich Umgebungsplanung InPlanung GmbH, Roggwil Fotograf Jan Thoma, Abtwil
  • Wohnungen
  • Geschossfläche GF
  • Gebäudevolumen GV