Hochregallager JUST Schweiz AG, Rheineck Langenhagstrasse 42, 9424 Rheineck
Aufgabe

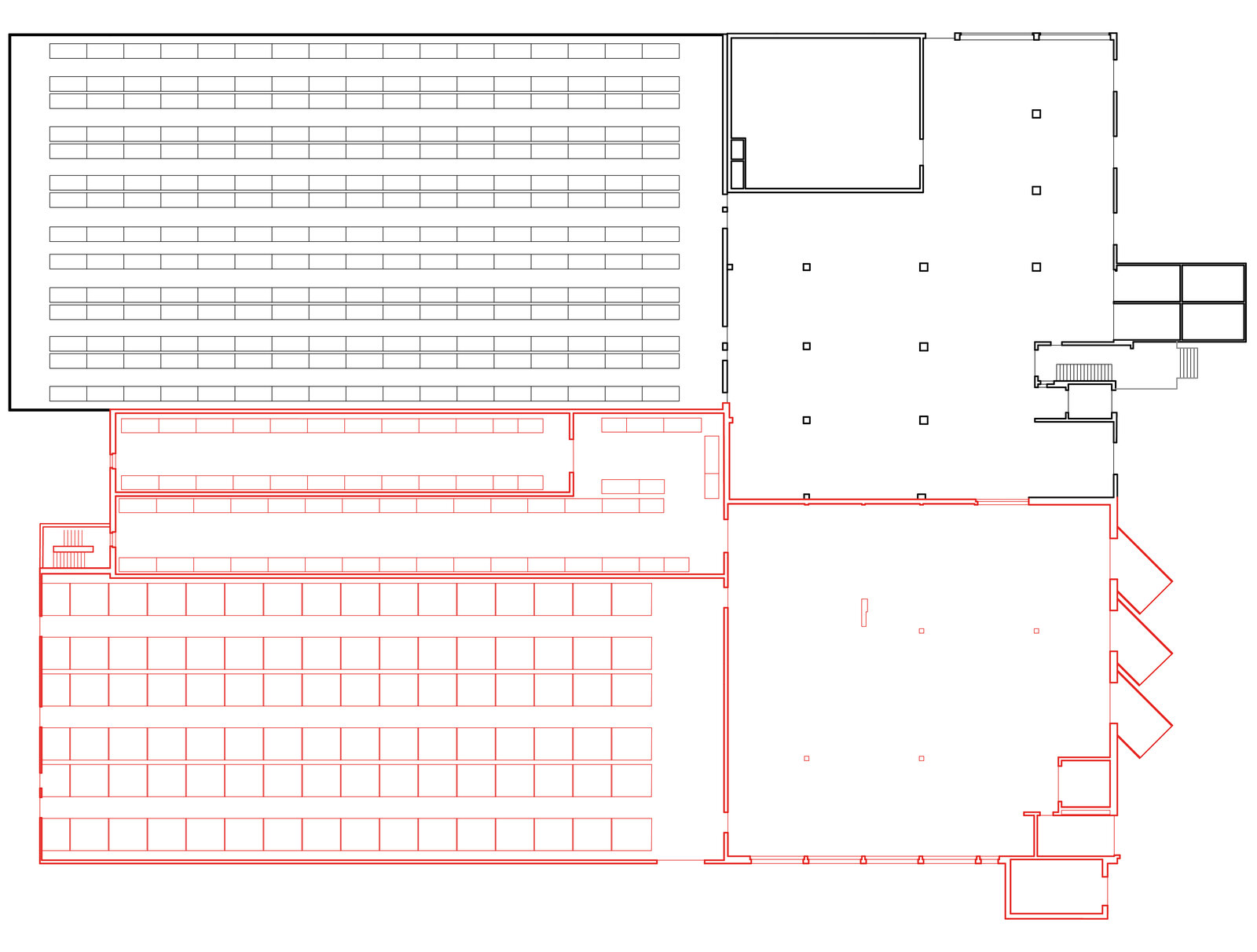
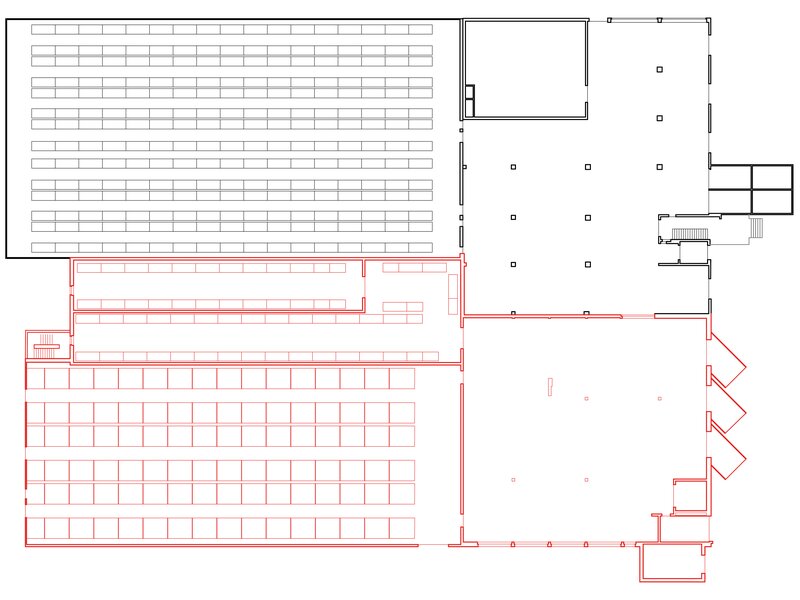
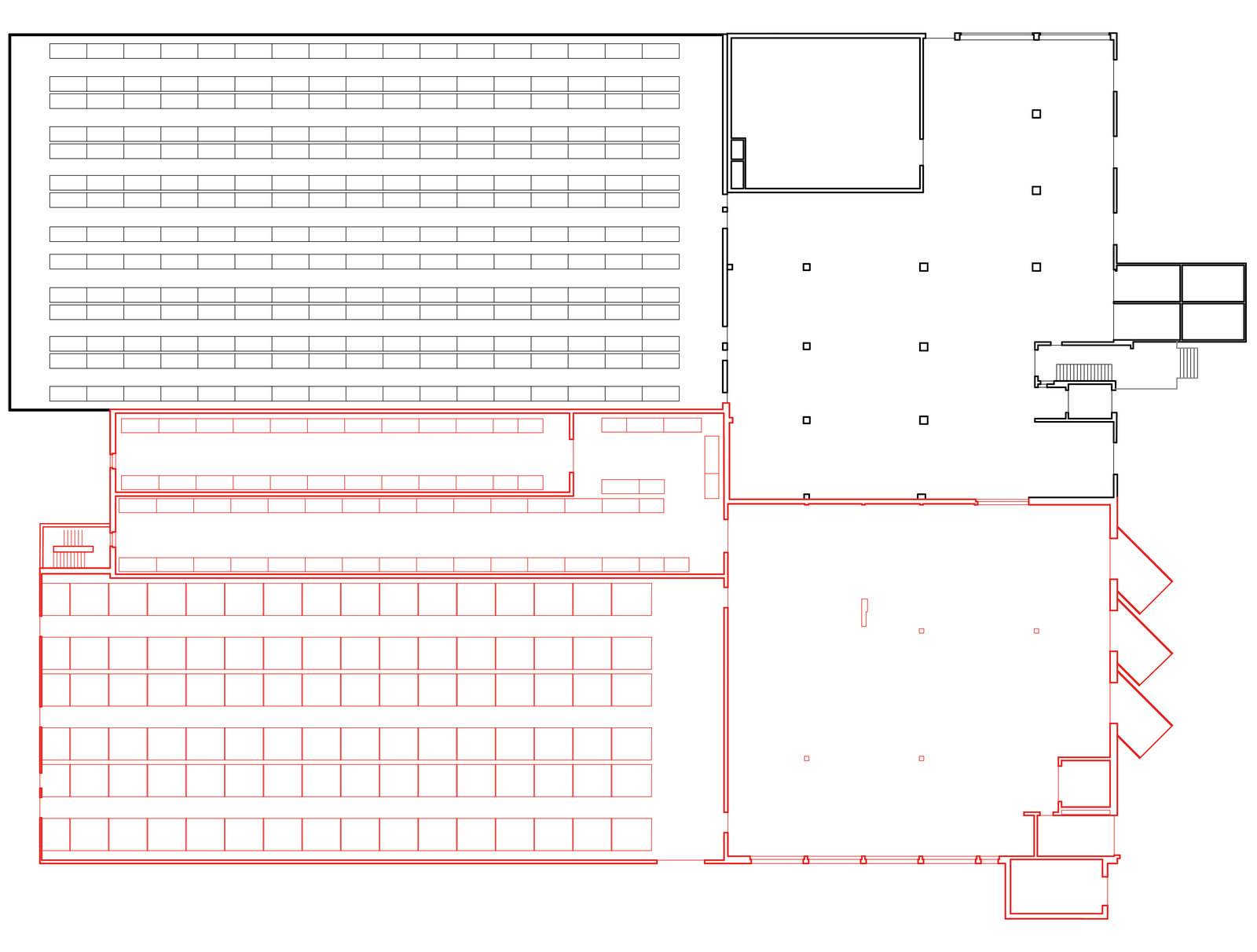
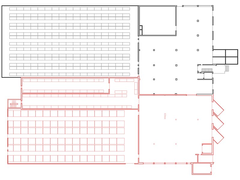
Nach erfolgreicher Zusammenarbeit beim Bau des «Generationenbaus» (2018) und der «JUST Welt» (2020) in Walzenhausen wurde RLC mit dem Ausbau des Logistikstandorts in Rheineck beauftragt. Herzstück des Projekts ist ein modernes, vollautomatisiertes Hochregallager mit 6‘500 Palettenplätzen und einer perforierten Blechfassade, deren Pflanzenmotive den Bezug zu den natürlichen Produkten der JUST AG visualisieren. Ergänzend wurden ein Gefahrenstofflager sowie bauliche Anpassungen an den Bestandsbauten realisiert. Mit dem Neubau verfügt JUST über eine leistungsfähige, nachhaltige Infrastruktur, die architektonisch wie funktional überzeugt. 

Die Einbindung in den laufenden Betrieb sowie die Umsetzung des Energie- und Sicherheitskonzepts stellten zentrale planerische Herausforderungen dar. Eine Sole-Wasser-Wärmepumpe in der neuen Technikzentrale versorgt das gesamte Areal über 60 Erdwärmesonden à 205 Meter. Ergänzend erzeugt eine PV-Anlage auf Dach und Fassade, kombiniert mit einem Salzbatteriespeicher, erneuerbare Energie. 

Zur Verbesserung der Logistik entstanden drei zusätzliche Andockstellen mit Kommissionierstationen. Auch moderne Büro-, Sanitär- und Aufenthaltsräume für die Mitarbeitenden wurden realisiert. Das Gefahrenstofflager und ein Löschwasserrückhaltebecken erfüllen höchste Sicherheits- und Umweltstandards.

Impressionen
Pläne
Facts
  • Informationen
    Bauherrschaft JUST Schweiz AG, Walzenhausen Aufgabe Neubau vollautomatisiertes Hochregallager Auftragsart Direktauftrag Leistungen 100% Teilleistungen gem. SIA 102 Realisierung 2022–2025
  • Planerteam
    Bauingenieur Wälli AG Ingenieure, St.Gallen HLKKS-Planung Vadea AG, St.Gallen Elektroplanung Projekt AG, Heerbrugg Bauphysik ExpEduCon GmbH, Heerbrugg Brandschutz Baubüro Hollenstein GmbH, Zuzwil Geotechnik Andres Geotechnik AG, St.Gallen Anlagenplanung PlanLogistik AG, Kemptthal
  • Palettenplätze
  • Geschossfläche
  • Gebäudevolumen