 
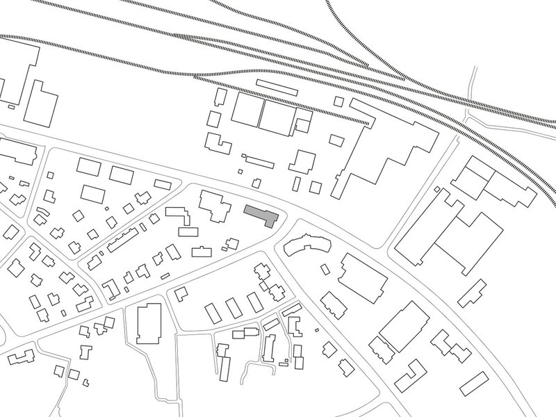
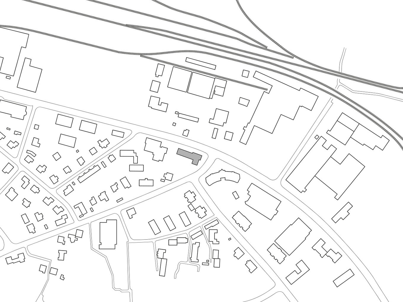
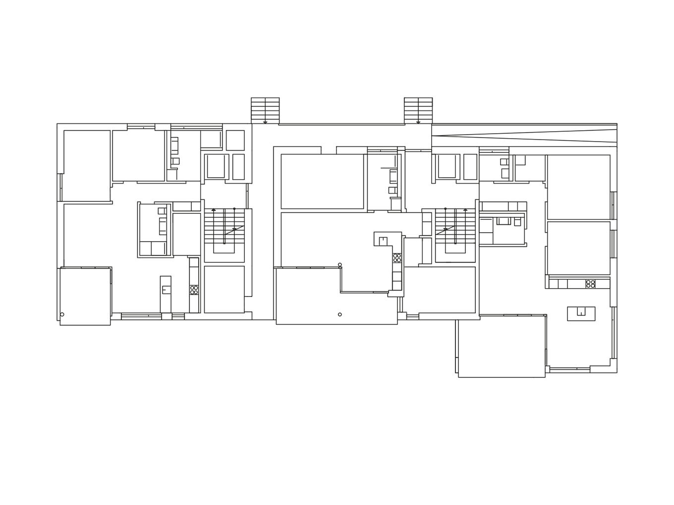
Auf einer ehemaligen Obstwiese in St. Margrethen, beim Übergang von der Wiesen- zur Industriestrasse, realisierte RLC 18 hochwertige Mietwohnungen. Enstanden sind acht 2.5-Zimmer-Wohnungen, sieben 3.5- und drei 4.5-Zimmer-Wohnungen.
Das Gebäude erstreckt sich entlang der Industriestrasse mit einer prägnanten Kopfsituation zur Kreuzung. Auf die räumlich wenig definierte Umgebung wird mit einem selbstbewussten formal reduzierten Körper reagiert.
Der Bau trennt die nördliche Erschliessungsseite vom südlichen Erholungsraum. Zugang und Zufahrt zur Tiefgarage erfolgen nordseitig von der Industriestrasse.
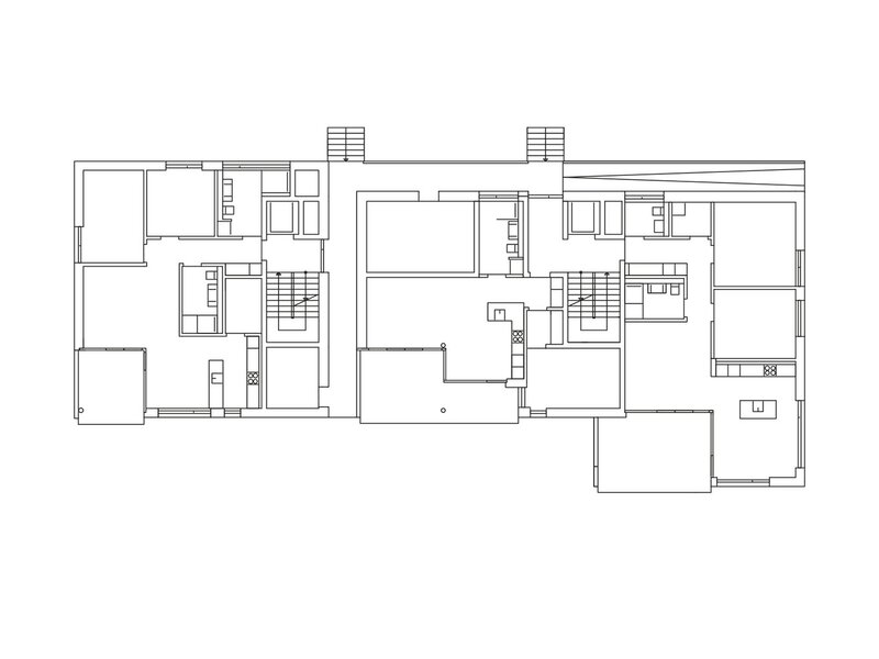
Sämtliche Wohnbereiche und Zimmer sind mit raumhohen Verglasungen und grosszügigen Balkonen nach Süden zur Gartenanlage orientiert. Diese gliedert sich in Erholungs-, Spielzonen und einen eigenen Obstgarten für die Mieterinnen und Mieter.
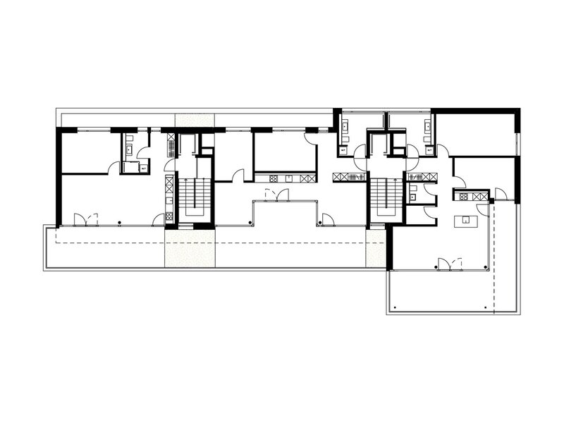
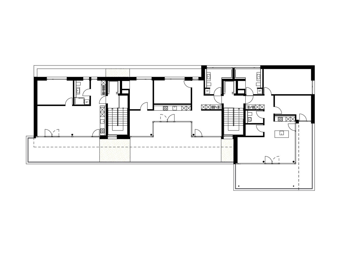
Die Erschliessung über zwei Treppenhäuser erlaubte die Konzeption von durchgesteckten mehrseitig belichteten Wohnungen. Im Attikageschoss erlebt man in drei lichtdurchfluteten und individuell konzipierten Appartments das «Wohnen über den Dächern» mit weitem Panoramablick.
- 
                
                    Informationen
                
                Bauherrschaft RLC Immoprojekt AG, Rheineck / Surya Herisau AG Aufgabe Projektentwicklung Mehrfamilienhaus Auftragsart Eigenentwicklung Leistungen Vorstudie, Vorprojekt, Bauprojekt, Ausführungsplanung, Bauherrenberatung Realisierung 2021–2023
- 
                
                    Planerteam
                
                    Projektentwicklung RLC Immoprojekt AG, Rheineck Architekt RLC Architekten AG, Winterthur Projekt- und Bauleitung Baukla Generalunternehmung AG, St.Gallen Bauingenieur Wälli AG Ingenieure, St.Gallen Elektroingenieur Projekt AG, Heerbrugg HLKS-Ingenieur RBT Engineering GmbH, Flums Bauphysik Baumann Akustik und Bauphysik AG, Uzwil
- Anzahl Mietwohnungen
- Geschossfläche m2
- Gebäudevolumen m3
 
 
 
 
 
 
 
 
 
 
 
 
 
 
 
 
 
 
 
 
 
 
 
 
 
 
 
