Wisenthalle & Bibliothek Wiesendangen Schulstrasse 27, 8542 Wiesendangen
Ausgangslage

Die 1986 erbaute Wisenthalle befindet sich im Dorfzentrum von Wiesendangen in unmittelbarer Nähe zu diversen Schul- und Sportanlagen und wird für öffentliche und private Anlässe rege genutzt. Im Erdgeschoss befindet sich eine Turn- und Mehrzweckhalle für 800 Personen mit zugehöriger Bühne, Küche und Foyer. Im Obergeschoss ist die gut frequentierte öffentliche Bibliothek untergebracht. Das Untergeschoss weist die erforderlichen Nebenräume sowie eine Einstellhalle vor. Ein mehrgeschossiges Abwarthaus ist auf der Südseite der Halle angebaut.

Aufgabe

Das von RLC bearbeitete Projekt sieht für die geforderte räumliche Vergrösserung der Bibliothek eine Aufstockung und Erweiterung vor. 

Lösung // Herausforderungen

Die Brandabschnitte konnten mit diesem Konzept klar definiert und ausgebildet und alle Räumlichkeiten rollstuhlgängig erschlossen werden. Die Bibliothek tritt mit einem präzis definierten Baukörper nach aussen eigenständig auf und steht mit der Wisenthalle und der näheren Umgebung zugleich in einem harmonischen und spannenden Dialog. In der Wisenthalle wurden die haustechnischen Installationen sowie der Brand- und Schallschutz auf den Stand der Technik gebracht und alle Räume und die Fassaden teils aufwendig sa-
niert.

quote «RLC überzeugte mit neuen Lösungen.»

«RLC hat es verstanden, mit neuen Ideen und Lösungen zu überzeugen und das Projekt in die richtigen Bahnen zu lenken. Die neue Wisenthalle begeistert – wir freuen uns über das gelungene Ergebnis.»

Manfred Steger Mitglied Baukommission Gemeinderat Wiesendangen
Impressionen
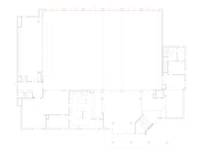
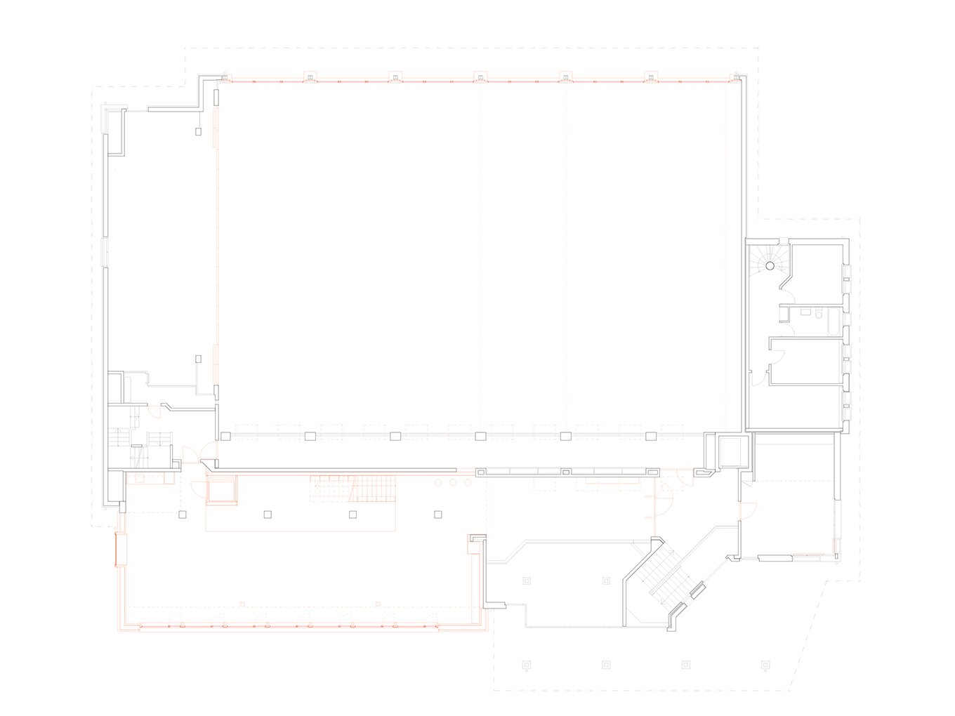
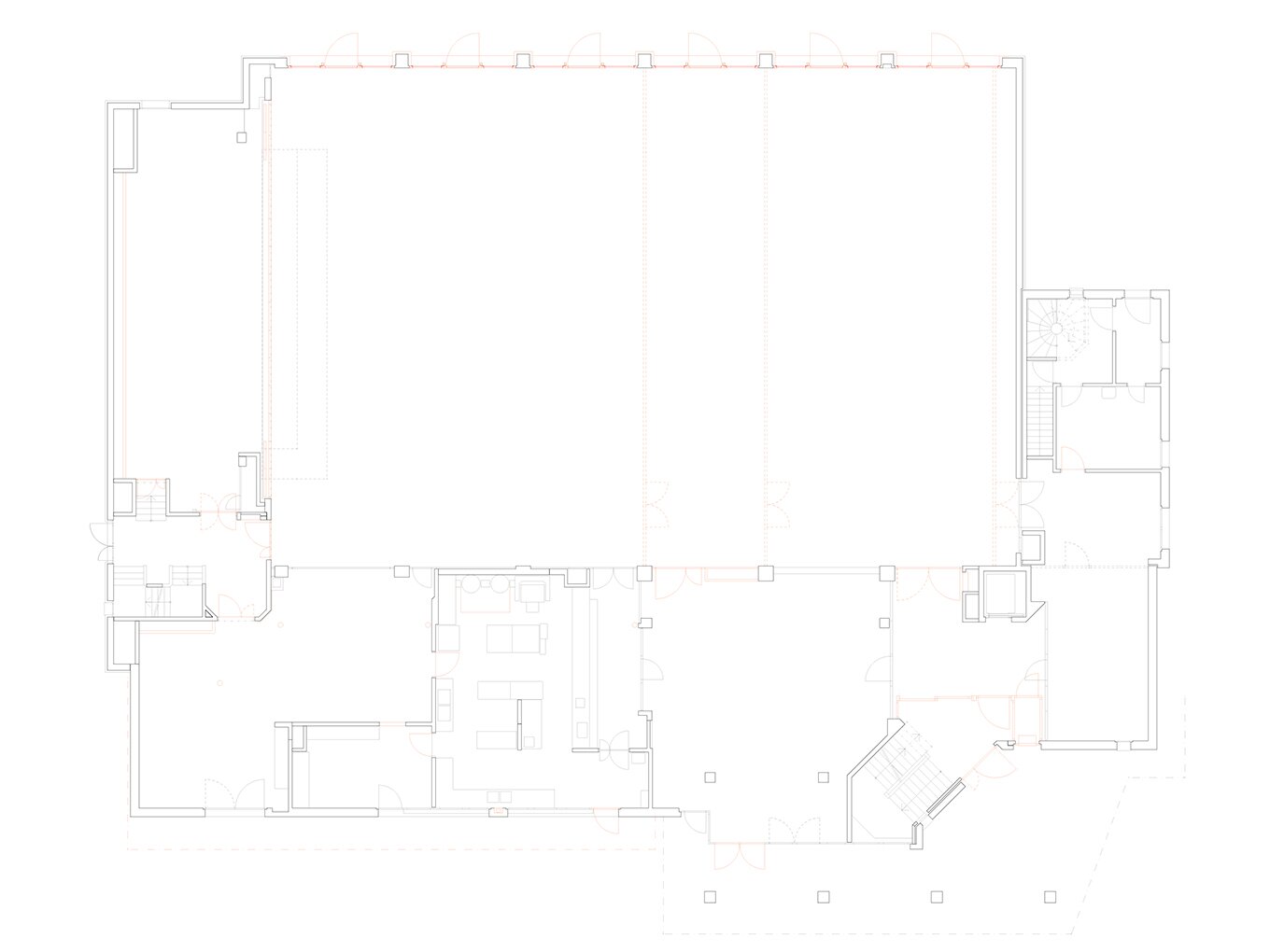
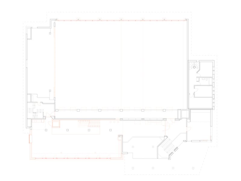
Pläne
Facts
  • Informationen
    Bauherrschaft Gemeinde Wiesendangen Aufgabe Sanierung und Erweiterung Wisenthalle & Bibliothek Auftragsart Direktauftrag Leistungen Vorstudien, Projektierung, Ausschreibung, Realisierung Realisierung 2019–2020
  • Planerteam
    Architekt RLC Architekten AG, Winterthur Bauingenieur Schnewlin + Küttel AG, Winterthur Holzbauingenieur Krattiger Engineering AG, Happerswil Elektroingenieur Kurt Bachmann AG, Winterthur Sanitäringenieur Hunziker Betatech AG, Winterthur Lüftungsingenieur M. Pletscher GmbH, Winterthur Heizungsingenieur Andreas Müller GmbH, Seuzach Akustik + Bauphysik Mühlebach Partner AG, Winterthur Brandschutz Mühlebach Partner AG, Winterthur
  • Bauzeit in Monaten
  • Geschossfläche m2
  • Gebäudevolumen m3