Wohn- und Tagesstätte «Autismus Wyden» Brühlgut Stiftung, Winterthur Euelstrasse 52d, 8408 Winterthur
Aufgabe

Für die Brühlgut Stiftung realisierte RLC das neue Wohnhaus auf dem Areal Wyden für Menschen mit Autismus-Spektrum-Störung. Ziel war es, mit dem Neubau ein Angebot zu schaffen, das die besonderen Bedürfnisse der Bewohnenden in Bezug auf Sicherheit und Selbstständigkeit berücksichtigt und ihnen einen selbstbestimmten Alltag ermöglicht.

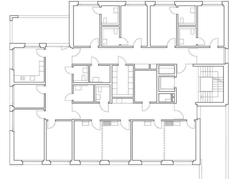
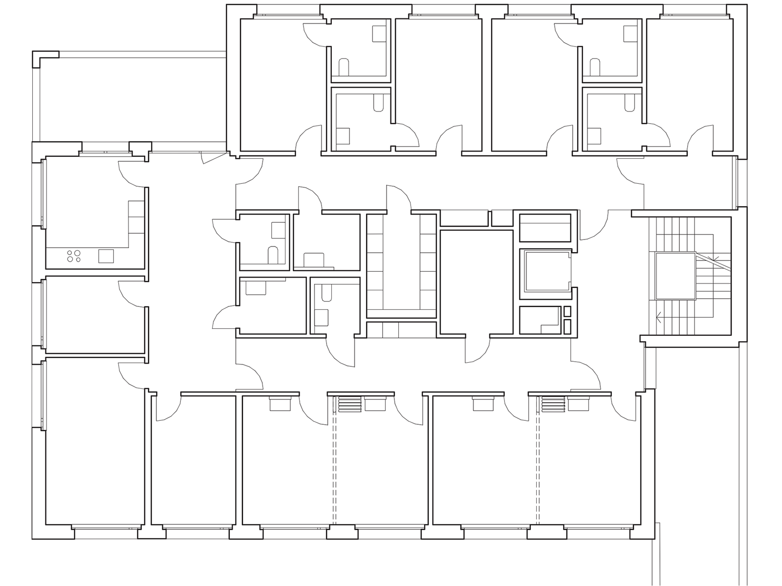
«Wohn- und Beschäftigungsplätze für Menschen mit Autismus und Verhaltensauffälligkeiten sind selten. Daher haben wir auf dem Areal Wyden ein Haus mit Tagesstrukturangeboten gebaut, das auf ihre Bedürfnisse zugeschnitten ist. Höhere Zimmerdecken, breitere Treppen und reizarme Materialien und Möblierung tragen dazu bei, Störungen zu vermeiden. Das Wohnhaus bietet Platz für 3 Wohngruppen mit je 4 Personen.» Andreas Paintner, Geschäftsführer der Brühlgut Stiftung.

Der Neubau im Standard Minergie-P, fügt sich harmonisch in das Areal ein und bildet den Übergang zur Landwirtschaftszone. Ausgestattet mit kontrollierter Wohnraumlüftung, einer PV-Anlage und Fernwärmeheizung, setzt er auf Nachhaltigkeit. Reizarme und robuste Materialien, eine dezente Farbgestaltung sowie der Einsatz von Holz schaffen eine beruhigende Atmosphäre. Jede Wohngruppe bietet ein eigenes Bad sowie Gemeinschaftsräume zum Kochen, Essen und Wohnen, ergänzt durch Ateliers, einen Fitness- und Therapiebereich und Büros für das Betreuungspersonal. Ein naturnah gestalteter Garten mit unterschiedlich angelegten Zonen für vielfältige Nutzung- und Aufenthaltsmöglichkeiten, rundet das Angebot ab.

quote «Unsere spezifischen Bedürfnisse wurden verstanden.»

«Mit RLC hatten wir einen Partner, der uns in der Projektierung, wie in der baulichen Umsetzung kompetent begleitet hat und auf die besonderen Ansprüche und Wünsche hervorragend eingegangen ist. Hervorzuheben sind die Termintreue und das Unterschreiten des Baubudgets. Dank der sehr guten Zusammenarbeit konnten im September 2024 die ersten Bewohnenden einziehen und fühlen sich seitdem gut aufgehoben.»

Andreas Paintner Geschäftsführer Brühlgut Stiftung
Impressionen
Pläne
Facts
  • Informationen
    Bauherrschaft Brühlgut Stiftung Aufgabe Neubau Standard Minergie-P Auftragsart Planerwahlverfahren Selektiv Leistungen 91% Teilleistungen gem. SIA 102 Planung 2022–2023 Realisierung 2023–2024
  • Planerteam
    Architekt RLC Architekten AG, Winterthur Bauingenieur Dr. Deuring + Oehninger AG, Winterthur HLKKSE-Ingenieur Amstein + Walthert St.Gallen AG, St. Gallen Brandschutz RLC Architekten AG, Winterthur Bauphysik WS Bauphysik GmbH, Bronschhofen Landschaftsarchitektur PR Landschaftsarchitektur GmbH, Arbon Fotograf Michael Haug, Winterthur
  • Geschossfläche m2
  • Gebäudevolumen m3
Weitere Referenzen