
Von Uhwiesen ging es für die Brütsch Elektronik AG nach Beringen. Das vor 50 Jahren gegründete Familienunternehmen entwickelt und produziert als OEM Partner anspruchsvolle Lösungen für die Medizinaltechnik und die Automation. Mit dem Spatenstich im Juli 2020 starteten die Bauarbeiten für den 71 x 21 m grossen Bau in Holzhybrid-Bauweise.
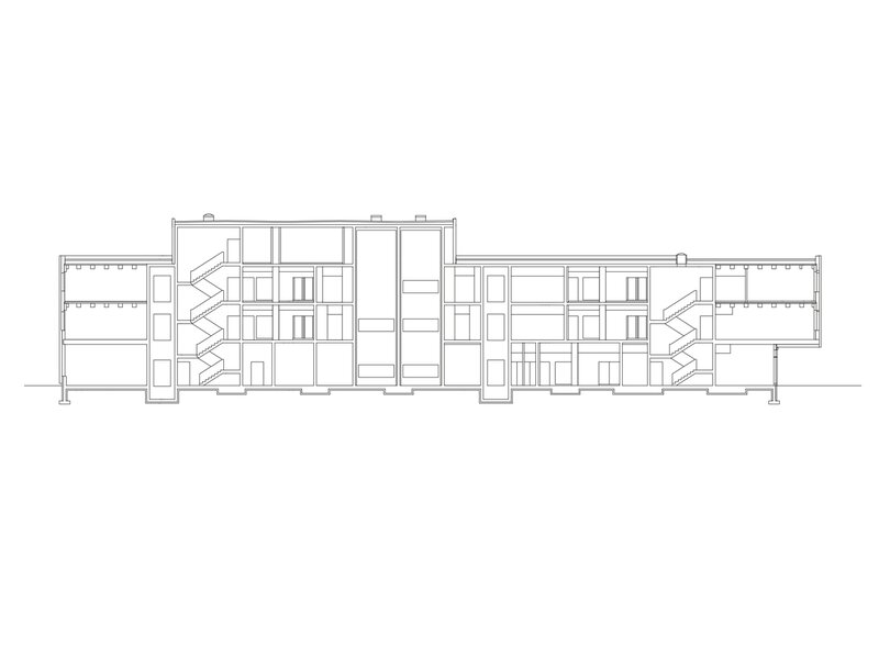
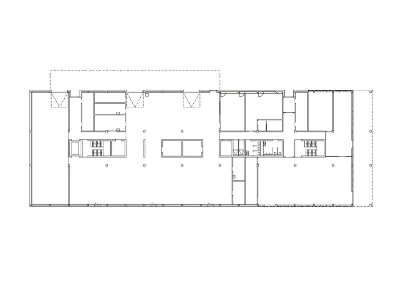
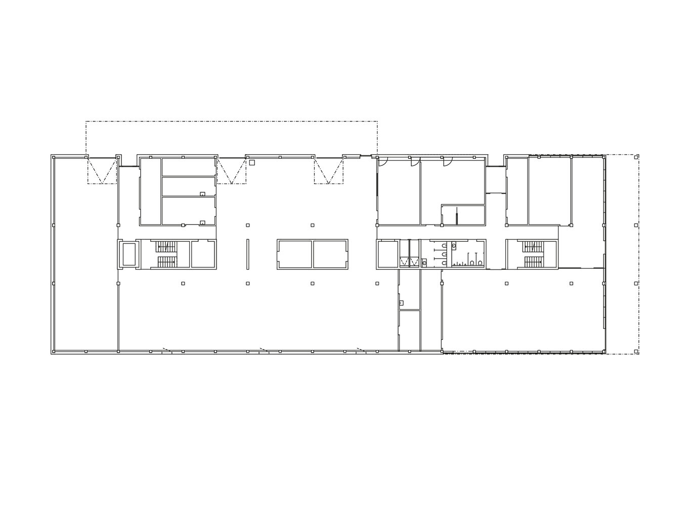
Der Neubau bietet Platz für rund 200 Mitarbeitende und schafft optimale Voraussetzungen für die künftige Weiterentwicklung des Unternehmens. Es wurden Büros für IT, Engineering und Spedition, Arbeitsplätze für die Produktion, Lager -und Speditionsflächen sowie Besprechungs- und Aufenthaltsräume realisiert. Im November 2021 war der Neubau bezugsbereit.
Durch die Planung BIM von Architektur (Entwurf, Visualisierungen), Gebäudetechnik (Bauingenieur, HLKS und Fachkoordination) und Ausführungsplanung einzelner Unternehmer (Holzbau Tragkonstruktion und Aussenwände, Möblierung und Einrichtung) konnten frühzeitig Chancen und Risiken erkannt und das Projekt für einen reibungslosen Ausführungsprozess optimiert werden. Zudem erhielt die Bauherrschaft durch dreidimensionale Modelle Einblick in die neuen Räumlichkeiten.

«Wir haben mit RLC einen kompetenten Partner gefunden. Es war eine grosse Herausforderung, die verschiedenen Ansprüche der Nutzer mit der Bau- und Fachplanung in Einklang zu bringen. Dank dem BIM Datenaustausch war während der Pandemie der Baufortschritt für detaillierte Absprachen nie behindert. Zudem hat BIM uns insbesondere die Planung für die Kombination von Holz- und Betonbau erleichtert. Das Resultat überzeugt.»
-
Informationen
Bauherrschaft Brütsch Elektronik AG, Beringen Aufgabe Neubau Produktionsgebäude Auftragsart Direktauftrag Leistungen Vorstudien, Projektierung, Ausschreibung, Realisierung Realisierung 2020–2021
-
Planerteam
Architekt RLC Architekten AG, Rheineck Bauingenieur SJB Kempter Fitze AG, Herisau HLKSE-Ingenieur Control AG, St.Gallen HLKSE-Ingenieur Senn Technology AG, St.Gallen Brandschutzingenieur SJB Kempter Fitze AG, Gossau Bauphysik Braune Roth AG, Rorschacherberg
- Geschossfläche m2
- Gebäudevolumen m3