Forum St.Katharinen St.Gallen Katharinengasse 15/21, 9004 St.Gallen
Ausgangslage

Im Auftrag der DCD AG baute RLC die Büroräume im 1. und 2. Obergeschoss des denkmalgeschützten Gebäudes um.

Aufgabe

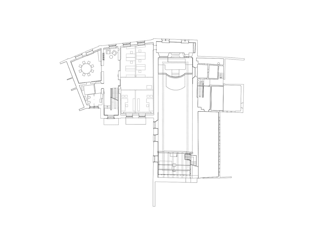
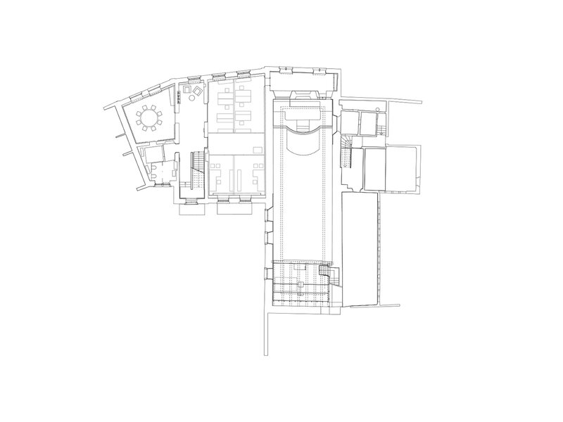
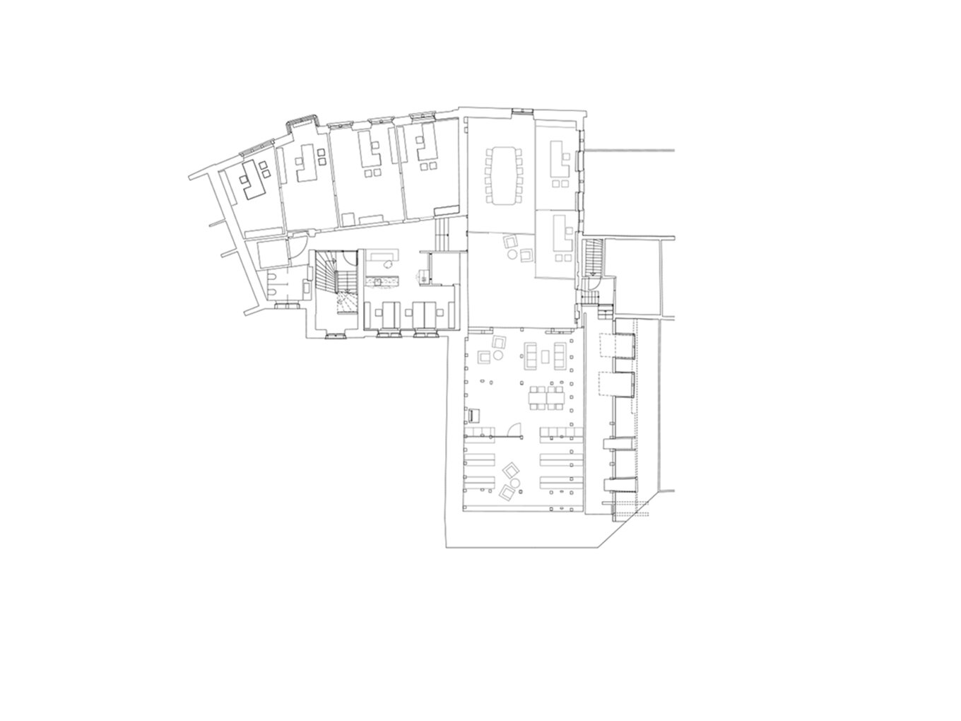
Aufgabe war es, die Räumlichkeiten so umzubauen, dass die grossen Besprechungszimmer im 1. und 2. Obergeschoss künftig Platz für Einzel- und Zweierbüros mit entsprechendem Schallschutz bieten. Im Weiteren wurden die bestehenden Originaltüren schalldicht aufgearbeitet. Gleichzeitig wurde die technische Infrastruktur inkl. Lüftungsanlage erneuert und die bauphysikalischen Anforderungen der Bauherrschaft eingehalten. Im 2. Obergeschoss wurde im Empfangsbereich ein neuer Korpus mit Theke, kleiner Bistroküche sowie Garderobe eingebaut.

Lösung // Herausforderungen

Der Schutz der denkmalgeschützten Räume stand immer im Vordergrund. Sämtliche Arbeiten wurden so ausgeführt, dass sie jederzeit wieder rückgeführt werden können.

Die Planungsphase war mit 4 Monaten inkl. Baugesuch und einer Bauzeit von nur 9 Wochen äussert knapp.

Impressionen
Pläne
Facts
  • Informationen
    Bauherrschaft DCD AG, St.Gallen Aufgabe Umbau Büroräumlichkeiten in denkmalgeschütztem Gebäude Auftragsart Direktauftrag Leistungen Vorstudien, Projektierung, Ausschreibung, Realisierung Planung 2020 Realisierung 2020–2021
  • Planerteam
    Architekt RLC Architekten AG, Rheineck HLKK-Ingenieur IG Energietechnik GmbH, St.Gallen Bauphysik Studer + Strauss AG, St.Gallen
  • Planungsphase in Monaten
  • Bauzeit in Wochen