Pflegeheim PeLago Rorschacherberg Wiesenstrasse 14, 9404 Rorschacherberg
Ausgangslage

Das Pflegeheim ist seit 1981 Wohn- und Lebensort für pflegebedürftige Menschen. 1998 konnte mit einer Erweiterung die Bettenzahl auf über 100 erhöht werden. Rund 140 Mitarbeitende kümmern sich um einen reibungslosen Betrieb. Das Restaurant mit rund 150 Plätzen und Gartenterrasse ist öffentlich.

Aufgabe

2015 wurde RLC beauftragt, ein Entwicklungskonzept, unter Berücksichtigung der künftigen Ausrichtung auf die Betreuung der demenzkranken Menschen, zu erstellen.

Lösung // Herausforderungen

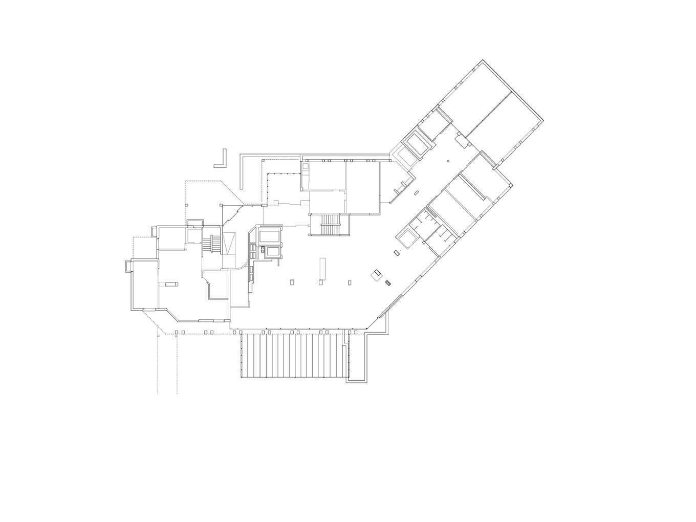
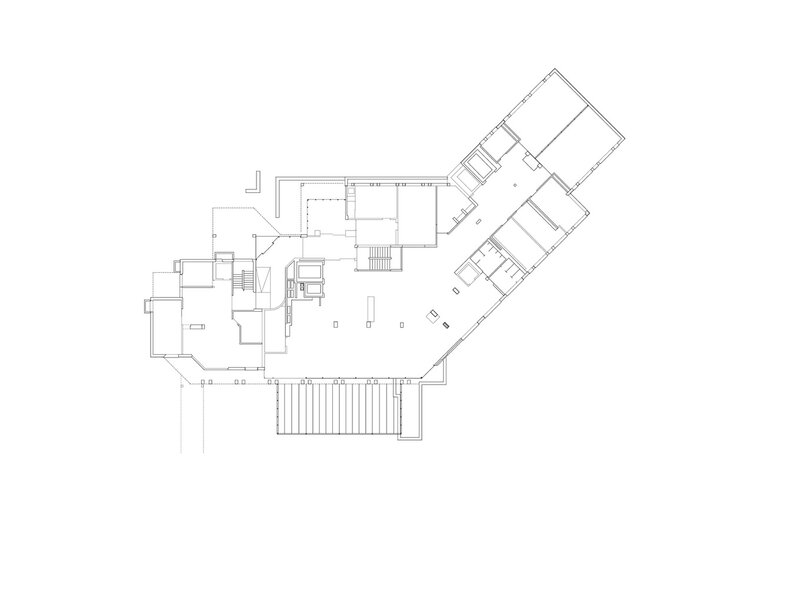
Mit dem Bau von Provisorien starteten im Frühjahr 2019 die ersten Arbeiten. Während zwei Jahren folgen unter laufendem Betrieb umfassende Massnahmen zur Modernisierung der betrieblichen Abläufe. Gleichzeitig wird die Haustechnik saniert, die Fenster grösstenteils ersetzt und Anlagen wie beispielsweise die Küche komplett erneuert. In den Projektüberlegungen wurde der Einbau einer geschützten Demenzabteilung und ein 
Demenzgarten geplant. Diesen erreichen die Bewohner aus dem 1. Obergeschoss direkt über eine neue Passarelle. 

Die mehrfach etappierte Ausführung erfordert ein Höchstmass an Flexibilität, Toleranz und Rücksichtnahme sowohl seitens Betrieb als auch aller am Bau beteiligten Unternehmer.

Impressionen
Pläne
Facts
  • Informationen
    Bauherrschaft PeLago Pflegeheim der Region Rorschach Aufgabe Umbau und Sanierung Pflegeheim Auftragsart Direktauftrag Leistungen Vorstudien, Projektierung, Ausschreibung, Realisierung Planung 2015–2019 Realisierung 2019–2021
  • Planerteam
    Architekt RLC Architekten AG, Rheineck Bauingenieur Wälli AG Ingenieure, Rorschach Elektroingenieur Inelplan AG, St. Gallen HLK-Ingenieur IG Energietechnik GmbH, St. Gallen Sanitäringenieur Espro AG, St. Gallen Bauphysik Braune Roth AG, Rorschacherberg Landschaftsarchitekt Hänni Gartenbau-Landschaftsarchitektur AG, St. Gallen
  • Geschossfläche m2
  • Gebäudevolumen m2