
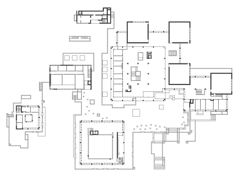
Die Universität St. Gallen mit den ausdrucksstarken Sichtbetonbauten der Architekten Förderer, Otto und Zwimpfer wurde 1963 fertiggestellt. Ursprünglich für 1‘000 Studierende konzipiert, wurde die Universität zum Zeitpunkt des Projektbeginns bereits von rund 4‘500 bis 5‘000 Studierenden besucht.
Die St.Galler Bevölkerung entschied sich 2005 für eine umfassende Sanierung, Umbau und Erweiterung des Campus.
In 3 Etappen und insgesamt 54 Monaten Bauzeit entstanden eine neue Mensa mit Gastroküche, eine zweigeschossige Tiefgarage, neue Unterrichtsräume, Lager-, Technik- und Büroräume sowie kleinere flexiblere Unterrichtsräume. Zusätzlich wurde die gesamte Infrastruktur erneuert und die Gebäude untereinander vernetzt. RLC zeichnete sich bei diesem Grossprojekt für die Projektierung, Architektur und Ausführungsplanung verantwortlich.





-
Informationen
Bauherrschaft Baudepartement Kanton St.Gallen Aufgabe Sanierung und Erweiterung Universität St.Gallen Auftragsart Direktauftrag Leistungen Vorstudien, Projektierung, Ausschreibung, Realisierung Realisierung 2006–2011 (in Etappen)
-
Planerteam
Architekt RLC Architekten AG, Rheineck Bauleitung Priora AG, St.Gallen Bauingenieur ARGE Schällibaum AG, Herisau und Dr. Lüchinger + Meyer AG, Zürich Elektroingenieur Amstein + Walthert AG, St.Gallen HLKK-Ingenieur Tri Air Consulting AG, Jona Sanitäringenieur Edwin Keller + Partner AG, Gossau MSRL-Ingenieur IBG B. Graf AG, St.Gallen Beleuchtung Art Light GmbH, St.Gallen Bauphysik Studer + Strauss AG, St.Gallen Akustik Imhof Akustik, Speicher Gastroplanung Megaplus, Egnach Verkehrsplanung Enz & Partner GmbH, Zürich Landschaftsarchitekt Rudolf Lüthi, Wittenbach
- Geschossfläche m2
- Gebäudevolumen m3
-
- Wohnüberbauung «Otmarhof», Güttingen
- Güttingen
- Architektur, Wohnen
-
- Mehrfamilienhaus «Wuhrstrasse», Goldach
- Wuhrstrasse 28, 9403 Goldach
- Architektur, Baumanagement, Wohnen
-
- Wohn- und Tagesstätte «Autismus Wyden» Brühlgut Stiftung, Winterthur
- Euelstrasse 52d, 8408 Winterthur
- Architektur, Baumanagement, Fürsorge & Gesundheit, Neubau
-
- Überbauung Areal Alp, St.Margrethen
- St. Margrethen
- aktuell, Areal- und Immobilienentwicklung, Architektur, Wohnen, Büro & Verwaltung, Hotel & Gastro
-
- Einfamilienhaus & Reihen-Einfamilienhäuser «Meierhof» im Eigentum, Muolen
- Muolen
- aktuell, Areal- und Immobilienentwicklung, Architektur, Baumanagement, Wohnen
-
- Zentrumsüberbauung «Rosenhof» Oase-Gruppe, Effretikon
- Effretikon
- Wohnen, Fürsorge & Gesundheit, Architektur, Neubau
-
- Schreinerkompetenzzentrum, St.Margrethen
- St.Margrethen
- Architektur, Areal- und Immobilienentwicklung, Bildung & Forschung
-
- Wohnüberbauung «Tres Terrae», Altstätten
- Altstätten
- Architektur, Wohnen
-
- Wohnüberbauung «Eichwaldhof», Winterthur
- Winterthur
- Architektur, Wohnen
-
- Wohnüberbauung VIVO 2, Amriswil
- Allee-/Freiestrasse, 8580 Amriswil
- Architektur, Wohnen
-
- Alterswohnungen Altersheim, Amriswil // Wettbewerb 1. Rang
- Amriswil
- Architektur, Wohnen, Fürsorge & Gesundheit, Wettbewerb, Generalplanung
-
- Hochregallager JUST Schweiz AG, Rheineck
- Langenhagstrasse 42, 9424 Rheineck
- Architektur, Baumanagement, Industrie & Gewerbe
-
- Kindergarten & Primarschule Felben-Wellhausen // Planerwahlverfahren 1. Rang
- Felben-Wellhausen
- Architektur, Baumanagement, Wettbewerb, Bildung & Forschung
-
- Logistikzentrum Pyropac AG, Sennwald
- Heberrietstrasse 6, 9466 Sennwald
- Architektur, Baumanagement, Industrie & Gewerbe
-
- Sanierung & Aufstockung Mehrfamilienhäuser «Bergholz», Wil
- Bergholzstrasse 26, 28 & 30, 9500 Wil
- Architektur, Wohnen
-
- Sanierung Wohn- und Geschäftshaus «Bühlhof» Steinberggasse, Winterthur
- Winterthur
- Architektur, Baumanagement, Wohnen, Kultur
-
- Aufstockung & Umbau ETH Forschungsgebäude «AgroVet-Strickhof», Lindau
- Lindau
- Architektur, Baumanagement, Bildung & Forschung, Büro & Verwaltung
-
- Wohnüberbauung VIVO 1, Amriswil
- Allee-/Freiestrasse, 8580 Amriswil
- Architektur, Generalplanung, Wohnen
-
- Gesamtsanierung Freibad Eichbüel, Oetwil am See
- Schachenstrasse 6, 8618 Oetwil am See
- Architektur, Freizeit, Sport & Bäder
-
- Ersatzneubauten «Flüeli» Wülflingerstrasse, Winterthur
- Wülflingerstrasse 135 & 137, 8400 Winterthur
- Wohnen, Architektur, Baumanagement
-
- Sanierung Primarschulhaus Feld, Thal
- Thal
- Architektur, Baumanagement, Bildung & Forschung, Kultur
-
- Mieterausbau Klubschule Migros «Clime», Basel
- Basel
- Architektur, Bildung & Forschung
-
- Mieterausbau SWICA «Elefant» Lokstadt, Winterthur
- Zürcherstrasse 31, 8400 Winterthur
- Architektur, Baumanagement, Büro & Verwaltung
-
- Mehrfamilienhaus «Im Wiesen», St. Margrethen
- Wiesen- / Industriestrasse, St. Margrethen
- Architektur, Areal- und Immobilienentwicklung, Wohnen, abgeschlossen
-
- Doppel-Einfamilienhäuser & Terrassenwohnungen «Panorama», Rebstein
- Sonnenbergstrasse, Rebstein
- Architektur, Areal- und Immobilienentwicklung, Wohnen, abgeschlossen
-
- Gesamtsanierung Primarschulhaus Lindenhof, Wil
- Lindenhofstrasse 19, 9500 Wil
- Architektur, Baumanagement, Bildung & Forschung
-
- Erweiterung BOGRAMA AG Turbenthal
- Mettlenstrasse 1, 8488 Turbenthal
- Industrie & Gewerbe, Architektur
-
- Bildungszentrum Polybau und Hauptsitz Gebäudehülle Schweiz, Uzwil // Wettbewerb 1. Rang
- Uzwil
- Büro & Verwaltung, Bildung & Forschung, Wettbewerb
-
- Neubau Schulhaus Breite, Balgach // Planerwahlverfahren 1. Rang
- Balgach
- Wettbewerb, Bildung & Forschung
-
- SFS intec AG Halle 6 Heerbrugg
- Rosenbergsaustrasse 10
- Architektur, Industrie & Gewerbe, Baumanagement
-
- Alterszentrum Hottingen Historisches Haus Wäldli
- Hottingen
- Fürsorge & Gesundheit, Wohnen, Architektur, realisiert, Umbau, Stiftungen, Vereine, Betreiber, Generalplanung
-
- Kath. Pfarrkirche St.Theresia, Rheineck
- 9424 Rheineck
- Architektur, Kultur, realisiert, Umbau, Kirchgemeinden
-
- Erweiterung Schulanlage Chapf, Brütten
- Brütten
- Architektur, Baumanagement, Bildung & Forschung
-
- Wohnen & Einkaufen Migros, Herisau // Wettbewerb 1. Rang
- Kasernenstrasse 18, 9100 Herisau
- Architektur, Wohnen, Handel & Verkauf, Hotel & Gastro, Neubau, Wettbewerb, Baumanagement
-
- Pflegeheim PeLago Rorschacherberg
- Wiesenstrasse 14, 9404 Rorschacherberg
- Architektur, Fürsorge & Gesundheit, Umbau, Sanierung, realisiert, Stiftungen, Vereine, Betreiber
-
- Zentrumsüberbauung St.Margrethen // Wettbewerb 1. Rang
- Bahnhofstrasse Südwest, 9430 St.Margrethen
- Architektur, Wohnen, Handel & Verkauf, Neubau, realisiert, Generalunternehmer, Wettbewerb
-
- Mühle Rickenbach
- Mühlestrasse, 9532 Rickenbach TG
- Wohnen, Architektur, realisiert, Neubau, Immobilienverwaltungen
-
- Brütsch Elektronik AG, Beringen
- Bodenäcker-/Anthoptstrasse, 8222 Beringen
- Industrie & Gewerbe, Architektur
-
- Forum St.Katharinen St.Gallen
- Katharinengasse 15/21, 9004 St.Gallen
- Architektur, Büro & Verwaltung, Umbau, realisiert, KMU's, Kultur
-
- Digitalhotel Neu-Schönstatt Quarten // Planerwahlverfahren 1. Rang
- Josef-Kentenich-Weg 1, 8883 Quarten
- Architektur, Hotel & Gastro, Umbau, Sanierung, realisiert, Wettbewerb, Stiftungen, Vereine, Betreiber, Wettbewerb
-
- Geschäftshaus Westoffice St.Gallen
- Kürsteinerstrasse 2, 9015 St. Gallen
- Architektur, Büro & Verwaltung, Neubau, realisiert, Immobilienverwaltungen
-
- Migros Fitnesspark Regensdorf
- Zentrum 3, 8105 Regensdorf
- Architektur, Freizeit, Sport & Bäder, Sanierung, realisiert, Grossverteiler, Betriebsgesellschaften
-
- Fitnesspark Stadelhofen Zürich
- Hufgasse 10, 8008 Zürich
- Architektur, Freizeit, Sport & Bäder, Einbau, realisiert, Grossverteiler, Betriebsgesellschaften
-
- Einkaufszentrum Volkiland Volketswil
- Industriestrasse 1, 8604 Volketswil
- Architektur, Handel & Verkauf, Sanierung, realisiert, Grossverteiler, Betriebsgesellschaften
-
- Besucherzentrum JUST Schweiz AG
- Unterdorf 62, 9428 Walzenhausen
- Architektur, Handel & Verkauf, Büro & Verwaltung, Neubau, realisiert, Institutionelle Bauherren, Anleger, Private
-
- The Circle Zürich Airport
- Zürich Airport
- Architektur, Büro & Verwaltung, Handel & Verkauf, Hotel & Gastro, realisiert, Neubau, Generalunternehmer
-
- Frei- und Hallenbad Opfikon
- Ifangstrasse 13, 8152 Opfikon
- Freizeit, Sport & Bäder, Architektur
-
- Wisenthalle & Bibliothek Wiesendangen
- Schulstrasse 27, 8542 Wiesendangen
- Architektur, Bildung & Forschung, Freizeit, Sport & Bäder, realisiert, Umbau, Erweiterung, Öffentliche Hand, Ortsgemeinden
-
- Gewerbehaus Deisrüti Seuzach // Wettbewerb 1. Rang
- Deisrütistrasse 21, Ober-Ohringen
- Architektur, Büro & Verwaltung, Neubau, Wettbewerb, Immobilienverwaltungen, Wettbewerb
-
- Mehrfamilienhäuser Unterrain Teufen
- Unterrain 11, 9053 Teufen AR
- Architektur, Baumanagement, Wohnen
-
- Pädagogisches Zentrum Pestalozzihaus: Teilprojekt Schulhaus und Mehrzweckhalle
- Alte St. Gallerstr. 1, 8352 Elsau-Räterschen
- Architektur, Bildung & Forschung, Freizeit, Sport & Bäder, Neubau, Sanierung, Umbau, realisiert, Stiftungen, Vereine, Betreiber
-
- Raiffeisenbank Unteres Rheintal Rheineck
- Bahnhofstrasse 38, 9424 Rheineck
- Architektur, Büro & Verwaltung, realisiert, Umbau, Institutionelle Bauherren, Anleger, Private, Grossverteiler, Betriebsgesellschaften
-
- Primarschulhaus Nideren Trogen // Wettbewerb 1. Rang
- Nideren 5, 9043 Trogen
- Architektur, Bildung & Forschung, Erweiterung, Neubau, Wettbewerb, Öffentliche Hand, Ortsgemeinden, Wettbewerb
-
- DACHCOM AG Löwenhof Rheineck
- Rorschacherstrasse 15, 9424 Rheineck
- Architektur, Büro & Verwaltung, Kultur, Einbau, Umbau, realisiert, KMU's
-
- Kunsteisbahn Dolder Zürich
- Adlisbergstrasse 36, 8044 Zürich
- Architektur, Freizeit, Sport & Bäder, Sanierung, realisiert, Öffentliche Hand, Ortsgemeinden
-
- Migros Säntispark Freizeit Abtwil
- Säntispark, 9030 Abtwil
- Architektur, Freizeit, Sport & Bäder, Hotel & Gastro, Handel & Verkauf, realisiert, Umbau, Grossverteiler, Betriebsgesellschaften
-
- Auwiesenstrasse Winterthur
- Auwiesenstrasse 19, 8400 Winterthur
- Architektur, Wohnen, realisiert, Neubau
-
- Migros Klubschule Westlink Zürich-Altstetten
- Vulkanplatz 8, 8048 Zürich-Altstetten
- Architektur, Bildung & Forschung, Einbau, realisiert, Grossverteiler, Betriebsgesellschaften
-
- Verwaltung Schweizerische Südostbahn St.Gallen
- Bahnhofstrasse 1a, 9001 St. Gallen
- Architektur, Büro & Verwaltung, Umbau, Sanierung, Institutionelle Bauherren, Anleger, Private
-
- Planung Hallenbad, Gossau
- Gossau
- Freizeit, Sport & Bäder, Architektur
-
- Wohnüberbauung 36.5° Heerbrugg
- Widnauer- / Nefenstrasse, 9435 Heerbrugg
- Areal- und Immobilienentwicklung, Architektur, Wohnen, abgeschlossen
-
- Data Center Widnau
- Industriestrasse 62, 9443 Widnau
- Architektur, Büro & Verwaltung, Neubau, realisiert, Institutionelle Bauherren, Anleger, Private, Generalunternehmer
-
- Bankfiliale Zürcher Kantonalbank Meilen
- Bahnhofstrasse 25, 8706 Meilen
- Architektur, Büro & Verwaltung, Umbau, realisiert, Institutionelle Bauherren, Anleger, Private
-
- Sporthalle Buechenwald Gossau // Wettbewerb 1. Rang
- Seminarstrasse 10, 9200 Gossau
- Architektur, Freizeit, Sport & Bäder, Sanierung, Wettbewerb, realisiert, Öffentliche Hand, Ortsgemeinden, Wettbewerb
-
- Produktions- und Bürogebäude JUST Schweiz AG Walzenhausen
- Unterdorf 62, 9428 Walzenhausen
- Architektur, Generalplanung, Industrie & Gewerbe, realisiert, Neubau, Institutionelle Bauherren, Anleger, Private, Büro & Verwaltung, Erweiterung, Baumanagement
-
- Betriebsgebäude Hälg & Co. AG St. Gallen
- Lukasstrasse 30, 9001 St. Gallen
- Architektur, Industrie & Gewerbe, realisiert, Neubau, Umbau, Institutionelle Bauherren, Anleger, Private
-
- Industrie- und Handelskammer St.Gallen-Appenzell
- Gallusstrasse 16, 9000 St. Gallen
- Architektur, Büro & Verwaltung, Umbau, Sanierung, realisiert, Stiftungen, Vereine, Betreiber, Kultur
-
- Bürogebäude STUTZ AG St.Gallen // Wettbewerb 1. Rang
- Martinsbruggstrasse 97, 9016 St. Gallen
- Architektur, Büro & Verwaltung, Neubau, Wettbewerb, realisiert, KMU's, Wettbewerb
-
- Sunnepark Alterszentrum Hottingen
- Freiestrasse 71, 8032 Zürich
- Architektur, Fürsorge & Gesundheit, Umbau, realisiert, Stiftungen, Vereine, Betreiber, Generalplanung
-
- Wohn- und Geschäftshaus Blickpunkt Buchs
- Bahnhof- und Alvierstrasse, 9470 Buchs
- Architektur, Areal- und Immobilienentwicklung, Wohnen, Handel & Verkauf, Neubau, realisiert, Institutionelle Bauherren, Anleger, Private
-
- Löwenhof Rheineck
- Rorschacherstrasse 15, 9424 Rheineck
- Architektur, Kultur, Wohnen, Büro & Verwaltung, realisiert, Umbau, Institutionelle Bauherren, Anleger, Private
-
- Primarschulanlage Rothenthurm // Offener Wettbewerb 1. Rang
- Schulstrasse 4, 9418 Rothenthurm SZ
- Architektur, Bildung & Forschung, realisiert, Erweiterung, Öffentliche Hand, Ortsgemeinden, Wettbewerb, Wettbewerb
-
- Produktionsgebäude Fisba AG St.Gallen
- Rorschacherstrasse 268, St. Gallen
- Architektur, Industrie & Gewerbe, Neubau, Erweiterung, realisiert, Institutionelle Bauherren, Anleger, Private
-
- Campus JANSEN AG Oberriet
- 9463 Oberriet
- Baumanagement, Büro & Verwaltung, Neubau, realisiert, Institutionelle Bauherren, Anleger, Private
-
- Universität St.Gallen
- Dufourstrasse 50, 9000 St. Gallen
- Architektur, Bildung & Forschung, Sanierung, Erweiterung, realisiert, Öffentliche Hand, Ortsgemeinden
-
- Einkaufszentrum Migros Rheinpark St.Margrethen
- 9430 St. Margrethen
- Architektur, Handel & Verkauf, Umbau, Sanierung, realisiert, Grossverteiler, Betriebsgesellschaften
-
- Einstein Congress St.Gallen
- Berneggstrasse 2, 9000 St. Gallen
- Architektur, Hotel & Gastro, Neubau, Erweiterung, realisiert, Grossverteiler, Betriebsgesellschaften
-
- Drehrestaurant Hoher Kasten Brülisau
- 9058 Brülisau
- Architektur, Hotel & Gastro, Neubau, realisiert, Grossverteiler, Betriebsgesellschaften
-
- Hauptsitz St.Galler Kantonalbank, St.Gallen // Wettbewerb 1. Rang
- St.Leonhardstrasse 58, 9001 St. Gallen
- Architektur, Büro & Verwaltung, Sanierung, Umbau, Wettbewerb, realisiert, Generalunternehmer, Institutionelle Bauherren, Anleger, Private, Wettbewerb