• Wie wir mit Bestand Zukunft bauen.
Kompetenz am Bestandsbau

Ob Abriss, Sanierung oder Verdichtung. Unterschiedliche Wege sind möglich.

 

Auch bei Liegenschaften tickt die Uhr: Früher oder später erreichen einzelne Bauteile das Ende ihrer Lebensdauer. Verwaltungen und Eigentümer*innen stehen dann vor der zentralen Frage: «Wie geht es weiter mit der Immobilie?»

Ob Erhalt, Verdichtung, Aufstockung oder doch ein Ersatzneubau sinnvoll ist, lässt sich nur klären, wenn die richtigen Fragen gestellt und die Ziele klar definiert werden. Jede Variante hat ihre Berechtigung – vorausgesetzt, sie basiert auf einer fundierten Entscheidungsgrundlage.

Weiterbauen mit dem Bestand schont Ressourcen und reduziert den CO2-Ausstoss und kann wirtschaftliche Vorteile bieten. Zudem trägt es zum Erhalt des Ortsbildes bei und stärkt die Identifikation mit dem Standort. Wollen Sie den Weg mit Ihrer Liegenschaft auch künftig weitergehen?

 
 

Unsere Aufgabe ist es, die Pros und Contras der Bestandsliegenschaft als fundierte Basis für Ihre nächsten Entscheidungen zu ermitteln.

 
 
Potenzialanalyse

Versteckte Potenziale gilt es zu erkennen. Bestandsliegenschaften werden oft unterschätzt – ihr wahres Potenzial bleibt verborgen. Unsere Analyse schafft Klarheit: Wir erfassen den Ist-Zustand, prüfen Gebäudestruktur, Nutzung, Grundstücksdaten sowie rechtliche und ökologische Aspekte oder den Denkmalschutz. Technisch analysieren wir Heizungs-, Elektro- und Sanitärsysteme, den energetischen Zustand und identifizieren Mängel oder Instandhaltungsbedarf.

Im nächsten Schritt ermitteln wir Entwicklungsmöglichkeiten – etwa durch baurechtliche Prüfungen, Nachverdichtung, Nutzungsänderung oder Förderprogramme. Am Ende erhalten Sie eine fundierte Handlungsempfehlung mit konkreten Zukunftsszenarien für Ihre Liegenschaft.

Der Transformationsgrad bzw. die Intensitätstiefe orientiert sich am Zustand der Bestandsliegenschaft.
Der Transformationsgrad bzw. die Intensitätstiefe orientiert sich am Zustand der Bestandsliegenschaft.
 
Praxisbeispiele
 
  •  
     

    Sanierung Bürogebäude Hälg AG, St.Gallen

    Nicht nur die Büroinfrastruktur, sondern die gesamte Betriebsinfrastruktur der Hälg Group war am Hauptsitz in St. Gallen in die Jahre gekommen. Insbesondere das bestehende Bürogebäude entsprach weder technisch noch funktional den heutigen Anforderungen an moderne Arbeitsumgebungen und energieeffiziente Gebäudestandards. 

    RLC wurde beauftragt, das Entwicklungspotenzial des gesamten Areals aufzuzeigen und eine zukunftsorientierte Lösung für die Modernisierung des Bürogebäudes zu erarbeiten.

  •  

    Lösung: Sanierung
    Nach dem Bau des neuen Betriebsgebäudes wurde das Bürogebäude aus dem Jahr 1965 umfassend saniert. Die markante Fassadengliederung mit hellen Betonbändern und -stützen blieb erhalten und prägt weiterhin das Erscheinungsbild. Die dunklen Brüstungen treten optisch zurück und unterstreichen die klare Struktur. 

    Der Rückbau erfolgte bis auf die Tragstruktur. Es wurden moderne Gebäudetechnik, eine Photovoltaikanlage und neue Liftanlagen installiert. Die Erdbebensicherheit wurde ertüchtigt, sämtliche Betonfassadenelemente und Fenster ersetzt. So entstand ein modernes Bürogebäude, das funktional und energetisch den heutigen Standards entspricht.

    • Rückbau auf Tragkonstruktion
    • Zeitgemässe Gebäudetechnik und PV-Anlage 
    • Erdbebenertüchtigung
    • Energieeffiziente Fassadenelemente und Fenster 
    • Neue Liftanlage
    • Nachhaltige und zukunftsfähige Aufwertung

    Facts
    Eigentümerin Hälg & Co. AG // Baujahr 1965 // Architektur Danzeisen + Voser // 100 % Teilleistungen gem. SIA 102 // Realisierung 2015–2016 // Geschossfläche 2‘967 m2 // Gebäudevolumen 10‘286 m3

  •  
    Vorher
    Nachher
  •  
     

    Sanierung und Aufstockung Mehrfamilienhäuser «Bergholz», Wil

    Die Asga Pensionskasse ist Eigentümerin der drei Mehrfamilienhäuser aus dem Jahr 1981. Die Gebäude wiesen einen erheblichen Sanierungsbedarf auf und entsprachen nicht mehr den heutigen Wohnstandards.

    RLC wurde beauftragt, das Potenzial der Liegenschaften zu analysieren und eine fundierte Entscheidungsgrundlage für eine Sanierung mit Erweiterung oder einen Ersatzneubau zu schaffen.

  •  

    Lösung: Erweiterung
    Die ungenutzte Ausnützungsreserve ermöglichte eine Aufstockung in Holzbauweise mit vier zusätzlichen Wohneinheiten. Dank der soliden Bausubstanz und der funktionalen Grundrisse konnten tiefgreifende Eingriffe und statische Verstärkungsmassnahmen vermieden werden. Nebst dem Rückbau bis auf die Tragstruktur des Rohbaus, umfasste die Sanierung unter anderem neue Küchen und Bäder, Fensterersatz, neue Liftanlagen sowie eine gedämmte Gebäudehülle mit hinterlüfteter Eternitverkleidung. Dabei erhielt das Gebäude eine frische, zeitgemässe Fassadengestaltung. Die Heizung wurde durch eine Erdwärmepumpe ersetzt, ergänzt durch eine Photovoltaikanlage. Vergrösserte Balkone, neue Beschattungselemente sowie eine naturnahe Umgebungsgestaltung mit wiederverwendeten Materialien (Kreislaufwirtschaft) rundeten das Projekt ab.

    • Sehr gute Bausubstanz und Gebäudestruktur
    • Aufstockung ohne statische Verstärkungen 
    • Realisierung zusätzlicher Wohneinheiten
    • Umfassende energetische Sanierung
    • Nachhaltige Energieversorgung
    • Aufwertung der Aufenthaltsqualität durch Vergrösserung der Balkone und naturnaher Aussenraumgestaltung

    Facts
    Eigentümerin Asga Pensionskasse // Baujahr 1981 // 24 Wohnungen // 64% Teilleistungen gem. SIA 102 // Planung 2021–2023 // Realisierung 2023–2024 // Geschossfläche 4'030 m2 // Gebäudevolumen 11'171 m3

  •  
    Vorher
    Nachher
  •  
     

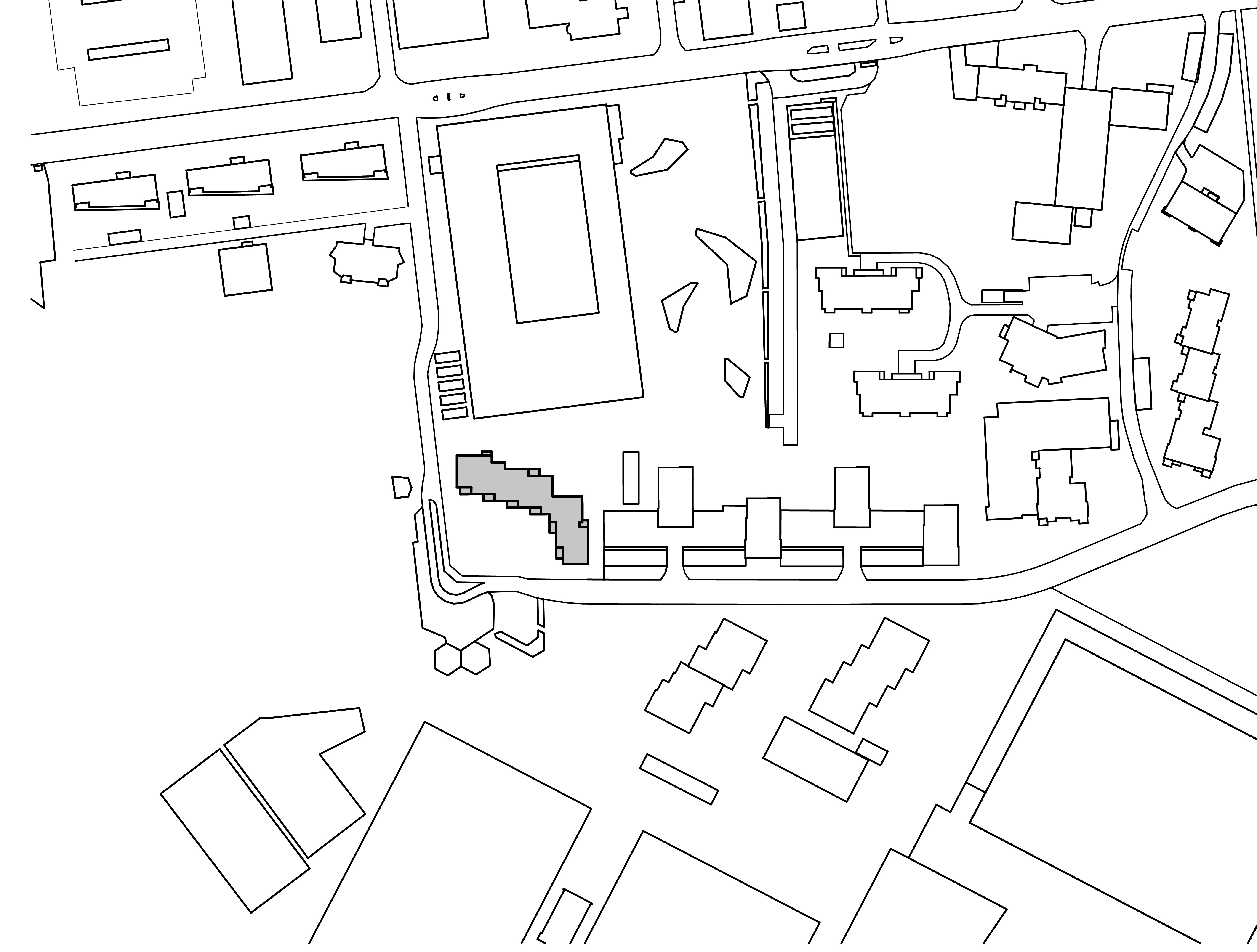
    Ergänzungsbau Auwiesenstrasse, Winterthur, im Standard Minergie-P

    Im Winterthurer Stadtteil Töss steht eine Arealüberbauung aus den 1960er-Jahren mit zwei Gebäuden, die einen offenen Hofraum bilden. Die Siedlung bot Potenzial für eine städtebauliche Verdichtung.

    RLC wurde von der Leemann + Bretscher Gruppe beauftragt, das bestehende Ensemble durch einen präzise gesetzten Neubau zu ergänzen. Ziel war es, zusätzlichen Wohnraum zu schaffen, den Hofraum aufzuwerten und gleichzeitig den Charakter der bestehenden Bebauung zu erhalten.

  •  

    Lösung: Verdichtung
    Unter dem Leitmotiv «Wohnen im Park» wurde ein sechsgeschossiges Mehrfamilienhaus mit siebzehn 2.5-Zimmer-Wohnungen realisiert. Der Neubau greift gestalterische Elemente der Bestandsbauten auf – etwa horizontale Fensterbänder, Balkonstrukturen und verputzte Fassaden – und stärkt so das Ensemble als Einheit. Die Ergänzung mit dem exakt positionierten Neubau ergibt eine spannungsvolle städtebauliche Situation. Die Wohnungen zeichnen sich durch kompakte Grundrisse, mehrseitige Belichtung, flexible Raumaufteilung und überraschende Durchblicke aus.

    • Präzise Nachverdichtung
    • Aufwertung des Aussenraums
    • Integration des Neubaus ins bestehende Ensemble
    • Kompakte und effiziente Grundrisse
    • Nachhaltiger Umgang mit Bestand und Umgebung

    Facts
    Eigentümerin Leemann + Bretscher Gruppe, Winterthur // 17 Wohnungen // 64.5 % Teilleistungen gem. SIA 102 // Realisierung 2016–2017 // Geschossfläche 2‘040 m2 // Gebäudevolumen 5‘975 m3

  •  
    Vorher
    Nachher
  •  
     

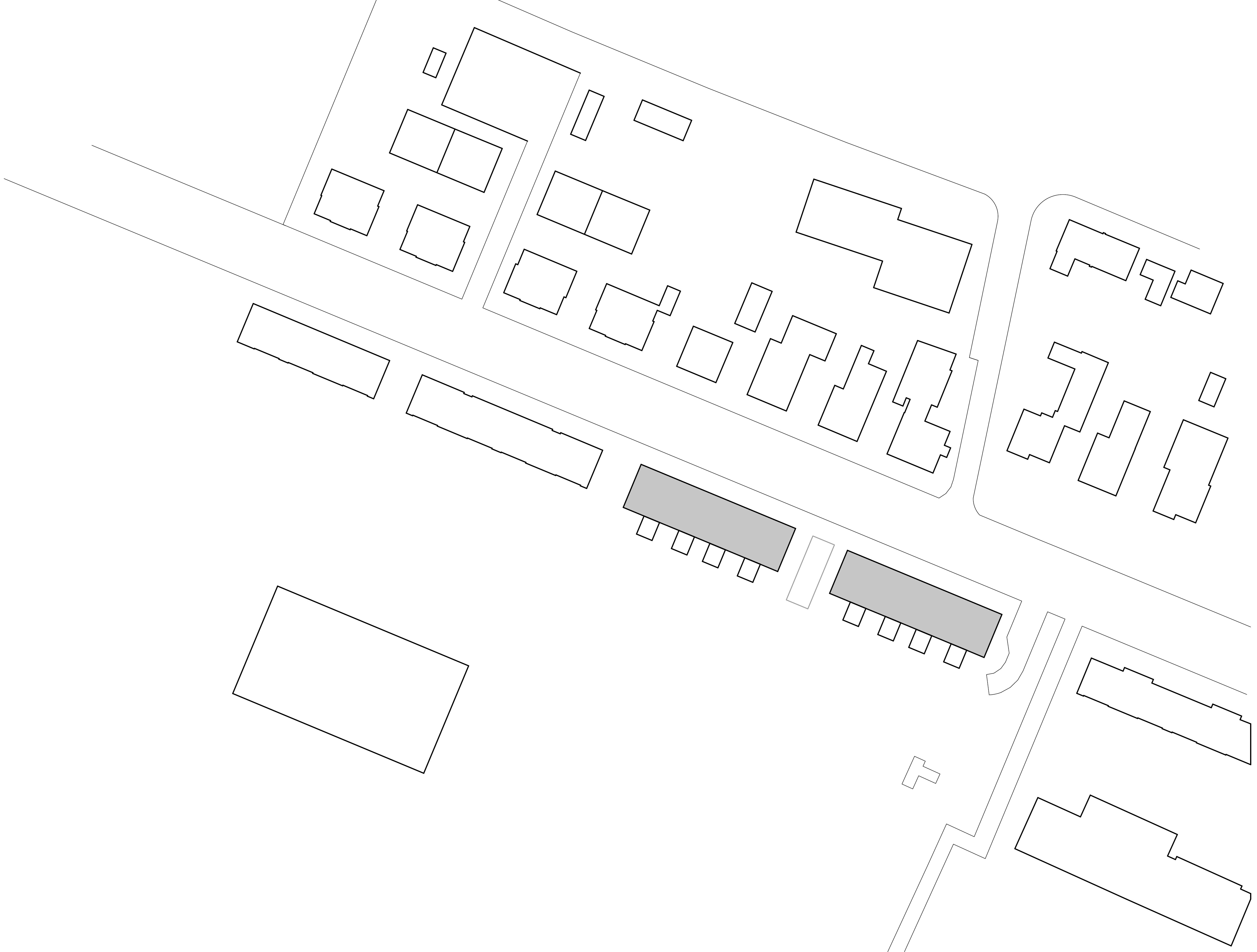
    Ersatzneubauten «Flüeli», Winterthur, im Standard Minergie-P

    Die Bestandsgebäude aus den 1930er-Jahren wiesen keinen ausreichenden Schallschutz auf, verfügten über unzeitgemässe Grundrisse und waren energetisch und technisch veraltet.

    Im Auftrag der Rivora Sammelstiftung c/o Auwiesen Immobilien AG, Winterthur analysierte RLC die bestehende Bausubstanz. Im Anschluss an den Entscheid für eine Neubebauung erfolgte die Planung und Realisierung für zwei zeitgemässe Ersatzneubauten.

  •  

    Lösung: Ersatzneubau
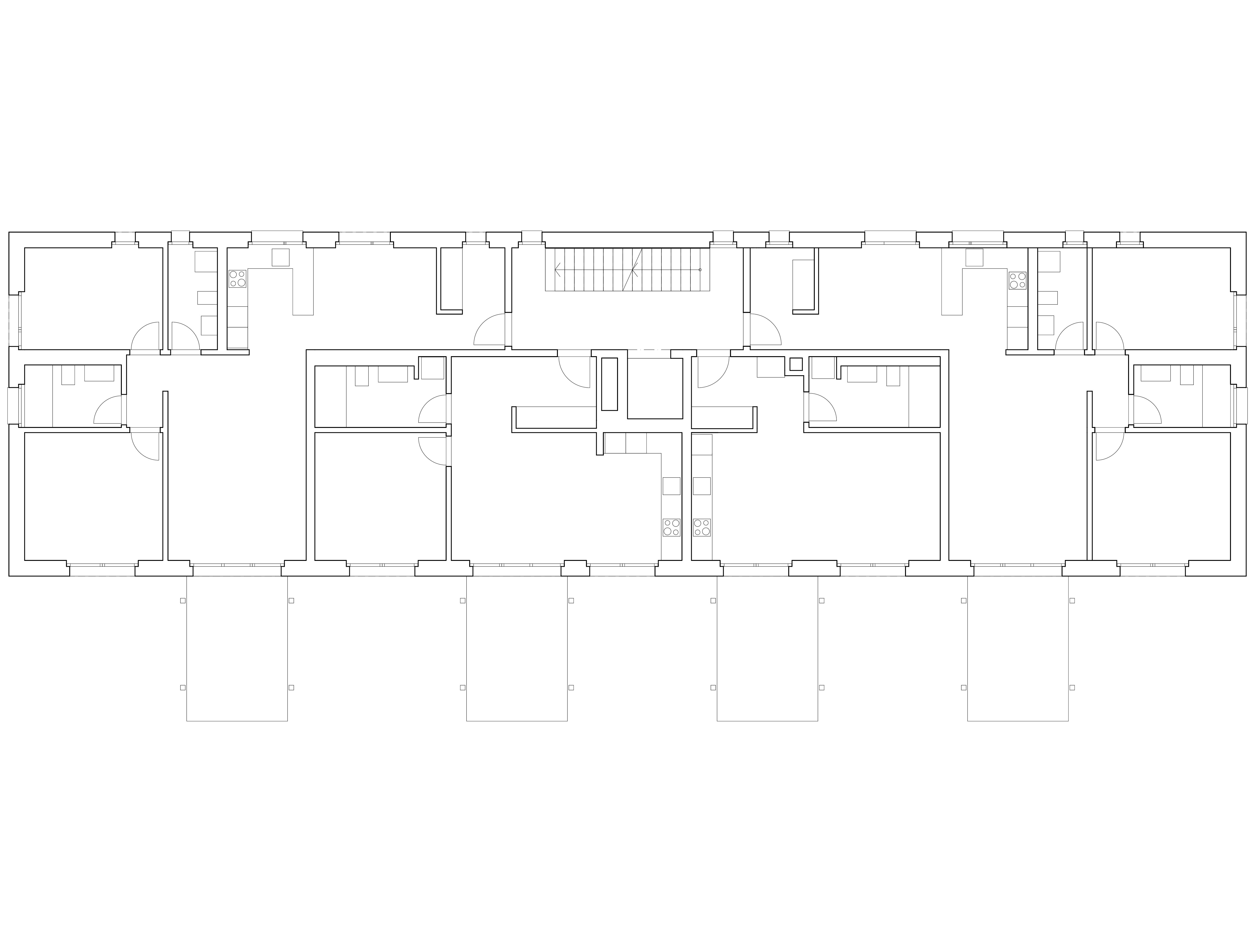
    Entstanden sind zwei Mehrfamilienhäuser mit insgesamt 22 Mietwohnungen von 1.5- bis 4.5-Zimmer. Die Erschliessung erfolgt über je ein zentrales Treppenhaus. Die Wohnräume sind nach Südwesten zum ruhigen und naturnah gestalteten  Aussenbereich hin ausgerichtet und verfügen über grosse Balkone. Die kompakten Grundrisse und der schlichte Ausbau ermöglichen eine attraktive Mietzinsgestaltung. Die Gebäude entsprechen dem Minergie-P-Standard, nutzen Wärmepumpen und erzeugen Strom über eine Photovoltaikanlage.

    • Hohe Energieeffizienz
    • Moderne und lärmoptimierte Grundrisse mit zum Aussenraum orientierten Wohnräumen
    • Attraktive Mietpreise durch einfachen Ausbau
    • Erhöhte Wohnqualität durch Ausrichtung zum ruhigen Aussenraum und grosse Balkone

    Facts
    Eigentümerin Rivora Sammelstiftung c/o Auwiesen Immobilien AG, Winterthur // 22 Wohnungen // 100 % Teilleistungen gem. SIA 102 // Planung 2020–2023 // Realisierung 2023–2023 // Geschossfläche 3‘367 m2 // Gebäudevolumen 10‘246 m3

  •  
    Vorher
    Nachher
 
Ansprechpartner 
Dipl. Architekt FH, MAS ZFH BA
T +41 71 886 17 38 M +41 76 516 64 11 reto.brunner@rlc.ch
seit August 2003 bei RLC
Reto Brunner CEO RLC Architekten AG, Rheineck // VR RLC AG
Dipl. Techniker HF Hochbau
T +41 52 269 15 55 M +41 78 824 05 01 michael.gnaedinger@rlc.ch
seit August 1997 bei RLC
Michael Gnädinger CEO RLC Architekten AG, Winterthur // VR RLC AG
Daniel Graber Geschäftsleitung RLC Architekten AG, Winterthur // Leitung Architektur & Entwurf
Dipl. Architekt ETH/SIA, KMU HSG
T +41 71 886 17 55 M +41 79 200 98 27 stephan.rausch@rlc.ch
seit August 2009 bei RLC
Stephan Rausch Geschäftsleitung & Verwaltungsrat RLC AG
Dipl. Architekt FH, Executive MBA
T +41 71 886 17 57 M +41 79 601 19 18 beat.vetterli@rlc.ch
seit August 1995 bei RLC
Beat Vetterli CEO RLC Immoprojekt AG, Rheineck
Dipl. Architekt HTL / SIA
T +41 71 886 17 82 M +41 79 337 17 65 remo.wirth@rlc.ch
seit September 2021 bei RLC
Remo Wirth Architekt // Leitung Architektur & Entwurf