
Die ursprüngliche Arealüberbauung im Winterthurer Stadtteil Töss bestand aus einem 7- und einem 3-geschossigen Gebäude. Beide Volumen bildeten einen offenen Hof, welcher jedoch wenig attraktiv in Erscheinung trat.
Im Rahmen einer Nachverdichtung ergänzte RLC gekonnt die bestehende Arealüberbauung aus den 60er Jahren.
Die Ergänzung mit dem exakt positionierten Neubau, unter dem Thema «Wohnen im Park», ergibt eine spannungsvolle städtebauliche Situation, die den Hof räumlich stärker fasst. Dieser erfährt eine deutliche Aufwertung durch den Erhalt der vorgefundenen Hügelkuppe mit der mächtigen Eiche, der Begrünung des bestehenden Tiefgaragendachs sowie dem Pflanzen zusätzlicher Bäume.
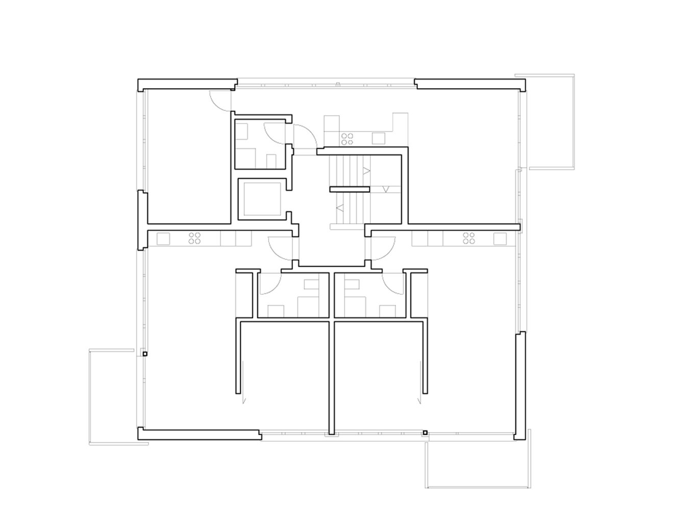
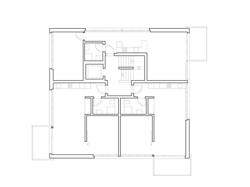
Der architektonische Ausdruck des Neubaus orientiert sich bewusst an den bestehenden Bauten. Das neue 6-geschossige Mehrfamilienhaus beinhaltet siebzehn 2.5-Zimmer-Mietwohnungen mit kompakten, gut organisierten Grundrissen. Mehrseitige Ausrichtungen und Durchblicke sowie Schiebeelemente ermöglichen trotz geringer Wohnfläche eine räumliche Grosszügigkeit.
«Die modernen und lichtdurchfluteten Wohnungen bieten den Mietern ausgezeichnete Wohnqualität. Kleinere Wohnungen mit durchdachten Grundrissen sprechen sehr unterschiedliche Zielgruppen an – das kleine ‹Hochhaus› war innert kürzester Zeit vollvermietet. Ein Erfolg auf ganzer Linie.»
Tiziano Canonica ehem. Geschäftsleitung Leemann + Bretscher Gruppe-
Informationen
Bauherrschaft Leemann + Bretscher Gruppe, Winterthur Aufgabe Ergänzung bestehende Arealüberbauung (Nachverdichtung) Auftragsart Direktauftrag Leistungen 64.5 % Teilleistungen gem. SIA 102 Realisierung 2016–2017
-
Planerteam
Totalunternehmer Ägeri Plan AG, Alosen Architekt RLC Architekten AG, Winterthur Bauingenieur Pfeiffer Bauingenieure AG, Elsau Elektroingenieur Heinz Schmid AG, Winterthur HLKS-Ingenieur Eisenbart + Partner AG, Münchwilen Bauphysik Kugucak Bauphysik, Rafz Landschaftsarchitekt Semalit Landschaftsarchitekten AG, Winterthur
- Geschossfläche m2
- Gebäudevolumen m3