Wohn- und Geschäftshaus Blickpunkt Buchs Bahnhof- und Alvierstrasse, 9470 Buchs
Ausgangslage

Buchs überzeugt als Lebens-, Arbeits-, Wohn-, Einkaufs-, Bildungs- und Freizeitort und bietet hohe Lebensqualität mit städtischem Angebot. Mit 12‘000 Einwohnern ist Buchs das Zentrum zwischen Chur und St. Gallen.

Aufgabe

Das Grundstück liegt mitten im Herzen von Buchs an zentralster Lage an der Bahnhofstrasse und profitiert von allen Vorteilen dieser Zentrumslage.

Das Konzept für die Grossüberbauung wurde durch die RLC Immoprojekt AG entwickelt.

Lösung // Herausforderungen

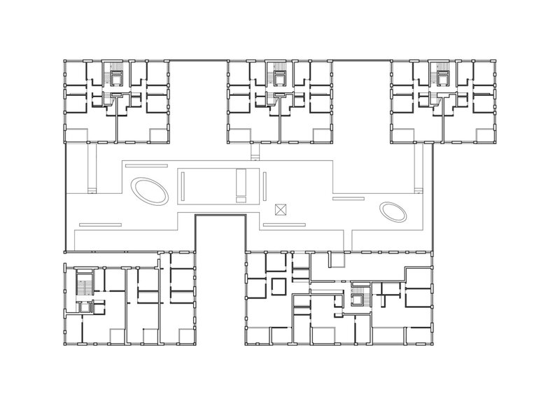
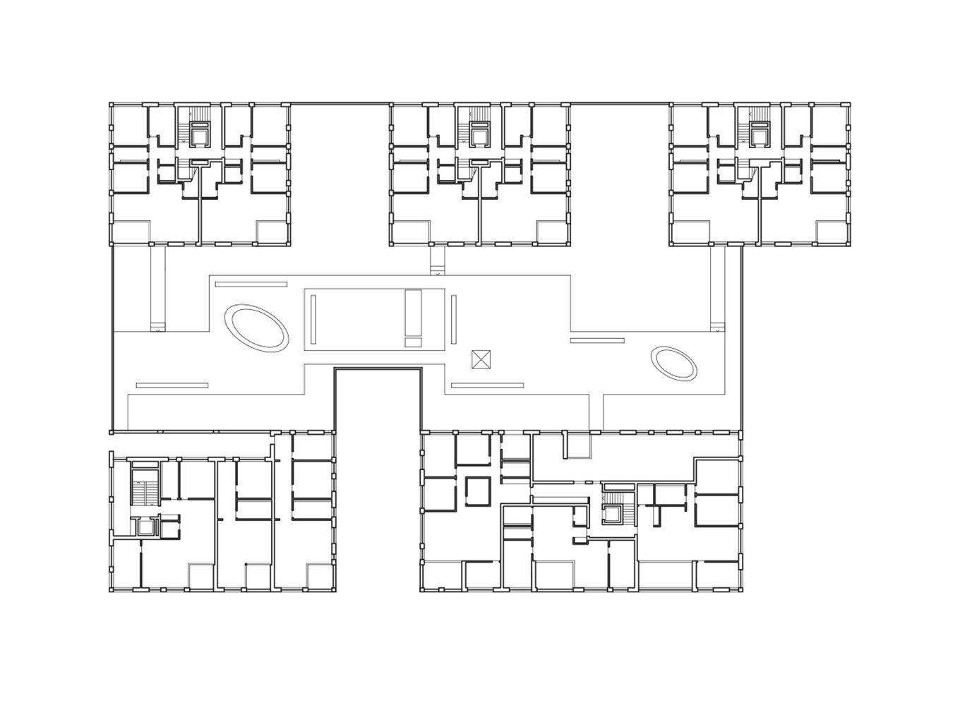
Im Erdgeschoss entstanden 2'940 m2 Verkaufsflächen. Darüber liegen 5 eigenständige Gebäude mit weiteren vier bis fünf Geschossen. Entlang der Bahnhofstrasse befinden sich in den oberen Etagen Büroflächen mit 2‘034 m2. In den Attikageschossen und in den drei hinteren Baukörpern entstanden 48 Wohnungen. Erschlossen werden die Gebäude durch eine gemeinsame Tiefgarage.

Impressionen
Pläne
Facts
  • Informationen
    Bauherrschaft Schweizerische Mobiliar, Bern Aufgabe Projektentwicklung Wohn- und Geschäftshaus Auftragsart Direktauftrag Leistungen 63.5 % Teilleistungen gem. SIA 102 Realisierung 2011–2013
  • Planerteam
    Generalunternehmer Allreal AG, St.Gallen Entwicklung RLC Immoprojekt AG, Rheineck Architekt RLC Architekten AG, Rheineck Statik Bänziger Partner AG, Buchs Elektroingenieur Marquart Elektroplanung, Buchs HLKS-Ingenieur Enerop AG, Goldach Bauphysik Stadlin Bautechnologie, Buchs Geologe Andres Geotechnik AG, St.Gallen
  • Anzahl Wohnungen
  • Verkaufsfläche m2
  • Geschossfläche m2
  • Gebäudevolumen m3