Einkaufszentrum Volkiland Volketswil Industriestrasse 1, 8604 Volketswil
Aufgabe

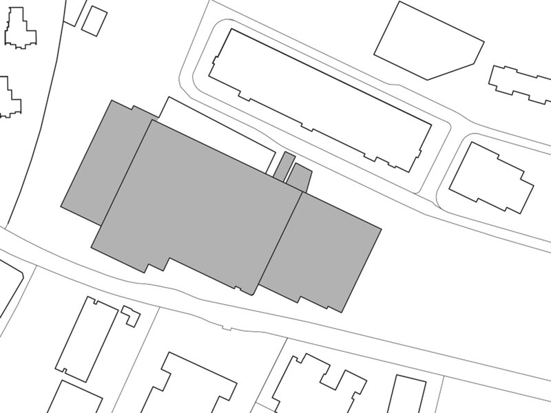
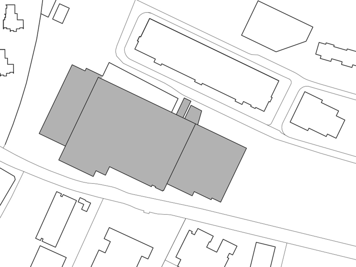
Das Einkaufszentrum Volkiland ist weit über die Region hinaus ein beliebter Einkaufsort. 1984 erbaut, entsprach der Bau nicht mehr den heutigen Brandschutzanforderungen. Mit der brandschutztechnischen Ertüchtigung wurde die Gelegenheit genutzt, das gesamte Gebäude für die heutigen Bedürfnisse zu modernisieren. 

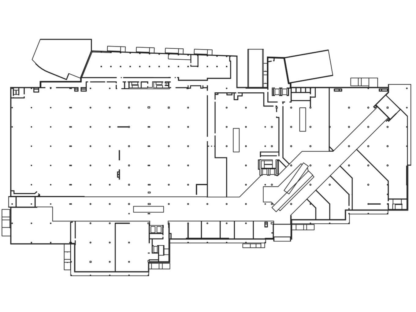
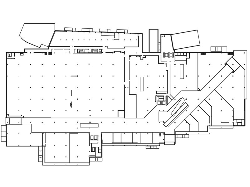
Der Charakter des Gebäudes, mit dem in der Höhe und Tiefe gestaffelten Baukörper und der Giebelsilhouette wurde bewahrt. Die Farbgebung ist moderner und frischer und trotzdem zeitlos. Im Innern wurde die Mall neu angeordnet. Der Haupteingang im Nord-Osten bindet das Volkiland besser in das Gesamtareal ein. Eine neue vertikale räumliche Verbindung vom Unter- bis ins 1. Obergeschoss mit frei angeordneten Fahrsteigen bringt Grosszügigkeit und Licht in die Mall und lädt zum Verweilen ein. Neue, in der Farbe differenzierte Lift- und Treppenanlagen helfen dem Besucher sich zurechtzufinden. Die Gebäudehülle wurde neu gebaut, um den heutigen energetischen Anforderungen zu genügen. Haustechnik- und Elektroinstallationen wurden komplett erneuert.

Dank der Etappierung der Baustelle und des Bauprovisoriums war es möglich das Einkaufszentrum während der gesamten Bauzeit, wenn auch in reduzierter Grösse, zu betreiben.

Impressionen
Pläne
Facts
  • Informationen
    Bauherrschaft Coop Immobilien AG, Bern Aufgabe Umstrukturierung Einkaufszentrum Auftragsart Direktauftrag Leistungen 61 % Teilleistungen gem. SIA 102 Realisierung 2017–2020
  • Planerteam
    Architekt RLC Architekten AG, Winterthur
  • Geschossfläche m2
  • Gebäudevolumen m3