Produktionsgebäude Fisba AG St.Gallen Rorschacherstrasse 268, St. Gallen
Aufgabe

Die FISBA erstellte High-Tech-Produktionsräume und deckt den zusätzlichen Raumbedarf. 

Lösung // Herausforderungen

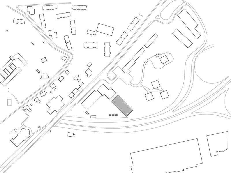
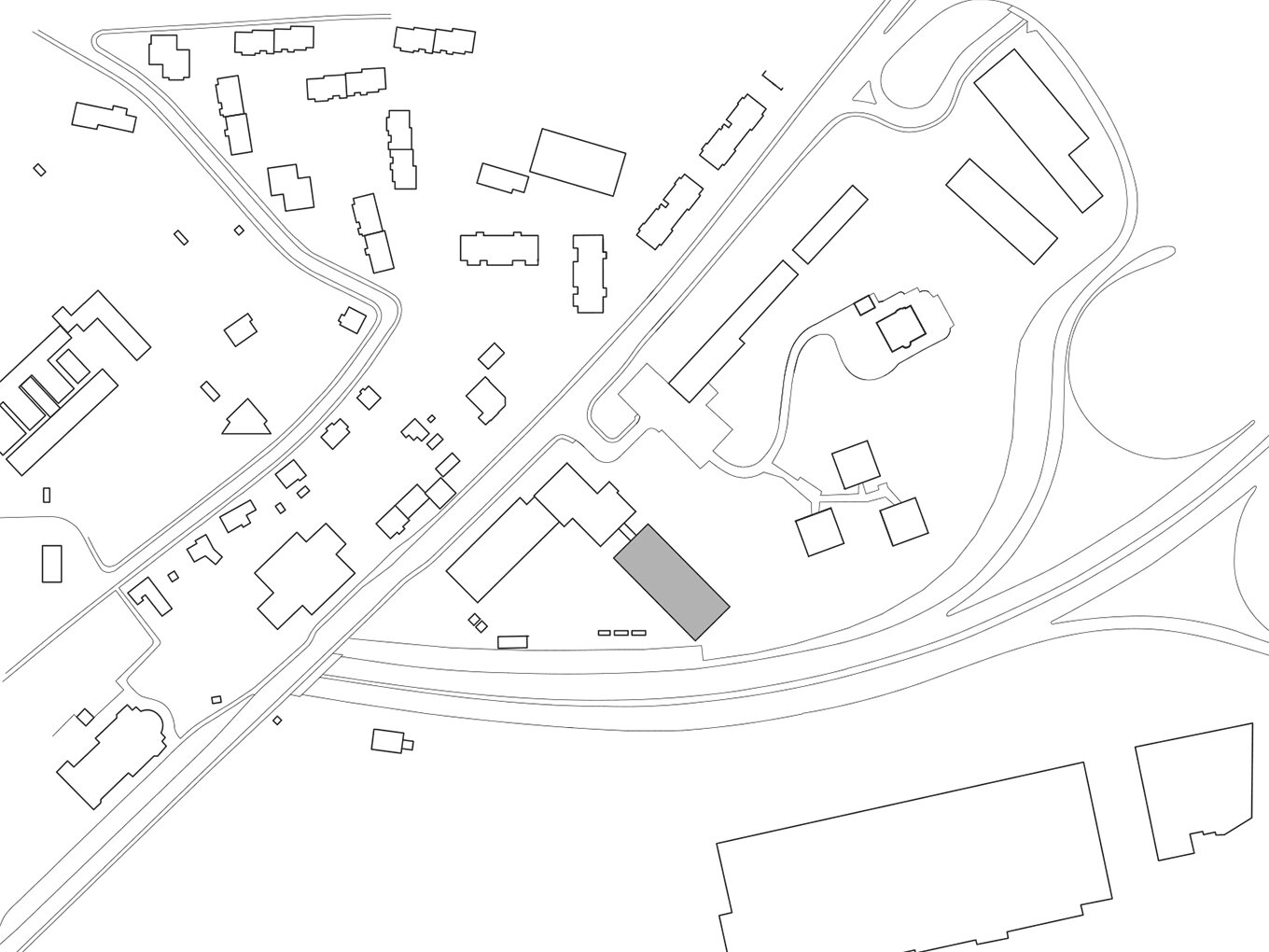
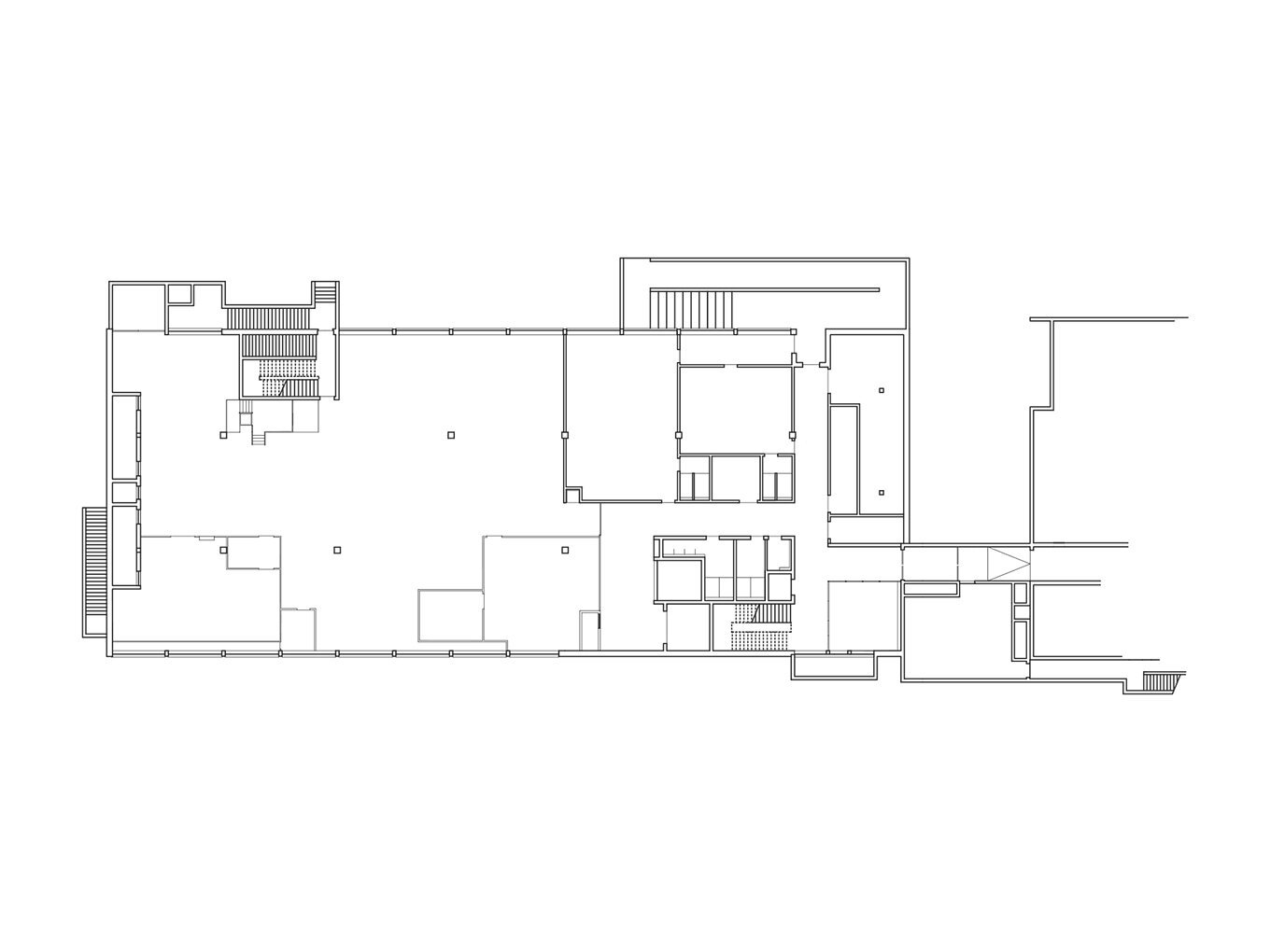
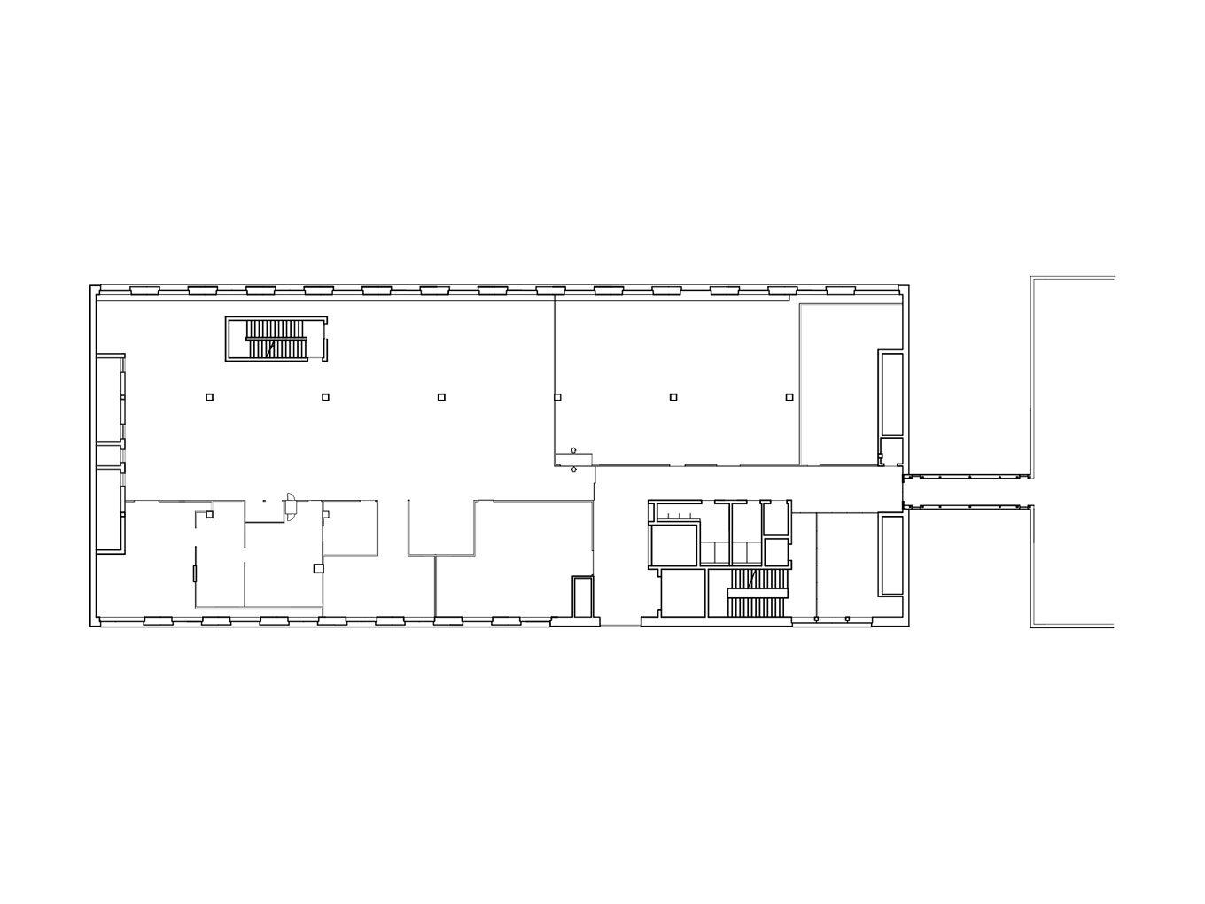
Nach einer intensiven Planungsphase und dem Abschluss der ersten Vorarbeiten, konnte die Ausführung des Neubaus beginnen. Das neue Gebäude ergänzt die bestehende winkelförmige Anlage in Richtung Süden. Neu- und bestehende Bauten werden durch eine Passarelle und einen unterirdischen Verbindungsgang erschlossen.

Die Fassade nimmt die vertikale Struktur des Hauptgebäudes auf. Abwechselnd offene und geschlossene, in den Geschossen horizontal verschobene Elemente ergeben eine spannungsvolle Gestaltung.

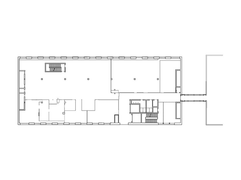
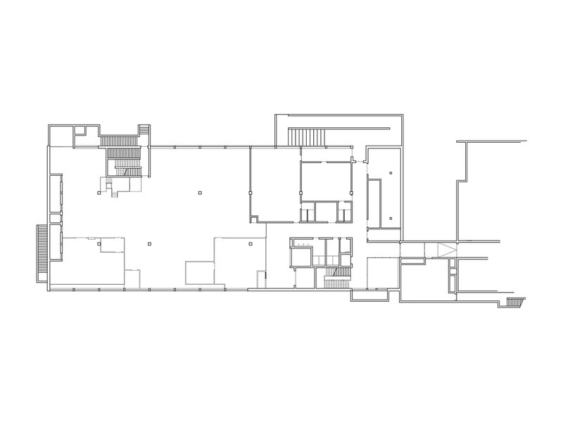
Auf vier Geschossen entstanden rund 4‘400 m2 modernste Produktionsflächen. Die offene Struktur der Räume lässt eine grösstmögliche flexible Nutzung zu. Mit diesem Raumkonzept kann die FISBA OPTIK künftig jederzeit auf die Veränderungen ihrer Produktionsprozesse reagieren.

Impressionen
Pläne
Facts
  • Informationen
    Bauherrschaft Fisba AG, St.Gallen Aufgabe Erweiterung Produktionsräume durch Neubau, Reinraumtechnik Auftragsart Direktauftrag Leistungen Vorstudien, Projektierung, Ausschreibung, Realisierung Realisierung 2011–2012
  • Planerteam
    Architekt RLC Architekten AG, Rheineck Bauingenieur Wälli AG Ingenieure, St.Gallen Elektroingenieur IBG B. Graf AG, St.Gallen HLKKS-Ingenieur Bösch Sanitäringenieure AG, Unterengstringen Bauphysik Studer + Strauss AG, St.Gallen Betriebsplanung Krineo Consulting GmbH, Thundorf Fassadenplanung Feroplan Engineering AG, Chur Geotechnik Andres Geotechnik AG, St.Gallen
  • Gebäudegrundfläche m2
  • Gebäudevolumen m3