
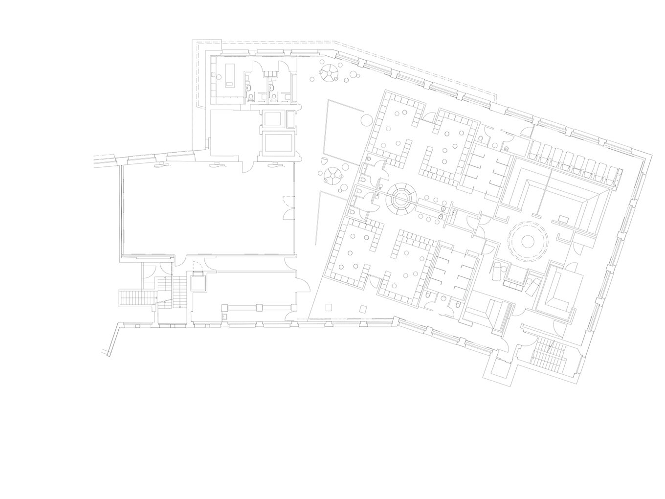
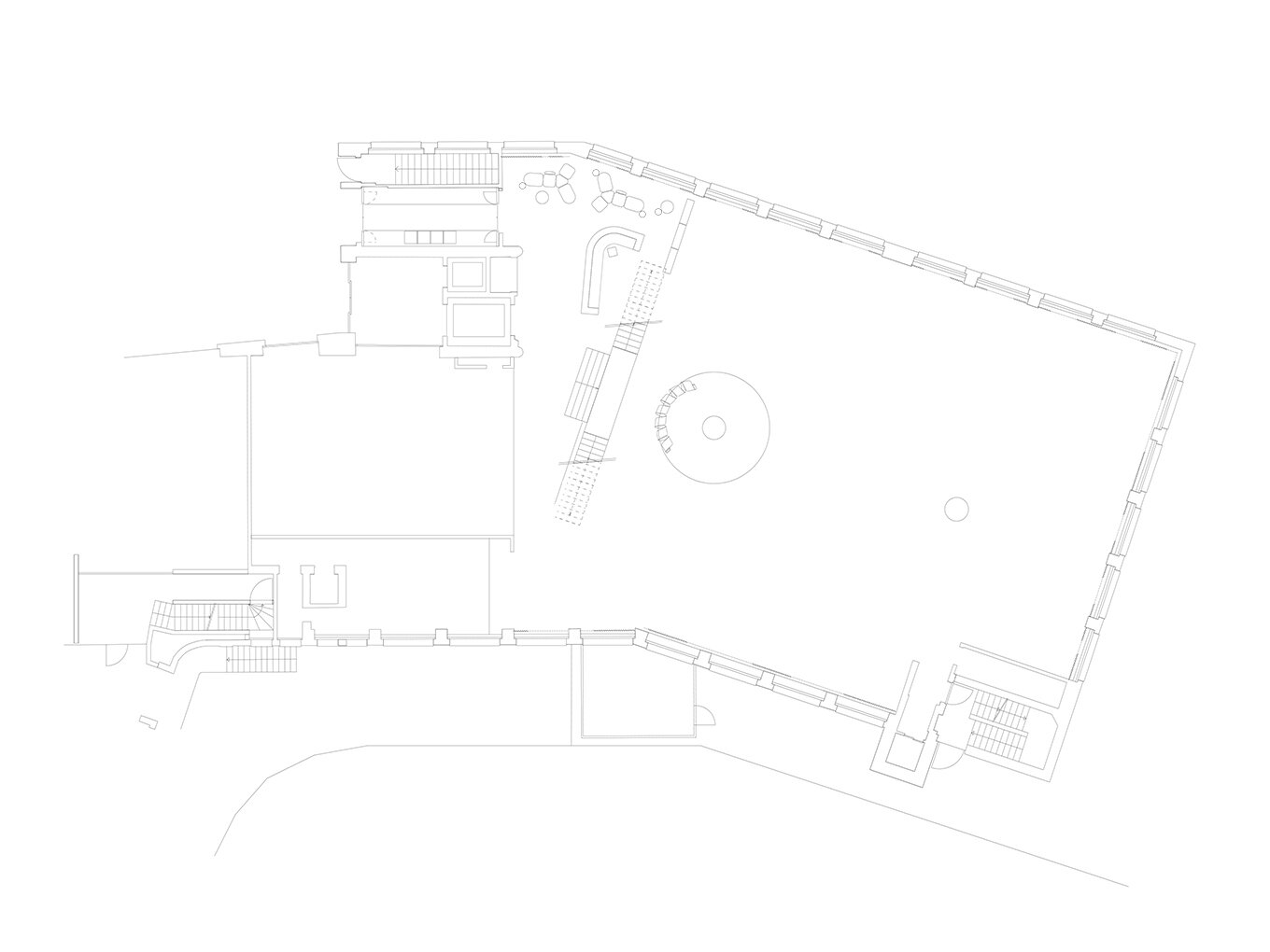
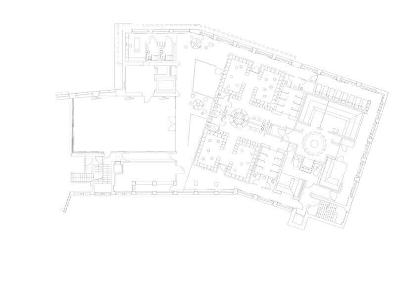
Das vom Fitnesspark neu geschaffene Trainingscenter Stadelhofen liegt mitten in Zürich, nicht weit von der Oper und vom Bahnhof Stadelhofen entfernt. Es erstreckt sich über drei Geschosse eines Ende der 1940er Jahre errichteten Autohauses, das später zum Geschäfts- und Bürogebäude umgenutzt wurde.
Ziel war der Einbau eines modernen Trainingszentrums in die vorhandenen Räumlichkeiten des ehemaligen Bürogebäudes.
Das neue Design stammt aus der Feder des Ateliers ushitamborriello. Das Bauen im Bestand verstand man bei diesem Projekt als Herausforderung und Chance. So wurden etwa die markanten pilzförmigen Betonstützen sichtbar belassen und als identitätsstiftendes Element in den Mittelpunkt der Grundrissstudien gestellt. Deckendurchbrüche zwischen Erdgeschoss und dem 1. Obergeschoss ermöglichen einen
großzügigen Eingangsbereich und erleichtern die räumliche Orientierung im Studio.
-
Informationen
Bauherrschaft Genossenschaft Migros Zürich Aufgabe Einbau Fitnesspark Auftragsart Direktauftrag Leistungen 54% Teilleistungen gem. SIA 102 Realisierung 2019–2020
-
Planerteam
Architekt RLC Architekten AG, Rheineck Innenarchitekt Ushitamborriello Innenarchitektur_Szenenbild, Rieden b. Baden Bauingenieur Hartenbach & Wenger AG, Bern Elektroingenieur Moor Elektroplan AG, Zürich Lüftungsingenieur Balplan AG, Olten HLKK-Planung JUNGENERGIE GMBH, Zürich Bauphysik Baumann Akustik + Bauphysik AG, Uzwil Brandschutz Migros-Genossenschafts-Bund, Zürich Beleuchtungsplaner Königslicht GmbH, Zürich Türplaner batishield ag, Rüti MSR-Ingenieur HKG Consulting AG, Schlieren