
Die beiden Bestandsgebäude aus den 1930er Jahren entsprachen nicht mehr den heutigen Wohnanforderungen und wiesen zahlreiche Mängel auf. Die Gebäude waren energetisch ineffizient, mit einer ungedämmten Fassade und einer veralteten Ölheizung. Auch die Grundrisse erfüllten die Anforderungen an modernes Wohnen nicht: Viele Zimmer waren zur lärmigen Wülflingerstrasse hin ausgerichtet, die Küchen und Nasszellen zu klein, und es fehlte an Barrierefreiheit. Zudem gab es weder Parkmöglichkeiten noch einen Lift. Aufgrund dessen entschied sich die Bauherrschaft für den Bau von zwei zeitgemässen Neubauten.
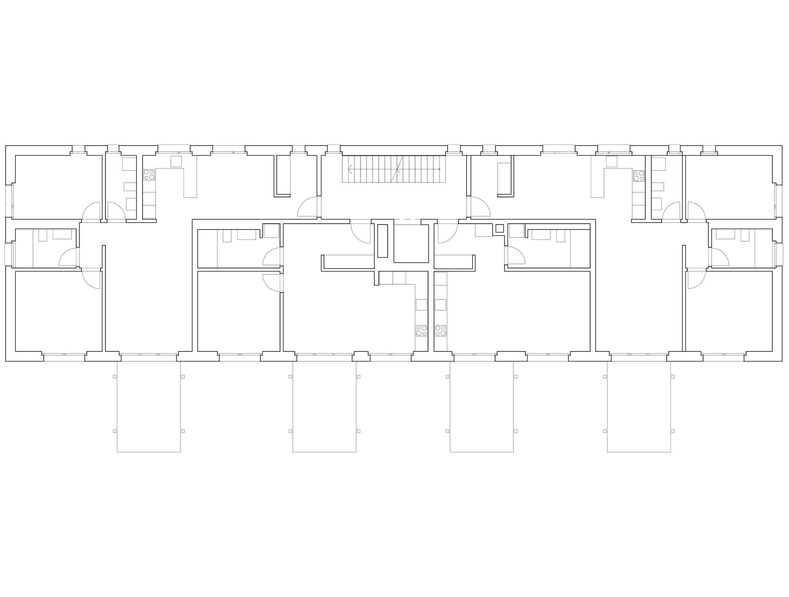
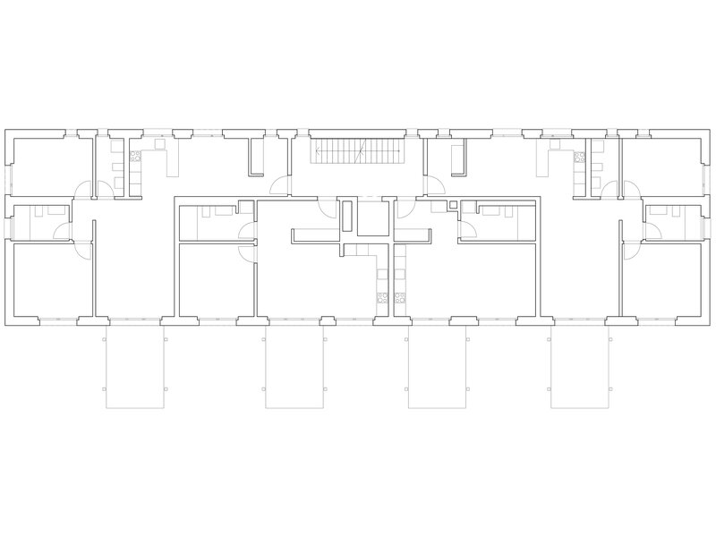
Die Neubauten orientieren sich, analog zu ihren Vorgängern, parallel zur Strasse hin. Im Innern erschliesst jeweils ein Treppenhaus bis zu vier Wohnungen pro Stockwerk. Die Wohnräume sind neu mehrheitlich nach Südwesten zum ruhigen und naturnah gestalteten Aussenbereich hin ausgerichtet. Dort befinden sich auch die grossen Balkone. Durch die kompakte und raffinierte Organisation der lärmoptimierten Grundrisse und den schlicht gehaltenen Ausbau, können die 22 Wohnungen mit 1.5 bis 4.5 Zimmern zu attraktiven Mietzinsen angeboten werden. Die Bauten erfüllen den Standard Minergie-P, werden mit einer Wärmepumpe beheizt und produzieren mit der installierten Fotovoltaikanlage einen Teil des Stroms selbst.
Die Wohnungen wurden nach rund 19 Monaten Bauzeit, in zwei Etappen den neuen Mieter*innen übergeben. RLC übernahm vom Vorprojekt bis zur Schlüsselübergabe sämtliche Leistungen.
-
Informationen
Bauherrschaft Rivora Sammelstiftung c/o Auwiesen Immobilien AG, Winterthur Aufgabe Neubau Standard Minergie-P Auftragsart Direktauftrag Leistungen 100% Teilleistungen gem. SIA 102 Planung 2020–2023 Realisierung 2023–2024
-
Planerteam
Architekt RLC Architekten AG, Winterthur Bauingenieur Dr. J. Grob & Partner AG, Winterthur HLS-Planung Planelement GmbH, Winterthur Elektroplanung Avegon AG, Glattbrugg Bauphysik Zehnder & Kälin AG, Winterthur Brandschutz RLC Architekten AG, Winterthur Landschaftsarchitekt Semalit Landschaftsarchitektur AG, Winterthur
- Wohnungen
- Geschossfläche GF
- Gebäudevolumen GV