
Die SOB realisierte einen Umbau im Verwaltungsgebäude am Bahnhofplatz 1a.
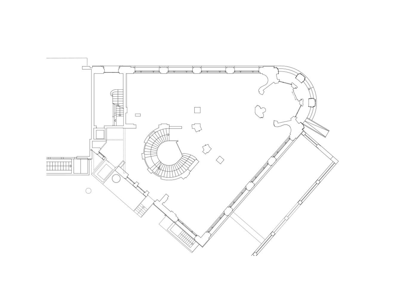
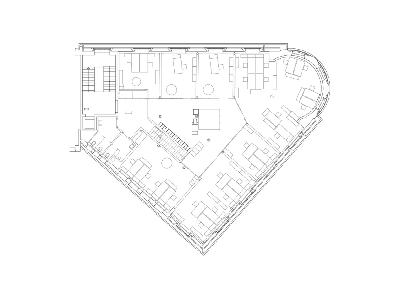
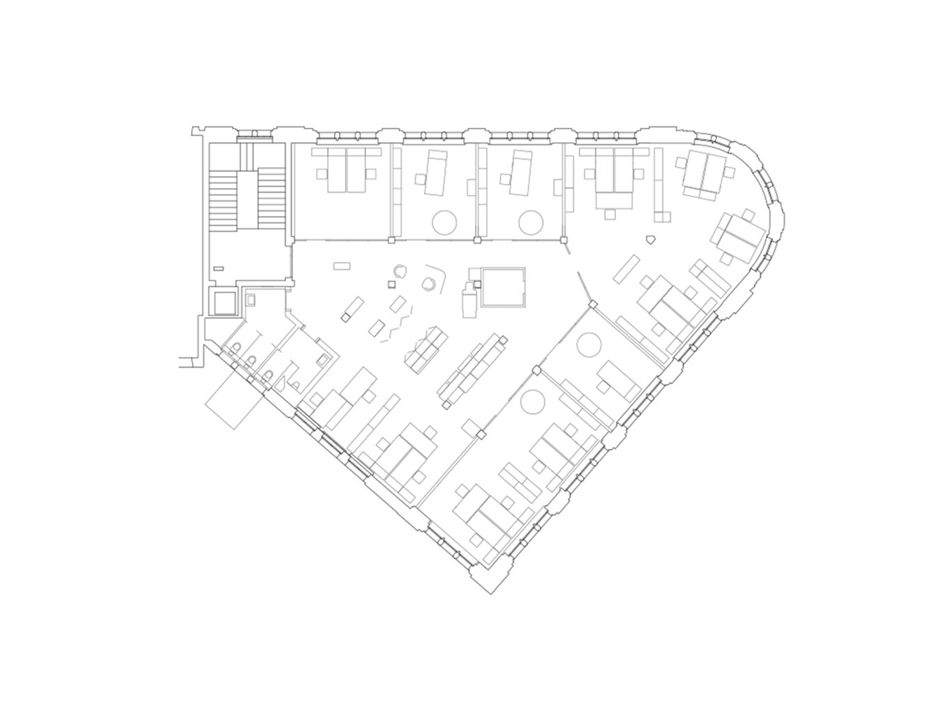
Mit dem Umbau wurden die Flächen besser ausgenutzt, neu strukturiert und substanzerhaltende Sanierungen Innen und Aussen vorgenommen. Der Umbau beinhaltete Teile des 1. Obergeschoss, das gesamte 2. und 3. Obergeschoss sowie das Dachgeschoss. Das Erdgeschoss, Zwischengeschoss und 1. Obergeschoss wurden an Tibits fremdvermietet. Basis bildete unter anderem eine Schutzvereinbarung mit der Stadt St. Gallen.
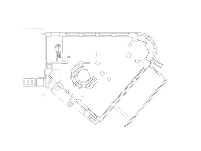
Die Geschossflächen des 2. und 3. Obergeschosses wurden von den jüngeren Ergänzungen und Anpassungen befreit und auf die Grundstruktur des Originalbaus zurückgeführt. Dadurch ist die Rippenstruktur des Gebäudes wieder erkennbar und ablesbar.
Das Dachgeschoss wurde ausgebaut. Die Dachlandschaft blieb unangetastet. Der Originalzustand der Fassaden konnte gehalten werden. An der Südwestfassade wurde ein Lift positioniert, welcher für den Fremdmieter Tibits für die betrieblichen Abläufe notwendig ist.
-
Informationen
Bauherrschaft Schweizerische Südostbahn AG Aufgabe Umbau historisches Verwaltungsgebäude Auftragsart Direktauftrag Leistungen Vorstudien, Projektierung, Ausschreibung, Realisierung Realisierung 2016–2017
-
Planerteam
Architekt RLC Architekten AG, Rheineck Architekt Tibits AG W. Oberholzer + D. Brüschweiler Architekten AG, Küsnacht Bauingenieur Wälli AG Ingenieure, St. Gallen Holzbauingenieur Gerevini Ing.-büro AG, St. Gallen Elektroingenieur R + B engineering ag, St. Gallen HLKS-Ingenieur GF Energietechnik AG, Brunnen Bauphysik Studer + Strauss AG, St. Gallen Brandschutz Amstein + Walthert AG, St. Gallen
- Geschossfläche m2
- Gebäudevolumen m3