Alterszentrum Hottingen Historisches Haus Wäldli Hottingen
Ausgangslage

Das Alterszentrum Hottingen gehört zu den Betrieben der Stiftung Diakoniewerk Neumünster – Schweizerische Pflegerinnenschule. Im Zentrum wurden in den letzten Jahren moderne und barrierefreie Alterswohnungen realisiert. Der Wettbewerb zur Erweiterung des Bestandes im Jahr 2004, bildete den Start für die langjährige Zusammenarbeit. 2013 erfolgte die Fertigstellung des fünfgeschossigen «Schulthesspark» mit 57 Wohneinheiten. Im Anschluss erhielt RLC den Auftrag, im Altersheim «Sunnepark» in 60 behindertengerechte Wohnungen mit zusätzlichen Räumen für die Gastronomie, Pflege und Verwaltung zu realisieren. 2014 folgte der Umbau des Restaurants «Oase».

Aufgabe

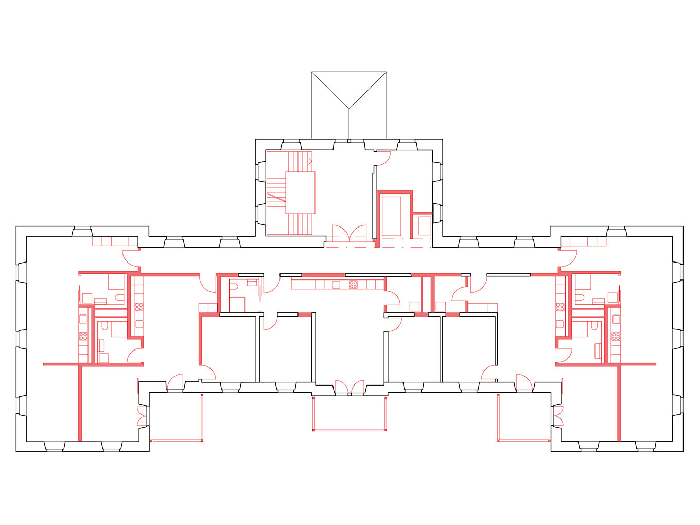
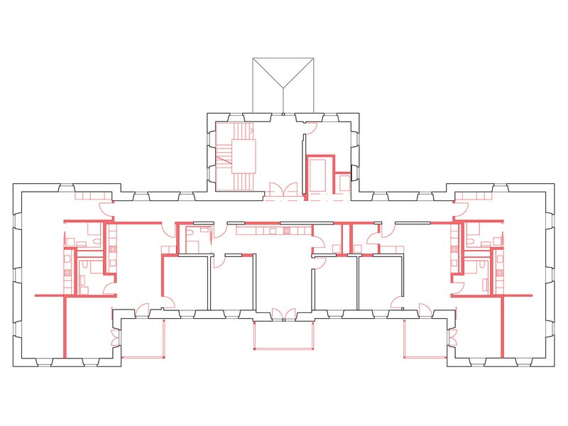
Das 1880 erbaute Gebäude gehört inklusive der Gartenanlage und dem Baumbestand zu den geschützten Objekten im Kanton Zürich. Der Bau zeichnet sich mit dem Mittel- und den beiden Eckrisaliten durch seine strenge Fassadengliederung und Symmetrie aus. Im Zuge der Umnutzung und des Totalumbaus des Gebäudes wurden ein Empfangsschalter, Büros und multifunktionale Räume realisiert. In den oberen Geschossen befinden sich neu 20 Alterswohnungen. 

Die Erschliessung erfolgt wiederum über den Mittelrisalit, wo sich das Treppenhaus mit Betten- und Personenlift befindet. Die Pflegezimmer und Wohnungen, welche sich nach Süd-Osten zum Garten hin orientieren, werden über den strassenseitigen Korridor erschlossen. In Zusammenarbeit mit der Denkmalpflege konnten Eingriffe an der Fassade, wie die neuen Balkonanbauten als leichte Stahlkonstruktion, erarbeitet werden. Den Abschluss bildete die Instandsetzung und rollstuhlgängige Erschliessung des Gartens.

Lösung // Herausforderungen

Die Sanierung des historischen Hauses erforderte eine enge Zusammenarbeit mit der zuständigen Denkmalpflege. Mit der Ausrichtung auf moderne Alterswohnungen wurde das Konzept des Hauses auf die künftigen Bedürfnisse ausgerichtet und die Gesamtlange des Alterszentrums sinnvoll ergänzt. 

quote «Wir schätzen die vertrauensvolle und langjährige Zusammenarbeit mit RLC.»

«Die vertrauensvolle Zusammenarbeit mit RLC wird in unserer Stiftung seit vielen Jahren geschätzt. Unsere Liegenschaften – von historischen Bestandsgebäuden bis hin zu modernen Neubauten – unterscheiden sich in Bezug auf Bauweise und Nutzung. RLC hat es verstanden, bei jedem Projekt mit individuellen Lösungen zu überzeugen, ohne dabei die Gesamtheit der Anlage zu vernachlässigen.»

Carla Veser Leiterin Immobilien Stiftung Diakoniewerk Neumünster – Schweizerische Pflegerinnenschule
Impressionen
Pläne
Facts
  • Informationen
    Bauherrschaft Stiftung Diakoniewerk Neumünster – Schweizerische Pflegerinnenschule, Zollikerberg Aufgabe Umbau und Sanierung Haus Wäldli als Teil der Gesamtanlage Alterszentrum Hottingen Auftragsart Direktauftrag Leistungen Vorstudien, Projektierung, Ausschreibung, Realisierung Planung 2017–2018 Realisierung 2019–2022
  • Planerteam
    Architekt RLC Architekten AG, Winterthur Bauingenieur Dr. Deuring + Oehninger AG, Winterthur Elektroingenieur 3-Plan Haustechnik AG, Winterthur HLS-Ingenieur 3-Plan Haustechnik AG, Winterthur Bauphysik BWS Bauphysik AG, Winterthur Landschaftsarchitekt Ganz Landschaftsarch. GmbH, Zürich
  • Anzahl Alterswohnungen Wäldli
  • Anzahl Alterswohnungen Total
  • Erbaut
  • Geschossfläche
  • Gebäudevolumen