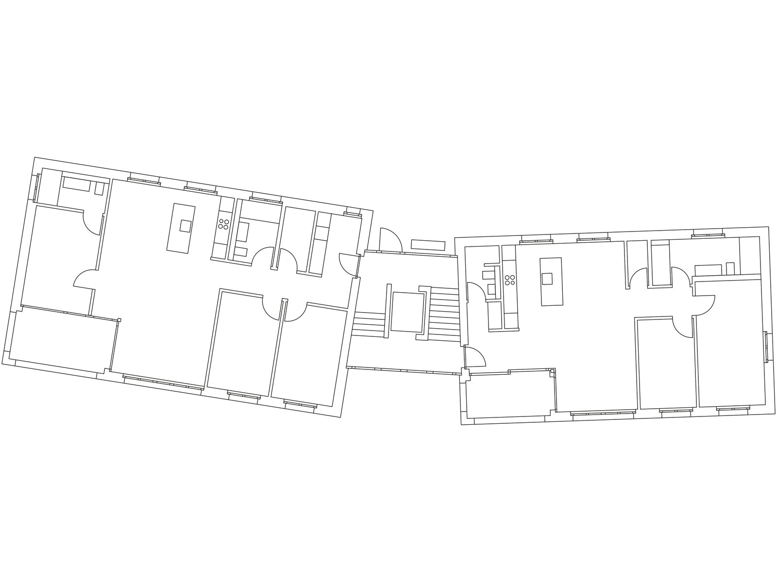
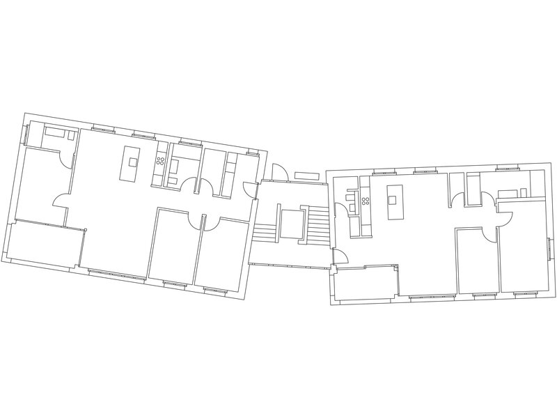
Das Grundstück der Brauerei Schützengarten befindet sich zwischen dem Trassee der Appenzeller Bahnen AG, die direkt an die Hauptstrasse grenzt, und dem rund 11 m höher gelegenen Unterrain. Auf der Parzelle existierte ein Wohnhaus mit angrenzender Scheune. Darunter lagen zwei in den Fels geschlagene Stollenkeller, die der Brauerei als Getränkelager gedient haben.
Das Neubauprojekt wurde in enger Zusammenarbeit mit dem Fachgremium Architektur und Ortsbild Teufen (FAOT) entwickelt. Dabei war eine ortsbildende Lösung der Hauptbeweggrund für 3 Ausnahmebewilligungen, um den ortsbaulichen Charakter beizubehalten.
Die beiden Wohngebäude mit jeweils 4 Wohnungen ähneln in ihrer Kubatur den ursprünglich vorhandenen Gebäuden und folgen in ihrer Stellung dem Strassenverlauf. Das Treppenhaus steht zurückversetzt zwischen den Gebäuden und erschliesst - ausser im Dachgeschoss - alle Wohnungen behindertengerecht. Unter dem Sockelgeschoss, welches sich nur hangseitig öffnet, befinden sich im 1.UG die allgemeinen und privaten Kellerräume. In einem weiteren Untergeschoss ist die Tiefgarage mit 11 Stellplätzen und Veloraum, in die von der Hauptstrasse eingefahren wird.
-
Informationen
Bauherrschaft Brauerei Schützengarten AG, St.Gallen Aufgabe Neubau Auftragsart Direktauftrag Leistungen 100% Teilleistungen gem. SIA 102 Realisierung 2018–2019
-
Planerteam
Architekt RLC Architekten AG, Winterthur Bauleitung RLC Architekten AG, Winterthur Bauingenieur RKL Emch + Berger AG, Gams Elektroingenieur SE Schmidheiny, Widnau HLS-Ingenieur Gerster Gebäudetechnik, Altstätten
- Bauzeit in Monaten
- Geschossfläche m2
- Gebäudevolumen m3
- Teilleistungen in % gem. SIA 102
-
- Gesamtsanierung Personalhäuser Hochgebirgsklinik, Davos
- Herman Burchard Strasse 5-7, 7265 Davos
- Wettbewerbe/Studien, Architektur, Wohnen
-
- Alterswohnungen Amriswil
- Alleestrasse 11/11a, 8580 Amriswil
- Architektur, Wohnen, Fürsorge & Gesundheit, Generalplanung
-
- Kindergarten & Primarschule Felben-Wellhausen
- Bahnhofstrasse 17, 8552 Felben-Wellhausen
- Architektur, Bildung & Forschung
-
- Schulhaus Breite, Balgach // Planerwahlverfahren 1. Rang
- Balgach
- Architektur, Bildung & Forschung
-
- Wohnüberbauung Otmarhof, Güttingen
- Güttingen
- Architektur, Wohnen
-
- Wohn- und Tagesstätte «Autismus Wyden» Brühlgut Stiftung, Winterthur
- Euelstrasse 52d, 8408 Winterthur
- Architektur, Baumanagement, Fürsorge & Gesundheit, Neubau
-
- Mehrfamilienhaus «Wuhrstrasse», Goldach
- Wuhrstrasse 28, 9403 Goldach
- Architektur, Baumanagement, Wohnen
-
- Überbauung Areal Alp, St.Margrethen
- St. Margrethen
- aktuell, Areal- und Immobilienentwicklung, Architektur, Wohnen, Büro & Verwaltung, Hotel & Gastro
-
- Novu Campus, The Circle
- Zürich Flughafen
- Architektur, Büro & Verwaltung
-
- Einfamilienhaus & Reihen-Einfamilienhäuser «Meierhof» im Eigentum, Muolen
- Muolen
- aktuell, Areal- und Immobilienentwicklung, Architektur, Baumanagement, Wohnen
-
- Zentrumsüberbauung «Rosenhof» Oase-Gruppe, Effretikon
- Effretikon
- Wohnen, Fürsorge & Gesundheit, Architektur, Neubau
-
- Schreinerkompetenzzentrum, St.Margrethen
- St.Margrethen
- Architektur, Areal- und Immobilienentwicklung, Bildung & Forschung
-
- Wohnüberbauung «Tres Terrae», Altstätten
- Altstätten
- Architektur, Wohnen
-
- Miduca Klubschule «Clime», Basel
- Basel
- Architektur, Bildung & Forschung, Büro & Verwaltung
-
- Wohnüberbauung «Eichwaldhof», Winterthur
- Winterthur
- Architektur, Wohnen
-
- Umbau St. Galler Kantonalbank, Rorschach
- Marktplatz 11/Signalstrasse 12, 9400 Rorschach
- Architektur, Baumanagement, Büro & Verwaltung
-
- Wohnüberbauung VIVO 2, Amriswil
- Allee-/Freiestrasse, 8580 Amriswil
- Architektur, Wohnen
-
- Kindergarten & Primarschule Felben-Wellhausen // Planerwahlverfahren 1. Rang
- Felben-Wellhausen
- Architektur, Baumanagement, Wettbewerbe/Studien, Bildung & Forschung
-
- Hochregallager JUST Schweiz AG, Rheineck
- Langenhagstrasse 42, 9424 Rheineck
- Architektur, Baumanagement, Industrie & Gewerbe
-
- Logistikzentrum Pyropac AG, Sennwald
- Heberrietstrasse 6, 9466 Sennwald
- Architektur, Baumanagement, Industrie & Gewerbe
-
- Sanierung & Aufstockung Mehrfamilienhäuser «Bergholz», Wil
- Bergholzstrasse 26, 28 & 30, 9500 Wil
- Architektur, Wohnen
-
- Sanierung Wohn- und Geschäftshaus «Bühlhof» Steinberggasse, Winterthur
- Winterthur
- Architektur, Baumanagement, Wohnen, Kultur
-
- Aufstockung & Umbau ETH Forschungsgebäude «AgroVet-Strickhof», Lindau
- Lindau
- Architektur, Baumanagement, Bildung & Forschung, Büro & Verwaltung
-
- Wohnüberbauung VIVO 1, Amriswil
- Allee-/Freiestrasse, 8580 Amriswil
- Architektur, Generalplanung, Wohnen
-
- Gesamtsanierung Freibad Eichbüel, Oetwil am See
- Schachenstrasse 6, 8618 Oetwil am See
- Architektur, Freizeit, Sport & Bäder
-
- Ersatzneubauten «Flüeli» Wülflingerstrasse, Winterthur
- Wülflingerstrasse 135 & 137, 8400 Winterthur
- Wohnen, Architektur, Baumanagement
-
- Sanierung Primarschulhaus Feld, Thal
- Thal
- Architektur, Baumanagement, Bildung & Forschung, Kultur
-
- Mieterausbau SWICA «Elefant» Lokstadt, Winterthur
- Zürcherstrasse 31, 8400 Winterthur
- Architektur, Baumanagement, Büro & Verwaltung
-
- Mehrfamilienhaus «Im Wiesen», St. Margrethen
- Wiesen- / Industriestrasse, St. Margrethen
- Architektur, Areal- und Immobilienentwicklung, Wohnen, abgeschlossen
-
- Doppel-Einfamilienhäuser & Terrassenwohnungen «Panorama», Rebstein
- Sonnenbergstrasse, Rebstein
- Architektur, Areal- und Immobilienentwicklung, Wohnen, abgeschlossen
-
- Gesamtsanierung Primarschulhaus Lindenhof, Wil
- Lindenhofstrasse 19, 9500 Wil
- Architektur, Baumanagement, Bildung & Forschung
-
- Erweiterung BOGRAMA AG Turbenthal
- Mettlenstrasse 1, 8488 Turbenthal
- Industrie & Gewerbe, Architektur
-
- Zentrumsüberbauung «CLEMATIS», St. Margrethen // Wettbewerb 1. Rang
- St. Margrethen
- Wohnen, Wettbewerbe/Studien
-
- Wohn- und Gewerbeüberbauung Raiffeisenbank, Goldach // Wettbewerb 1. Rang
- Goldach
- Wohnen, Büro & Verwaltung, Wettbewerbe/Studien
-
- SFS intec AG Halle 6 Heerbrugg
- Rosenbergsaustrasse 10
- Architektur, Industrie & Gewerbe, Baumanagement
-
- Alterszentrum Hottingen Historisches Haus Wäldli
- Hottingen
- Fürsorge & Gesundheit, Wohnen, Architektur, realisiert, Umbau, Stiftungen, Vereine, Betreiber, Generalplanung
-
- Kath. Pfarrkirche St.Theresia, Rheineck
- 9424 Rheineck
- Architektur, Kultur, realisiert, Umbau, Kirchgemeinden
-
- Erweiterung Schulanlage Chapf, Brütten
- Brütten
- Architektur, Baumanagement, Bildung & Forschung
-
- Wohnen & Einkaufen Migros, Herisau // Wettbewerb 1. Rang
- Kasernenstrasse 18, 9100 Herisau
- Architektur, Wohnen, Handel & Verkauf, Hotel & Gastro, Neubau, Wettbewerbe/Studien, Baumanagement
-
- Pflegeheim PeLago Rorschacherberg
- Wiesenstrasse 14, 9404 Rorschacherberg
- Architektur, Fürsorge & Gesundheit, Umbau, Sanierung, realisiert, Stiftungen, Vereine, Betreiber
-
- Zentrumsüberbauung St.Margrethen // Wettbewerb 1. Rang
- Bahnhofstrasse Südwest, 9430 St.Margrethen
- Architektur, Wohnen, Handel & Verkauf, Neubau, realisiert, Generalunternehmer, Wettbewerb
-
- Gesamtsanierung Personalhäuser Hochgebirgsklinik, Davos // Wettbewerb 1. Rang
- Herman Burchard Strasse 5-7, 7265 Davos
- Wettbewerbe/Studien, Fürsorge & Gesundheit, Wohnen
-
- Alterswohnungen Amriswil // 1. Rang
- Amriswil
- Wohnen, Wettbewerbe/Studien
-
- Realisierung Migros Supermarkt, Wohnen & Gewerbe «Sandgrube», Appenzell
- Sandgrube 37, 9050 Appenzell
- Baumanagement, Wohnen, Handel & Verkauf
-
- Mühle Rickenbach
- Mühlestrasse, 9532 Rickenbach TG
- Wohnen, Architektur, realisiert, Neubau, Immobilienverwaltungen
-
- Brütsch Elektronik AG, Beringen
- Bodenäcker-/Anthoptstrasse, 8222 Beringen
- Industrie & Gewerbe, Architektur
-
- Forum St.Katharinen St.Gallen
- Katharinengasse 15/21, 9004 St.Gallen
- Architektur, Büro & Verwaltung, Umbau, realisiert, KMU's, Kultur
-
- Digitalhotel Neu-Schönstatt Quarten // Planerwahlverfahren 1. Rang
- Josef-Kentenich-Weg 1, 8883 Quarten
- Architektur, Hotel & Gastro, Umbau, Sanierung, realisiert, Wettbewerb, Stiftungen, Vereine, Betreiber, Wettbewerbe/Studien
-
- Geschäftshaus Westoffice St.Gallen
- Kürsteinerstrasse 2, 9015 St. Gallen
- Architektur, Büro & Verwaltung, Neubau, realisiert, Immobilienverwaltungen
-
- Migros Fitnesspark Regensdorf
- Zentrum 3, 8105 Regensdorf
- Architektur, Freizeit, Sport & Bäder, Sanierung, realisiert, Grossverteiler, Betriebsgesellschaften
-
- Fitnesspark Stadelhofen Zürich
- Hufgasse 10, 8008 Zürich
- Architektur, Freizeit, Sport & Bäder, Einbau, realisiert, Grossverteiler, Betriebsgesellschaften
-
- Einkaufszentrum Volkiland Volketswil
- Industriestrasse 1, 8604 Volketswil
- Architektur, Handel & Verkauf, Sanierung, realisiert, Grossverteiler, Betriebsgesellschaften
-
- Besucherzentrum JUST Schweiz AG
- Unterdorf 62, 9428 Walzenhausen
- Architektur, Handel & Verkauf, Büro & Verwaltung, Neubau, realisiert, Institutionelle Bauherren, Anleger, Private
-
- The Circle
- Flughafen Zürich
- Architektur, Büro & Verwaltung, Handel & Verkauf, Hotel & Gastro, realisiert, Neubau, Generalunternehmer
-
- Frei- und Hallenbad Opfikon
- Ifangstrasse 13, 8152 Opfikon
- Freizeit, Sport & Bäder, Architektur
-
- Wisenthalle & Bibliothek Wiesendangen
- Schulstrasse 27, 8542 Wiesendangen
- Architektur, Bildung & Forschung, Freizeit, Sport & Bäder, realisiert, Umbau, Erweiterung, Öffentliche Hand, Ortsgemeinden
-
- Gewerbehaus Deisrüti Seuzach // Wettbewerb 1. Rang
- Deisrütistrasse 21, Ober-Ohringen
- Architektur, Büro & Verwaltung, Neubau, Wettbewerb, Immobilienverwaltungen, Wettbewerbe/Studien
-
- Mehrfamilienhäuser Unterrain Teufen
- Unterrain 11, 9053 Teufen AR
- Architektur, Baumanagement, Wohnen
-
- Pädagogisches Zentrum Pestalozzihaus: Teilprojekt Schulhaus und Mehrzweckhalle
- Alte St. Gallerstr. 1, 8352 Elsau-Räterschen
- Architektur, Bildung & Forschung, Freizeit, Sport & Bäder, Neubau, Sanierung, Umbau, realisiert, Stiftungen, Vereine, Betreiber
-
- Neubau Waldeggstrasse Münchwilen // Wettbewerb 1. Rang
- Münchwilen
- Wettbewerbe/Studien, Wohnen
-
- Raiffeisenbank Unteres Rheintal Rheineck
- Bahnhofstrasse 38, 9424 Rheineck
- Architektur, Büro & Verwaltung, realisiert, Umbau, Institutionelle Bauherren, Anleger, Private, Grossverteiler, Betriebsgesellschaften
-
- Primarschulhaus Nideren Trogen // Wettbewerb 1. Rang
- Nideren 5, 9043 Trogen
- Architektur, Bildung & Forschung, Erweiterung, Neubau, Wettbewerb, Öffentliche Hand, Ortsgemeinden, Wettbewerbe/Studien
-
- DACHCOM AG Löwenhof Rheineck
- Rorschacherstrasse 15, 9424 Rheineck
- Architektur, Büro & Verwaltung, Kultur, Einbau, Umbau, realisiert, KMU's
-
- Kunsteisbahn Dolder Zürich
- Adlisbergstrasse 36, 8044 Zürich
- Architektur, Freizeit, Sport & Bäder, Sanierung, realisiert, Öffentliche Hand, Ortsgemeinden
-
- Migros Säntispark Freizeit Abtwil
- Säntispark, 9030 Abtwil
- Architektur, Freizeit, Sport & Bäder, Hotel & Gastro, Handel & Verkauf, realisiert, Umbau, Grossverteiler, Betriebsgesellschaften
-
- Auwiesenstrasse Winterthur
- Auwiesenstrasse 19, 8400 Winterthur
- Architektur, Wohnen, realisiert, Neubau
-
- Migros Klubschule Westlink Zürich-Altstetten
- Vulkanplatz 8, 8048 Zürich-Altstetten
- Architektur, Bildung & Forschung, Einbau, realisiert, Grossverteiler, Betriebsgesellschaften
-
- Verwaltung Schweizerische Südostbahn St.Gallen
- Bahnhofstrasse 1a, 9001 St. Gallen
- Architektur, Büro & Verwaltung, Umbau, Sanierung, Institutionelle Bauherren, Anleger, Private
-
- Planung Hallenbad, Gossau
- Gossau
- Freizeit, Sport & Bäder, Architektur
-
- Wohnüberbauung 36.5° Heerbrugg
- Widnauer- / Nefenstrasse, 9435 Heerbrugg
- Areal- und Immobilienentwicklung, Architektur, Wohnen, abgeschlossen
-
- Data Center Widnau
- Industriestrasse 62, 9443 Widnau
- Architektur, Büro & Verwaltung, Neubau, realisiert, Institutionelle Bauherren, Anleger, Private, Generalunternehmer
-
- Bankfiliale Zürcher Kantonalbank Meilen
- Bahnhofstrasse 25, 8706 Meilen
- Architektur, Büro & Verwaltung, Umbau, realisiert, Institutionelle Bauherren, Anleger, Private
-
- Sporthalle Buechenwald Gossau // Wettbewerb 1. Rang
- Seminarstrasse 10, 9200 Gossau
- Architektur, Freizeit, Sport & Bäder, Sanierung, Wettbewerb, realisiert, Öffentliche Hand, Ortsgemeinden, Wettbewerbe/Studien
-
- Produktions- und Bürogebäude JUST Schweiz AG Walzenhausen
- Unterdorf 62, 9428 Walzenhausen
- Architektur, Generalplanung, Industrie & Gewerbe, realisiert, Neubau, Institutionelle Bauherren, Anleger, Private, Büro & Verwaltung, Erweiterung, Baumanagement
-
- Betriebsgebäude Hälg & Co. AG St. Gallen
- Lukasstrasse 30, 9001 St. Gallen
- Architektur, Industrie & Gewerbe, realisiert, Neubau, Umbau, Institutionelle Bauherren, Anleger, Private
-
- Industrie- und Handelskammer St.Gallen-Appenzell
- Gallusstrasse 16, 9000 St. Gallen
- Architektur, Büro & Verwaltung, Umbau, Sanierung, realisiert, Stiftungen, Vereine, Betreiber, Kultur
-
- Bürogebäude STUTZ AG St.Gallen // Wettbewerb 1. Rang
- Martinsbruggstrasse 97, 9016 St. Gallen
- Architektur, Büro & Verwaltung, Neubau, Wettbewerb, realisiert, KMU's, Wettbewerbe/Studien
-
- Sunnepark Alterszentrum Hottingen
- Freiestrasse 71, 8032 Zürich
- Architektur, Fürsorge & Gesundheit, Umbau, realisiert, Stiftungen, Vereine, Betreiber, Generalplanung
-
- Wohn- und Geschäftshaus Blickpunkt Buchs
- Bahnhof- und Alvierstrasse, 9470 Buchs
- Architektur, Areal- und Immobilienentwicklung, Wohnen, Handel & Verkauf, Neubau, realisiert, Institutionelle Bauherren, Anleger, Private
-
- Löwenhof Rheineck
- Rorschacherstrasse 15, 9424 Rheineck
- Architektur, Kultur, Wohnen, Büro & Verwaltung, realisiert, Umbau, Institutionelle Bauherren, Anleger, Private
-
- Primarschulanlage Rothenthurm // Offener Wettbewerb 1. Rang
- Schulstrasse 4, 9418 Rothenthurm SZ
- Architektur, Bildung & Forschung, realisiert, Erweiterung, Öffentliche Hand, Ortsgemeinden, Wettbewerb, Wettbewerbe/Studien
-
- Produktionsgebäude Fisba AG St.Gallen
- Rorschacherstrasse 268, St. Gallen
- Architektur, Industrie & Gewerbe, Neubau, Erweiterung, realisiert, Institutionelle Bauherren, Anleger, Private
-
- Campus JANSEN AG Oberriet
- 9463 Oberriet
- Baumanagement, Büro & Verwaltung, Neubau, realisiert, Institutionelle Bauherren, Anleger, Private
-
- Universität St.Gallen
- Dufourstrasse 50, 9000 St. Gallen
- Architektur, Bildung & Forschung, Sanierung, Erweiterung, realisiert, Öffentliche Hand, Ortsgemeinden
-
- Einkaufszentrum Migros Rheinpark St.Margrethen
- 9430 St. Margrethen
- Architektur, Handel & Verkauf, Umbau, Sanierung, realisiert, Grossverteiler, Betriebsgesellschaften
-
- Einstein Congress St.Gallen
- Berneggstrasse 2, 9000 St. Gallen
- Architektur, Hotel & Gastro, Neubau, Erweiterung, realisiert, Grossverteiler, Betriebsgesellschaften
-
- Drehrestaurant Hoher Kasten Brülisau
- 9058 Brülisau
- Architektur, Hotel & Gastro, Neubau, realisiert, Grossverteiler, Betriebsgesellschaften
-
- Hauptsitz St.Galler Kantonalbank, St.Gallen // Wettbewerb 1. Rang
- St.Leonhardstrasse 58, 9001 St. Gallen
- Architektur, Büro & Verwaltung, Sanierung, Umbau, Wettbewerb, realisiert, Generalunternehmer, Institutionelle Bauherren, Anleger, Private, Wettbewerbe/Studien