Mieterausbau SWICA «Elefant» Lokstadt, Winterthur Zürcherstrasse 31, 8400 Winterthur
Aufgabe

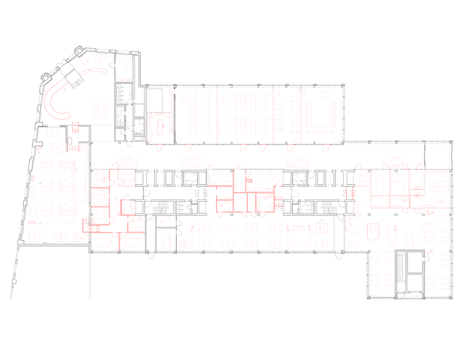
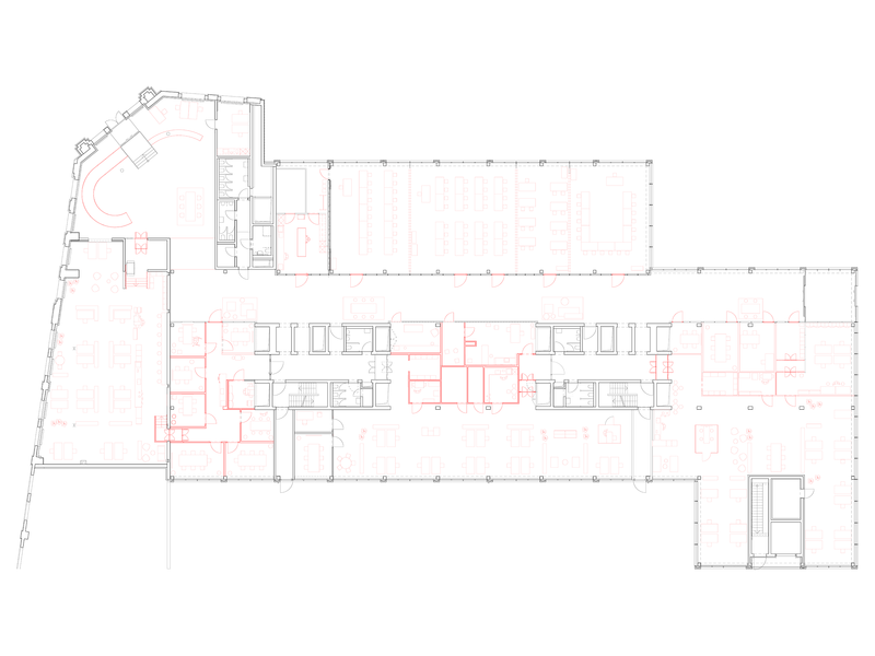
Mitte 2024 bezog die Krankenversicherung SWICA ihren neuen Standort in der Winterthurer Lokstadt im Gebäude «Elefant». Der «Elefant» besteht aus einem Neubau, eingefasst durch den historischen und denkmalgeschützten Portikus. Seinen Namen erhielt der «Elefant» von der damals zugstärksten Dampflok, die für den Gütertransport am Gotthard eingesetzt wurde.

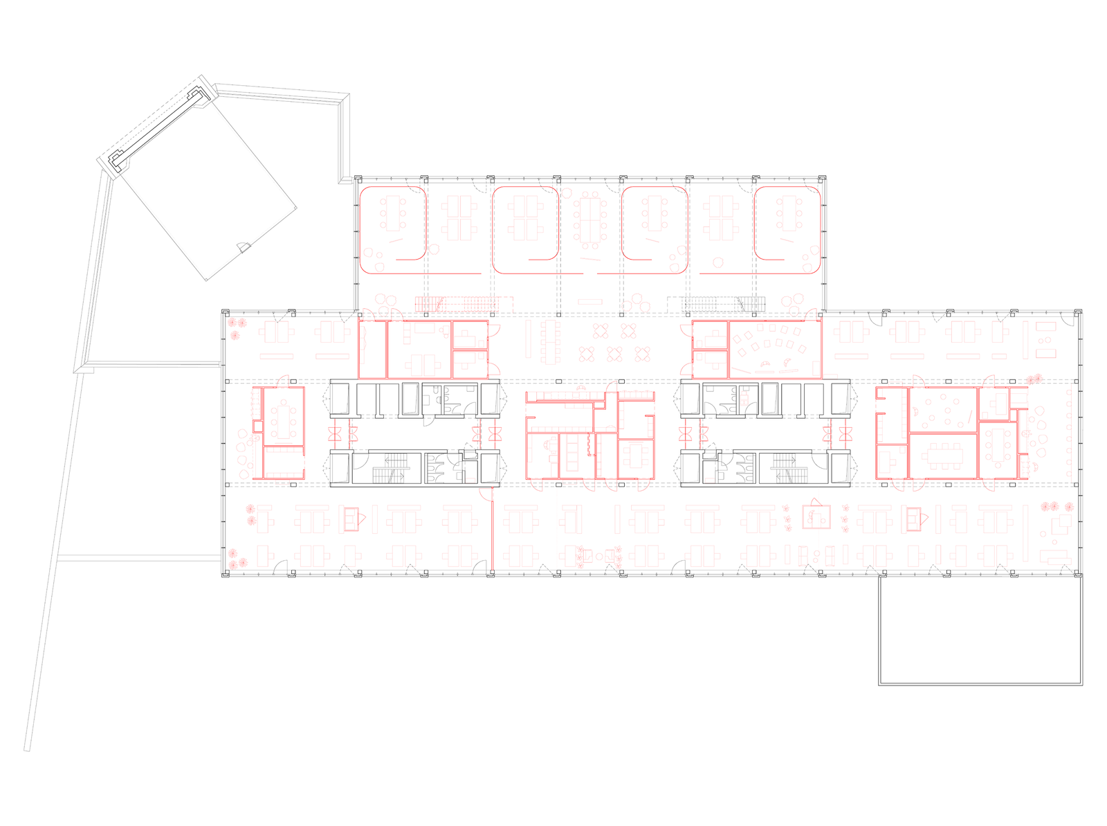
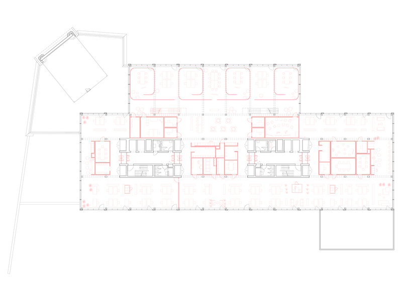
Auf einer Fläche von rund 11’000 m2 entstanden rund 500 attraktive und moderne Arbeitsplätze. Es stehen den SWICA Mitarbeitenden neben den ergonomischen Arbeitsplätzen auch Fokusräume, unter-schiedlichste Sitzungszimmer, Cafeterias und gemütliche Terrassen zur Verfügung. In den zwei überhohen Hallen entstanden Zonen für Projekt- und Kreativarbeit, welche durch raumhohe Vorhänge unter-teilbar sind. Im Erdgeschoss befindet sich das neue Schulungs- und Konferenzzentrum der SWICA. Die Kundinnen und Kunden werden im neu inszenierten historischen Portikus empfangen und beraten.

RLC erhielt von der SWICA den Auftrag für die Gestaltung, Planung und architektonische Begleitung der Realisierung des Mieterausbaus für den denkmalgeschützten Portikus und den fünfstöckigen Neubau. Für die SWICA ist der Umzug in die Lokstadt nicht nur ein Bekenntnis zum Standort Winterthur, sondern auch zur Nachhaltigkeit im Sinne der 2000-Watt-Gesellschaft.

quote «Wir sind in den neuen Räumen angekommen.»

«Nach rund 5 Monaten seit dem Bezug ziehen wir eine rundum positive Bilanz. Vom Entwurf bis zur Realisierung wurden unsere Bedürfnisse erkannt und mit frischen Ideen in die Tat umgesetzt. Die neuen Räume überzeugen Kunden wie Mitarbeitende.»

Matthias Meyer Leiter Corporate Real Estate SWICA
Impressionen
Pläne
Facts
  • Informationen
    Bauherrschaft SWICA Krankenversicherung AG, Winterthur Aufgabe Innenarchitektur, Ausführungsplanung, Gestalterische Leitung Auftragsart Direktauftrag Leistungen 68% Teilleistungen gem. SIA 102 Realisierung 2023–2024
  • Planerteam
    Architekt RLC Architekten AG, Winterthur Gesamtprojektleitung projekte & planung, Schaffhausen Bauleitung Implenia Schweiz AG, Glattpark Bauingenieur Synaxis AG, Zürich Elektroplanung Bürgin & Keller Management & Engineering AG, Adliswil Lichtplanung nachtaktiv GmbH, Zürich HLKKS-QS 3-Plan Haustechnik AG, Winterthur HLKKS-Planung Gruenberg + Partner AG, Zürich Brandschutz B3 Kolb AG, Winterthur Akustik Amstein + Walthert AG, Zürich Ausstattung InnOffice GmbH, Winterthur Tür-Engineering TeKoSi AG, Thayngen Fotograf Michael Haug, Winterthur
  • Geschossfläche m2
  • Gebäudevolumen m3
  • Arbeitsplätze