
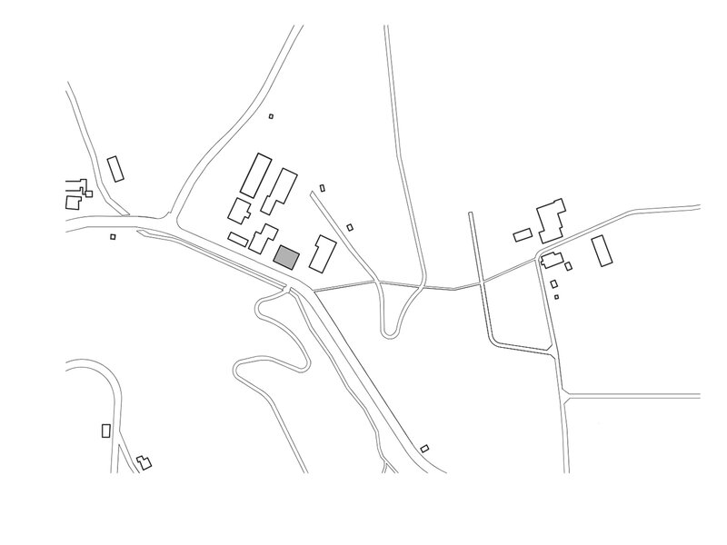
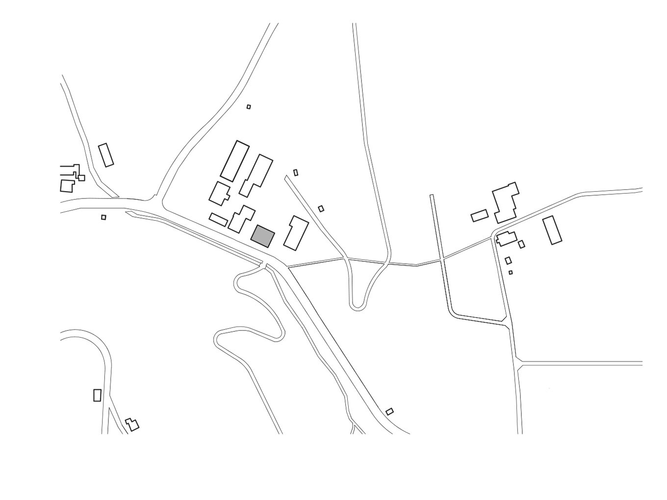
Auf dem Areal des Pädagogischen Zentrums Pestalozzihaus befinden sich diverse Gebäude unterschiedlichen Baujahrs mit verschiedenen Nutzungen zur gesamtheitlichen Betreuung und Herberge von schwer erziehbaren Kindern.
Schulhaus: Als eines von mehreren Teilprojekten wurde das Schulhaus so konzipiert, dass es erweitert werden kann. Die Planung berücksichtigte ebenso künftige Abbrüche und weitere Bauten (Stallgebäude, Heizzentrale etc.).
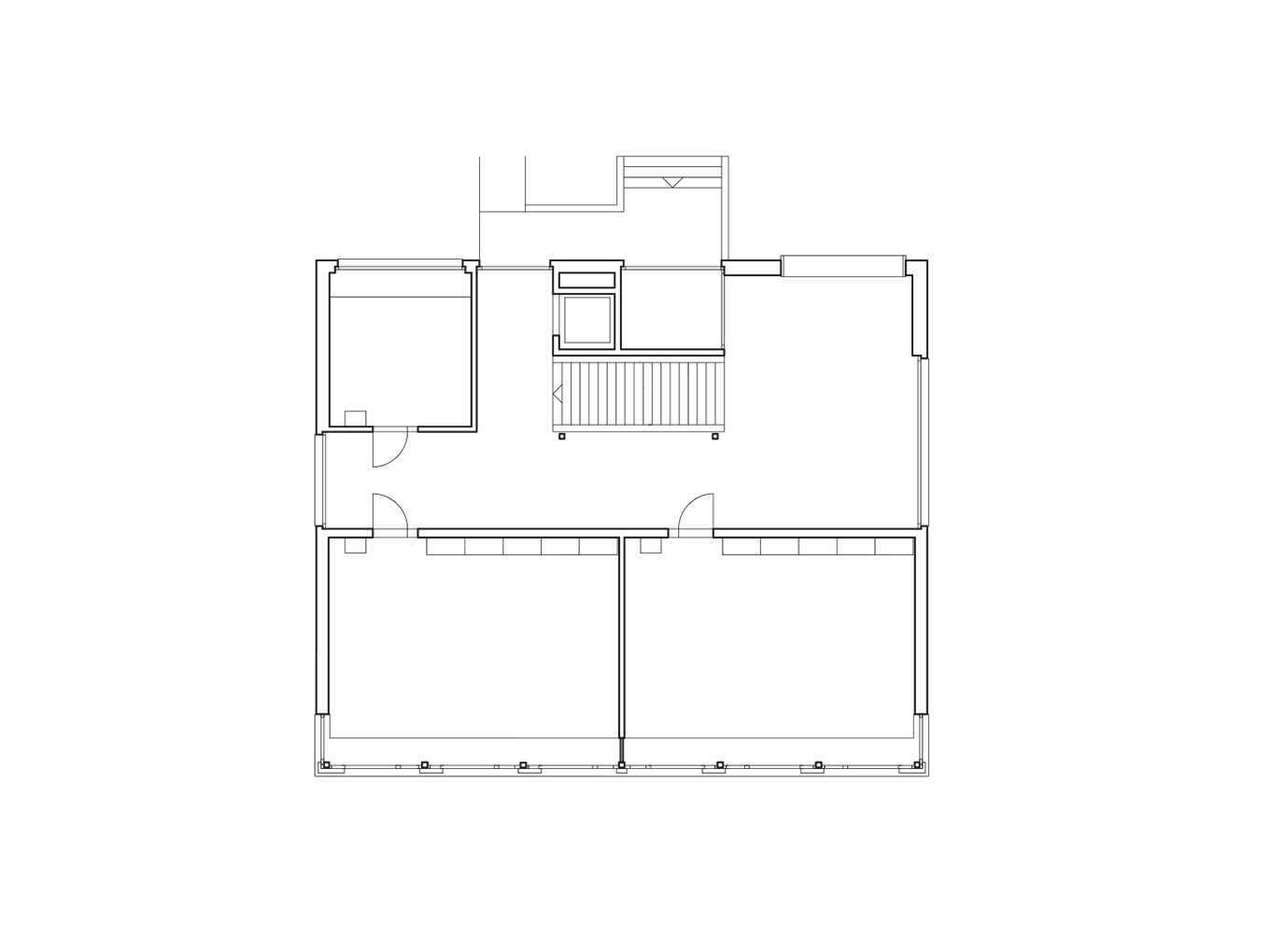
Turnhalle/Aula: Das «Pestalozzihaus» mit Scheune und Stallungen wurde für den Schulsport und interne Anlässe umgenutzt. Die Erscheinung des Wohnhauses mit Ökonomieteil von 1820 steht unter Denkmalschutz.
Schulhaus: Ortsbaulich schliesst das Schulhaus die Lücke zwischen zwei Bestandbauten und bildet mit dem zentral gelegenen Schulhof einen Abschluss. Das Schulhaus beinhaltet vier Klassenzimmer und die nötigen Nebenräume wie auch eine Bibliothek sowie ein Logopädieraum.
Turnhalle/Aula: Die Strukturen der Stallungen konnten nicht verwendet werden, so dass der Ökonomieteil bis auf die Dachkonstruktion und Fassaden ausgekernt wurde. In der Remise befindet sich die hohe Eingangshalle und im Stall das Foyer mit Office, Garderoben, Lager und Toiletten. Im Obergeschoss wurde eine Mehrzweckhalle mit Nebenräumen sowie Lüftungszentrale eingebaut. Der alte Dachstuhl konnte nahezu erhalten werden.
-
Informationen
Bauherrschaft Pädagogisches Zentrum Pestalozzihaus Aufgabe Neubau Schulhaus, Umnutzung historische Scheune als Mehrzweckhalle und Aula Auftragsart Direktauftrag Leistungen Vorstudien, Projektierung, Ausschreibung, Realisierung Planung Schulhaus 2016, Turnhalle 2017 Realisierung Schulhaus 2017–2018, Turnhalle 2018–2019
-
Planerteam
Architekt RLC Architekten AG, Winterthur
- Geschossfläche m2
- Gebäudevolumen m3