
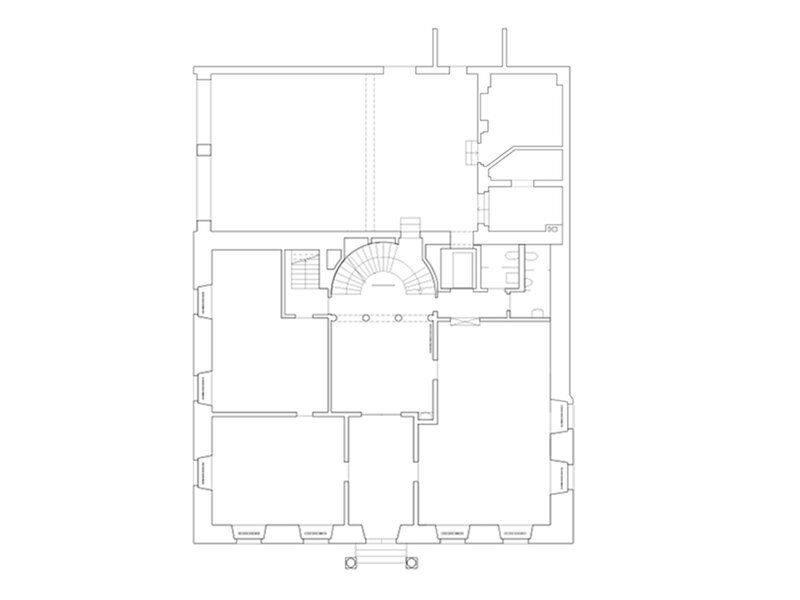
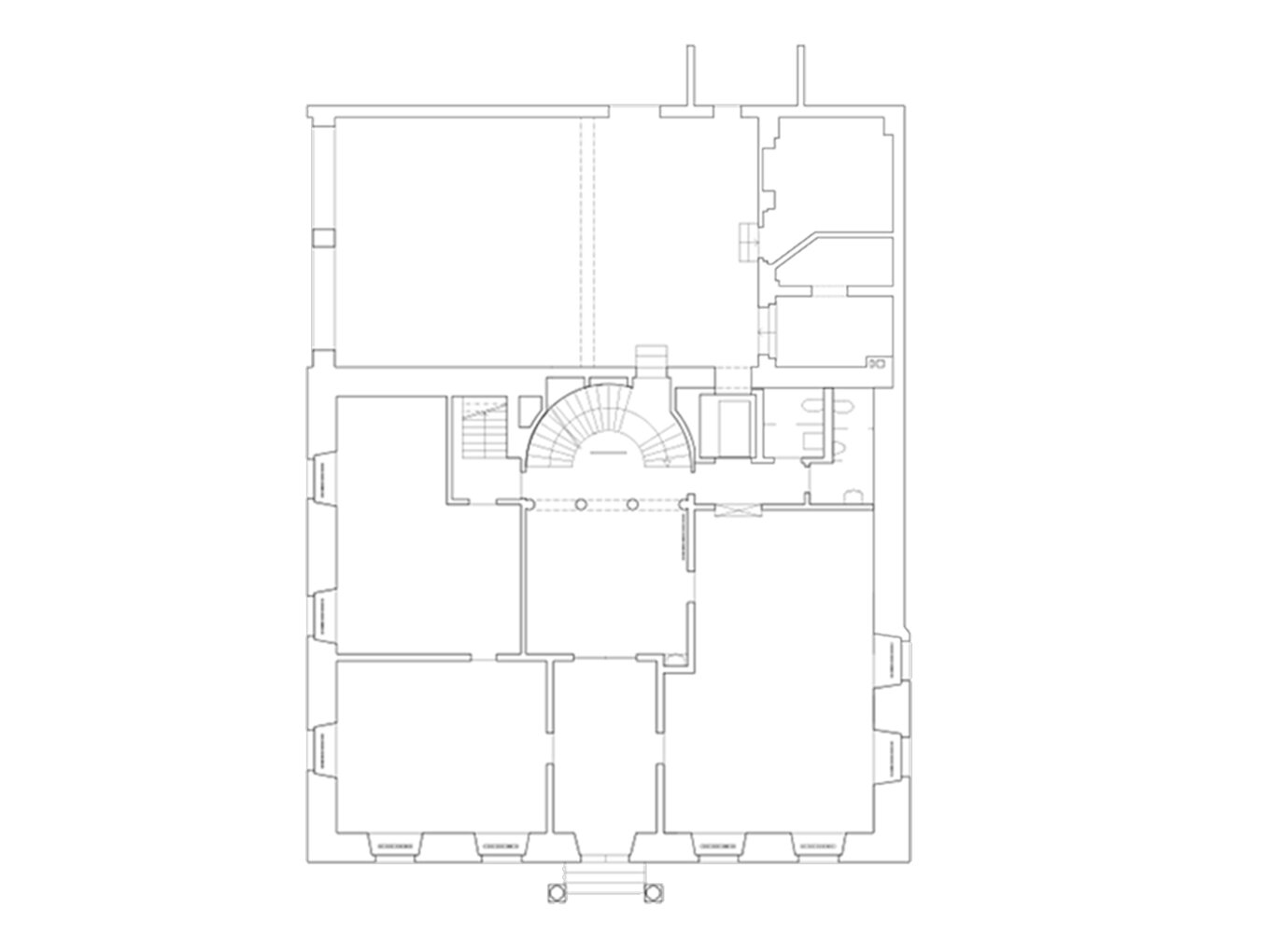
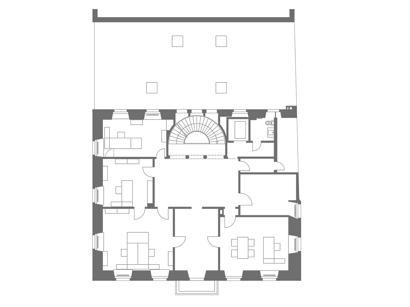
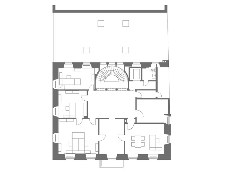
Seit rund 150 Jahren befindet sich der Geschäftssitz der IHK St.Gallen-Appenzell an der Gallusstrasse 16 im Herzen von St.Gallen.
Von Mitte Januar bis Ende März 2015 wurde das denkmalgeschützte Haus − das wohl erste klassizistische Gebäude in der Gallusstadt − umfassend saniert und umgebaut.
In Zusammenarbeit mit der städtischen Denkmalpflege wurde das Konzept erarbeitet, welches sich in der Eingriffstiefe auf die Oberflächen und den Erhalt originalen Substanz beschränkte. Bei der Sanierung wurde ein spezielles Augenmerk auf die Authentizität des Gebäudes gelegt. Die Raufasertapeten wurden durch Weissputzwände ersetzt und die ursprünglichen Parkettböden von Textilbelägen befreit. In den Treppenhäusern wurde das originale, klassizistische Farbklima entdeckt und wieder hergestellt. Die Arbeitsplätze wurden modernisiert, die Besucherführung verbessert und die elektrischen Installationen erneuert.
-
Informationen
Bauherrschaft IHK St.Gallen-Appenzell Aufgabe Umbau und Sanierung Geschäftshaus Auftragsart Direktauftrag Leistungen Vorstudien, Projektierung, Ausschreibung, Realisierung Realisierung 2015
-
Planerteam
Architekt RLC Architekten AG, Rheineck Elektroingenieur Marquart AG, Altstätten
- Bauzeit in Wochen