
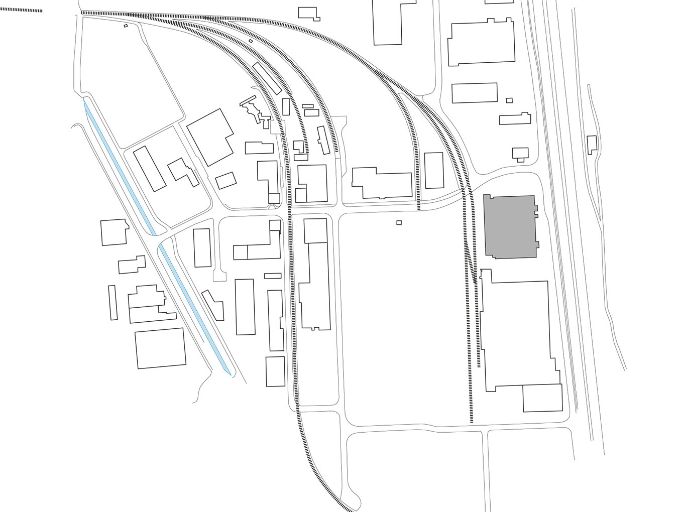
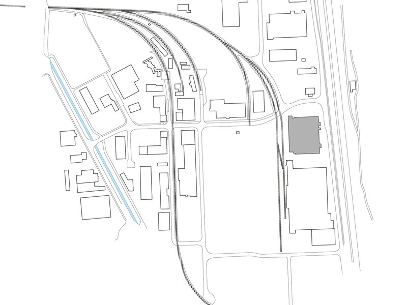
Das Data Center steht im Widnauer Viscose-Industriepark, leicht zurückversetzt und doch prominent sichtbar von der Autobahn A13.
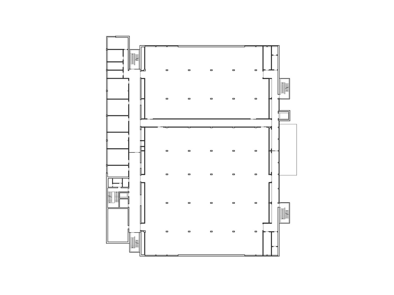
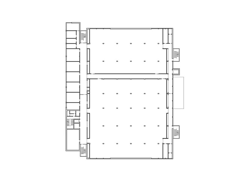
Ein funktionales, in zwei Volumen gegliedertes Gebäude bestehend aus einem 5-geschossigen Bürobau und einem rückwertig angegliederten 4-geschossigen Volumen mit über 7000m2 Fläche Platz für die Datenserver. Platziert ist das Gebäude in der Mitte der Parzelle, damit die Rundumfahrt gewährleistet ist. Die Zufahrt auf die Parkplätze und das Betriebsareal erfolgt nordseitig ab der Industriestrasse.
Äusserlich wie innerlich folgt Form und Materialisierung der Funktion. Eine verputzte Aussenwärmedämmung verkleidet die Fassade des Bürobaus, einfache Sandwichpanels umhüllen den Cachebau. Speziell sind die vier aussenliegenden, mit Streckmetall verkleideten Treppentürme. Sie dienen in erster Linie zur Sicherstellung der Fluchtwege. Speziell sind auch die technischen Dachaufbauten, diese verstärken den Gebäudeausdruck einer grossen Maschine.
Im Erdgeschoss des Bürobaus befindet sich die Empfangs- und Sicherheitsloge. Über eine Sicherheitsschleuse gelangt man in den Erschliessungsbereich, der zwischen den Büroräumen und die Cacheräumen liegt.
-
Informationen
Bauherrschaft Personalvorsorgestiftung der Ärzte und Tierärzte PAT-BVG, Bern Aufgabe Neubau eines Datenzenters Auftragsart Direktauftrag Leistungen 50% Teilleistungen gem. SIA 102 Realisierung 2014-2016
-
Planerteam
Generalunternehmer HRS Real Estate AG, St.Gallen Architekt RLC Architekten AG, Rheineck Bauingenieur Ribi + Blum AG, Romanshorn HLKK-Planung Amstein + Walthert AG, St.Gallen HLKK-Planung pzm Ingenieure, Zürich Sanitärplanung Amstein + Walthert AG, St.Gallen Elektroplanung pbp ag engineering, Zürich
- Geschossfläche m2