
Steigende Schülerzahlen veranlassten die Gemeinde Trogen ein Projekt zur Erweiterung der Primarschule und des Kindergartens zu prüfen. Das Projekt von RLC überzeugte die Jury und setzte sich gegen vier weitere Beiträge durch.
Steigende Schülerzahlen erfordern mehr Schulraum. Mit einer Erweiterung des Schulhauses will die Gemeinde den neuen Bedürfnissen Rechnung tragen.
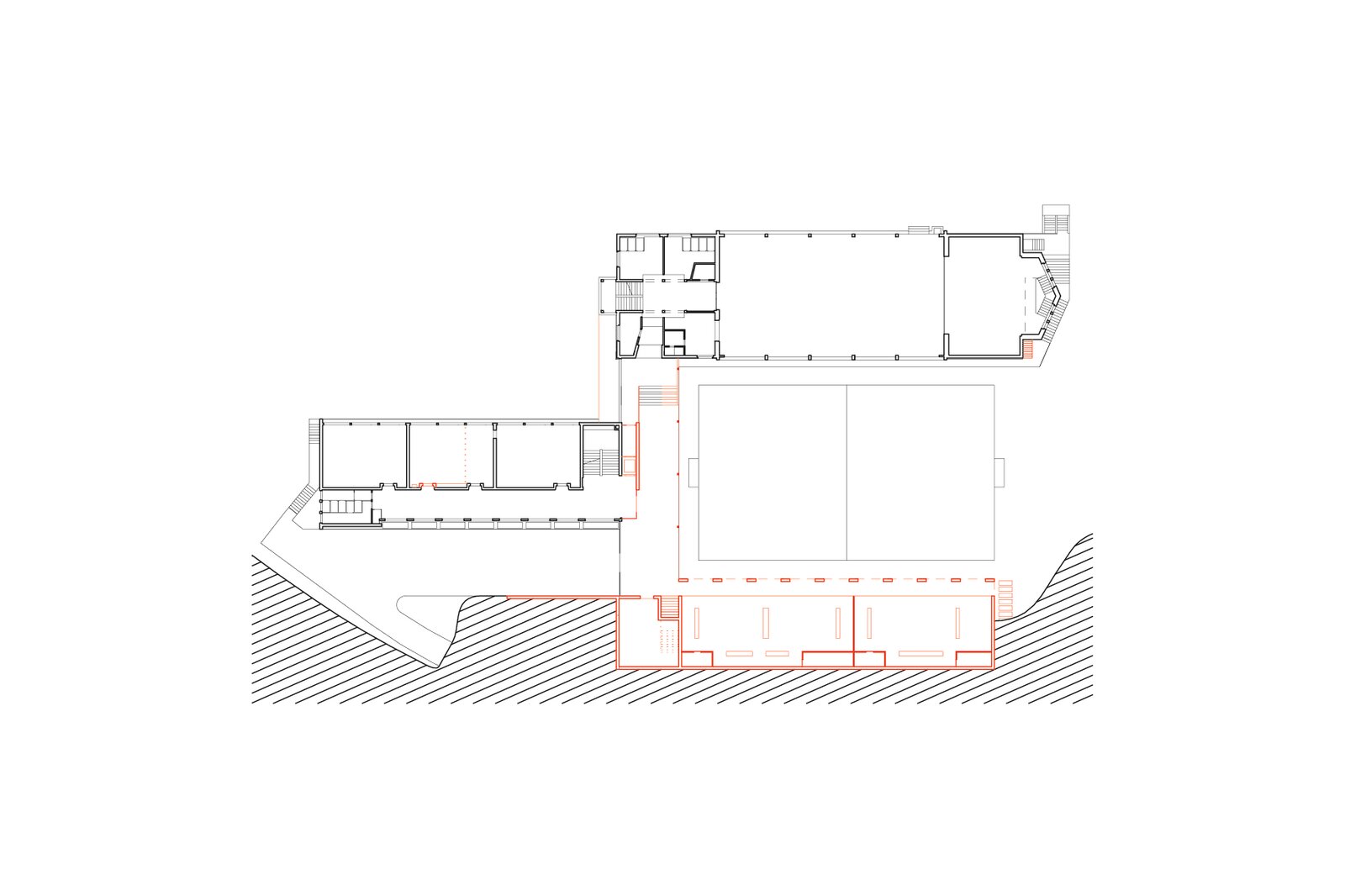
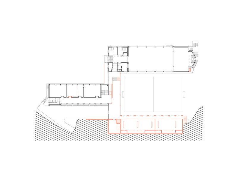
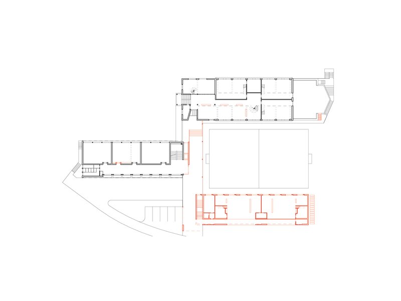
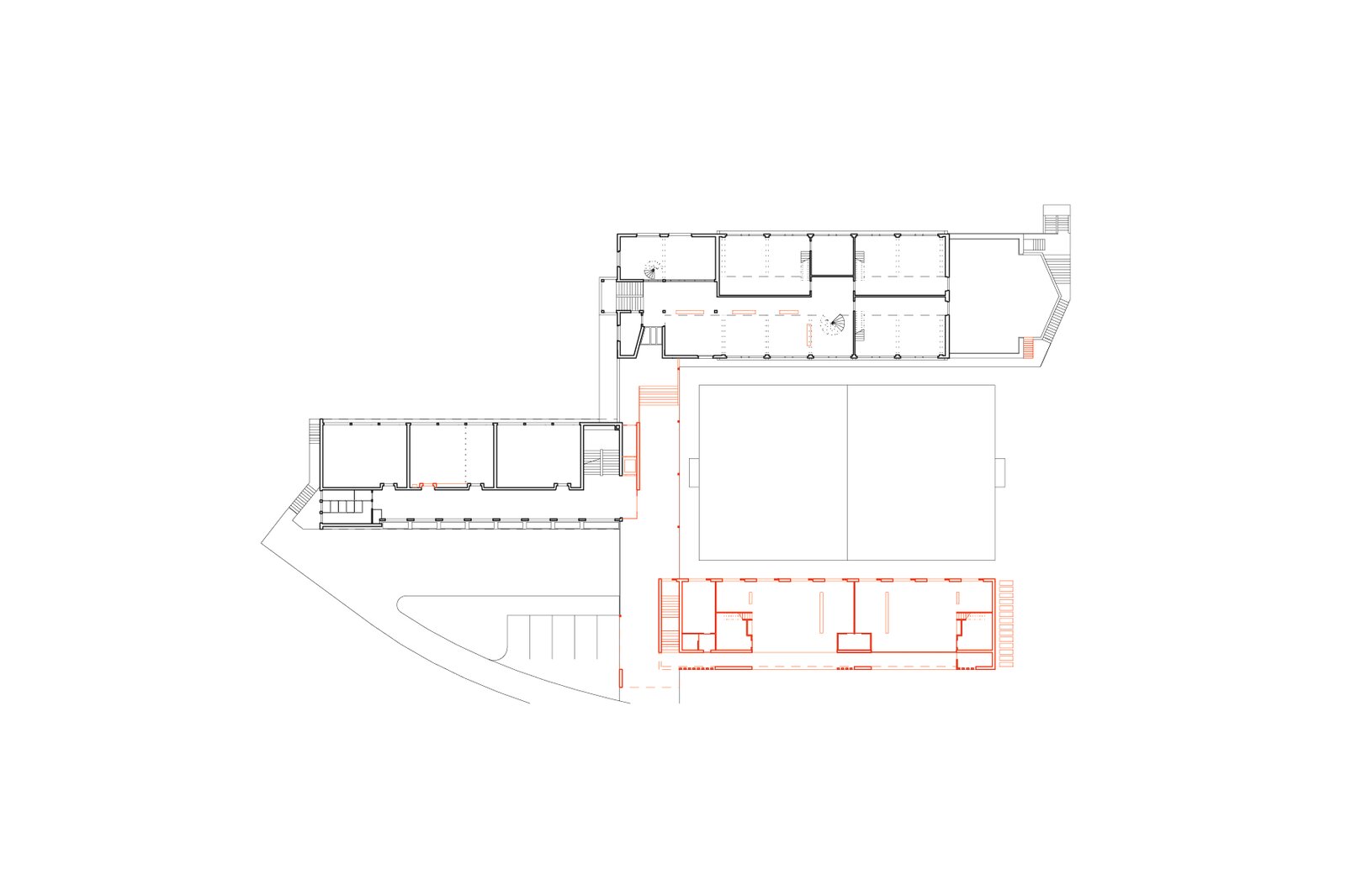
Der Neubau schafft mit der neuen Hauptfassade einen gelungenen Auftakt zur Schulanlage. Wie selbstverständlich ergänzt der Neubau die bestehende Kamstruktur und klärt den Zugang zur Schulanlage. Die separate und invalidengerechte Zugangsachse sowie die betriebliche Unabhängigkeit aller Baukörper sind gewährleistet und eine Nutzungsoptimierung garantiert.
Nebst den Kriterien der betrieblichen Optimierung und Unabhängigkeit, der behindertengerechten Zugänglichkeit und der strategischen Platzierung von Schulleitung und Lehrpersonal, bleibt westlich auf der Parzelle eine Landreserve bestehen.
«Den Projektverfassenden gelingt es, ihr Konzept mit einer Ergänzung des bestehenden Ensembles durch einen Neubau sowie einem zweigeschossigen, halboffenen Verbindungsbau, in eine – an einer Achse klar organisierten – Gesamtanlage umzusetzen. Das Projekt überzeugt mit klaren, unabhängigen Strukturen im Innen- und Aussenbereich.
Der architektonisch ansprechende Neubau formuliert den Zugang zur Anlage neu.»
-
Informationen
Bauherrschaft Gemeinde Trogen, Trogen Aufgabe Erweiterung Primarschulanlage Auftragsart Wettbewerb, 1. Rang Leistungen Wettbewerb Realisierung Wettbewerb 2018
-
Planerteam
Architekt RLC Architekten AG, Rheineck
- Geschossfläche m2
- Gebäudevolumen m3