Wohnen & Einkaufen Migros, Herisau // Wettbewerb 1. Rang Kasernenstrasse 18, 9100 Herisau
Ausgangslage

Die Migros Ostschweiz realisierte am bisherigen Standort einen Neubau mit einer attraktiven Mischung aus Einkauf, Dienstleistung und Wohnen. Bereits im Jahr 2010 veranstaltete die Migros dazu einen Architekturwettbewerb. RLC erzielte mit dem geplanten Projekt den 1. Rang.

Aufgabe

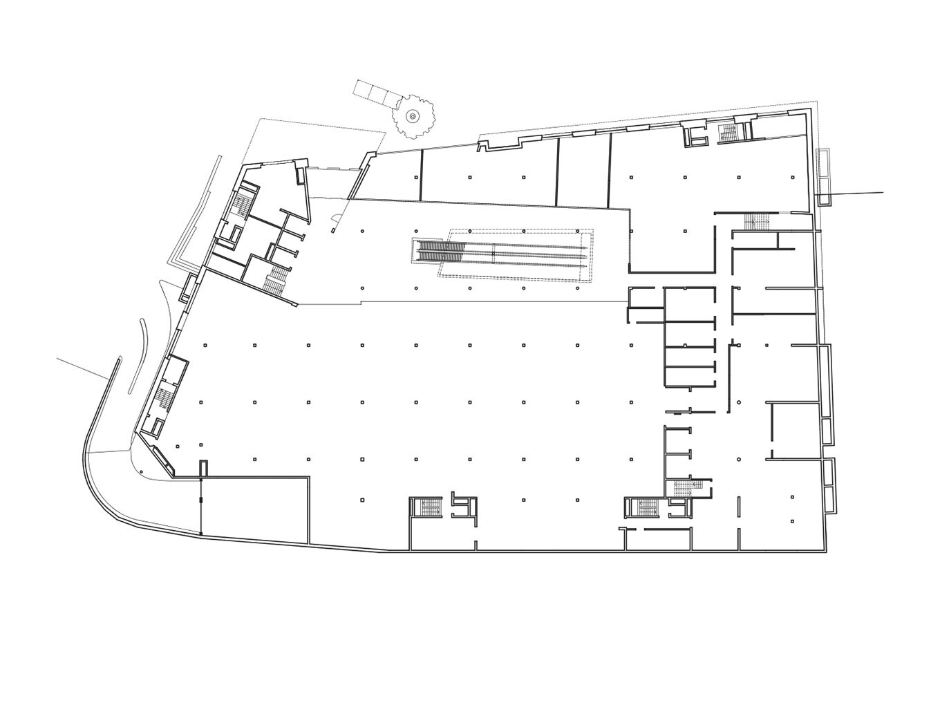
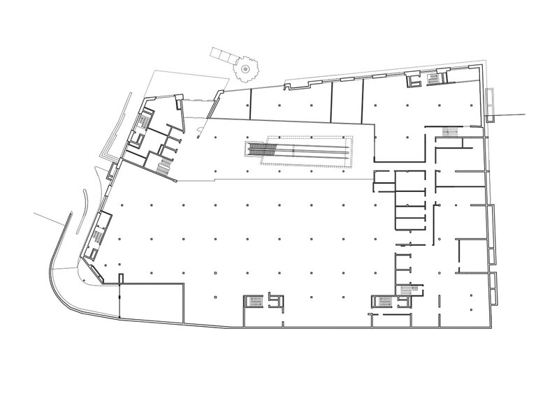
Im Erdgeschoss entstanden auf 2’200 m2 Verkaufsfläche ein Migros-Supermarkt mit einem Sortiment aus Melectronics und  Do it + Garden Migros. Das Restaurant lädt im ersten Obergeschoss mit seinem gemütlichen Innenraum und dem grosszügigen Aussenbereich zum Verweilen ein. Zudem wird im Obergeschoss ein MFIT Trainingszentrum realisiert.

Für gewerbliche Mieter stehen rund 1‘600 m2 Verkaufs-, Büro- und Praxisflächen zur Verfügung. 260 Parkplätze, Veloabstellflächen sowie die nahe Bushaltestelle tragen ebenso zum Einkaufs- und Wohnkomfort bei wie die helle, moderne Gestaltung des Zentrums. Die 45 komfortabel ausgestatteten Wohnungen bieten mit grossen Fensterflächen und hochwertigen Materialien höchsten Wohnkomfort.

Lösung // Herausforderungen

Das Gebäude wurde im Standard Minergie erstellt. Eine Photovoltaik-Anlage auf den Dächern der Wohnbauten liefert einen Teil des Energiebedarfs von Verkauf und Wohnungen. Die Bauarbeiten starteten im Herbst 2019 mit dem Abbruch des bestehenden Gebäudes, so dass die neue Migros Ende 2022 eröffnet werden konnte.

quote
«Mit RLC hatten wir den richtigen Partner für dieses anspruchsvolle Projekt im Zentrum.»

«Das architektonisch hochstehende Projekt fügt sich harmonisch ins Ortsbild ein. RLC und das gesamte Bauteam haben sich intensiv mit den verschiedenen Anspruchsgruppen, Behörden und künftigen Nutzern auseinandergesetzt, so dass der heutige Neubau allen Bedürfnissen im Bereich Verkauf, Dienstleistung, Parking sowie Wohnen gerecht wird.»

Ashwin Teesink Projektleiter Genossenschaft Migros Ostschweiz
«Eine Grossbaustelle in Zentrumslage und während der Pandemie stellte uns vor besondere Herausforderungen.»

«Eine Grossbaustelle in dieser innerstädtischen Lage inmitten des Zentrumsverkehrs und mit engen Platzverhältnissen stellte uns bei der Baustellenorganisation und -logistik vor besondere Herausforderungen. Auch die erhöhte Lage von Herisau und der sich daraus ergebende Witterungseinfluss galt es im Bauprogramm zu berücksichtigen. Die Realisierung inmitten der Corona-Pandemie stellte das Projektteam vor eine zusätzliche Challenge. Wir sind stolz, dass die neue Migros Herisau trotz aller Einflüsse plangemäss eröffnet werden konnte.»

Marc Schönenberger Bauleiter RLC Architekten AG
Impressionen
Pläne
Facts
  • Informationen
    Bauherrschaft Genossenschaft Migros Ostschweiz Aufgabe Neubau Einkaufszentrum mit Mall & Büroflächen, Wohnüberbauung Auftragsart Wettbewerb 1. Rang Leistungen Vorstudien, Projektierung, Ausschreibung, Realisierung Planung Wettbewerb 2010 Realisierung 2019–2022
  • Planerteam
    Architekt RLC Architekten AG, Rheineck Bauingenieur Ribi + Blum AG, Romanshorn Elektroingenieur Amstein + Walthert AG, St.Gallen HLKKS- Ingenieur Amstein + Walthert AG, St.Gallen Bauphysik Baumann Akustik und Bauphysik AG, Uzwil Landschaftsarchitekt PR Landschaftsarchitektur, St.Gallen
  • Wettbewerb Rang
  • Geschossfläche m2
  • Gebäudevolumen m3