
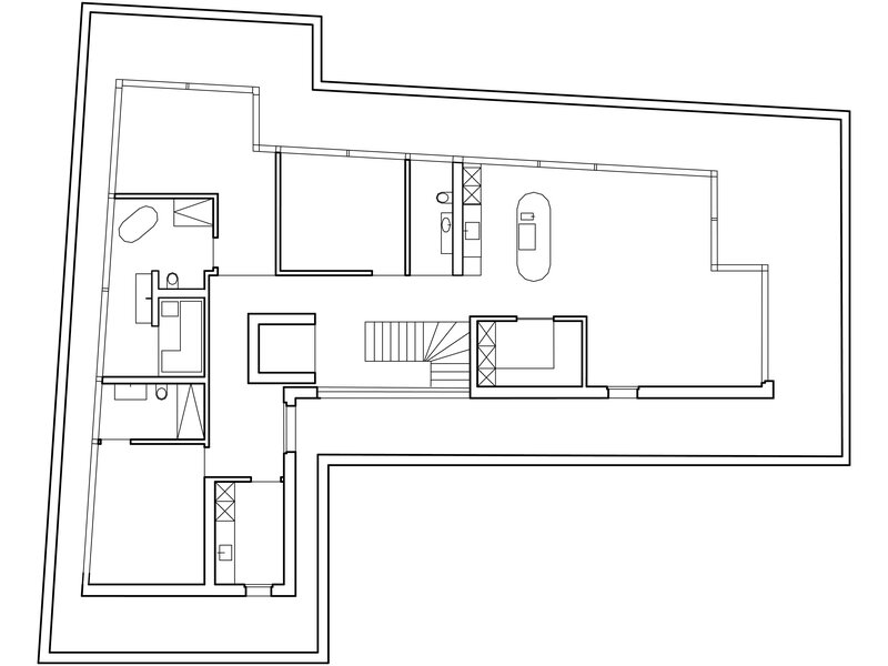
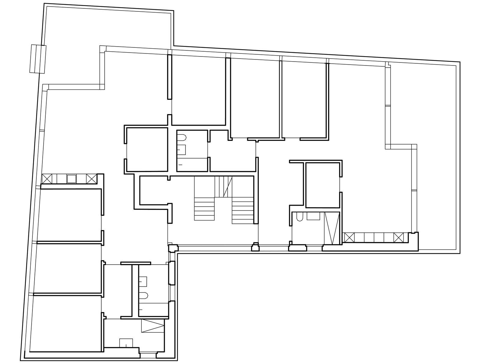
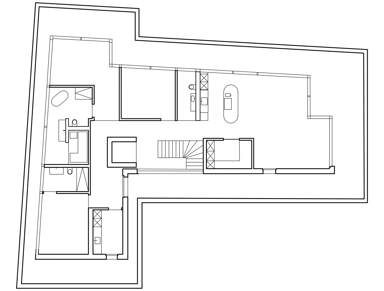
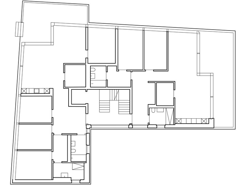
RLC erhielt den Auftrag für die Planung und Realisierung eines Mehrfamilienhauses mit 5 Wohnungen. Die Parzelle mit Hanglage, liegt angrenzend an die Landwirtschaftszone und bietet einen atemberaubenden Blick auf den Bodensee. Das T-förmige Volumen fügt sich harmonisch in den Hang ein und berücksichtigt durch die horizontale Gliederung die umliegende Landschaft. Das Projekt verbindet moderne Architektur mit einer respektvollen Einbettung in die Landschaft
Die Fassade zeigt sich zur Wohngebietsseite geschlossen, während die Ausrichtungen nach Süden, Westen und Norden grosszügig verglast sind und den Blick auf Landschaft und Bodensee freigeben. Umlaufende Betonbrüstungen mit vertikalen Matrizeneinlagen und eine vertikale Metallfassade verleihen dem Gebäude einen skulpturalen Ausdruck. Die klare Gestaltung im Innern mit den weissen Decken, Wänden und Einbauten rücken in den Hintergrund, das einfallende Licht und der Blick nach Aussen stehen im Vordergrund.
Der Massivbau besteht aus tragendem Treppenkern und Betonwänden. Die Innenwände sind nicht tragend, was eine künftige Flexibilität ermöglicht. Eine nachhaltige Heizungs- und Kühlungslösung wurde durch Erdsonden sowie einer Photovoltaikanlage für die Energieerzeugung realisiert.
-
Informationen
Bauherrschaft Privat Auftragsart Direktauftrag Leistungen 100% Teilleistungen gem. SIA 102 Realisierung 2023–2024
-
Planerteam
Architekt RLC Architekten AG, Rheineck Generalplaner Lander + Partner AG, Rheineck Bauingenieur Wälli AG Ingenieure, St.Gallen HLKKS-Ingenieur Vadea AG, St.Gallen Elektroingenieur IBG Engineering AG, St.Gallen Brandschutz Büro Hollenstein GmbH, Zuzwil Bauphysik ExpEduCon GmbH, Heerbrugg Fotograf Jan Thoma, Abtwil
- Wohneinheiten
- Geschossfläche m2
- Gebäudevolumen m3