Alterswohnungen Amriswil Alleestrasse 11/11a, 8580 Amriswil
Aufgabe

Zukunftsweisendes Wohnen im Alter. Nach diesem Grundsatz entstanden im Auftrag der Stadt Amriswil dreissig neue Alterswohnungen. Grundlage bildete der Wettbewerb von 2021, aus dem das Projekt «Modular» von RLC als Sieger hervorging. Der Neubau ergänzt das bestehende Angebot und reagiert auf die wachsende Nachfrage nach bezahlbarem, betreutem Wohnen im Alter. 

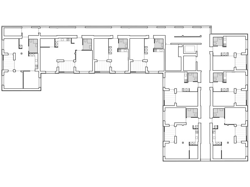
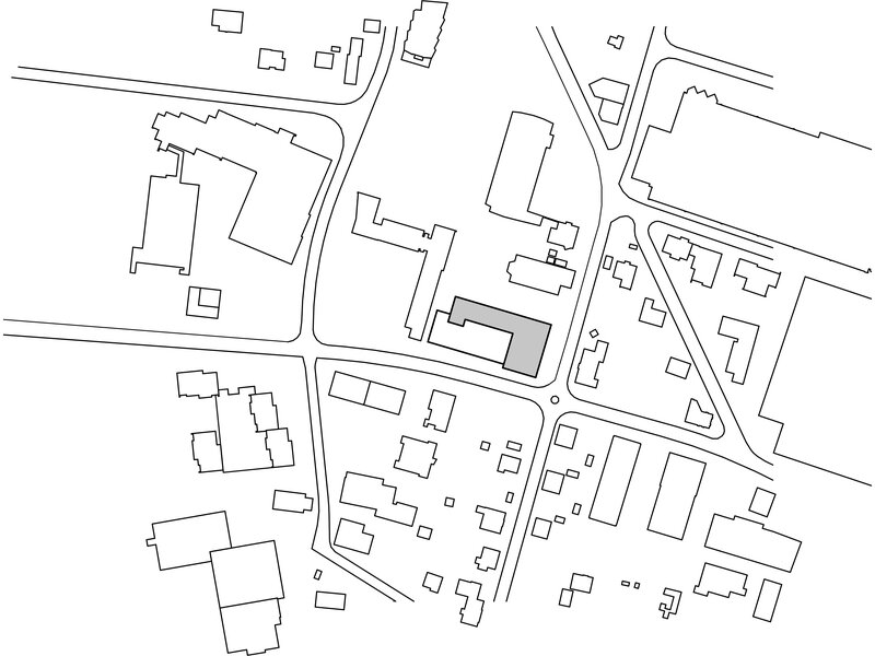
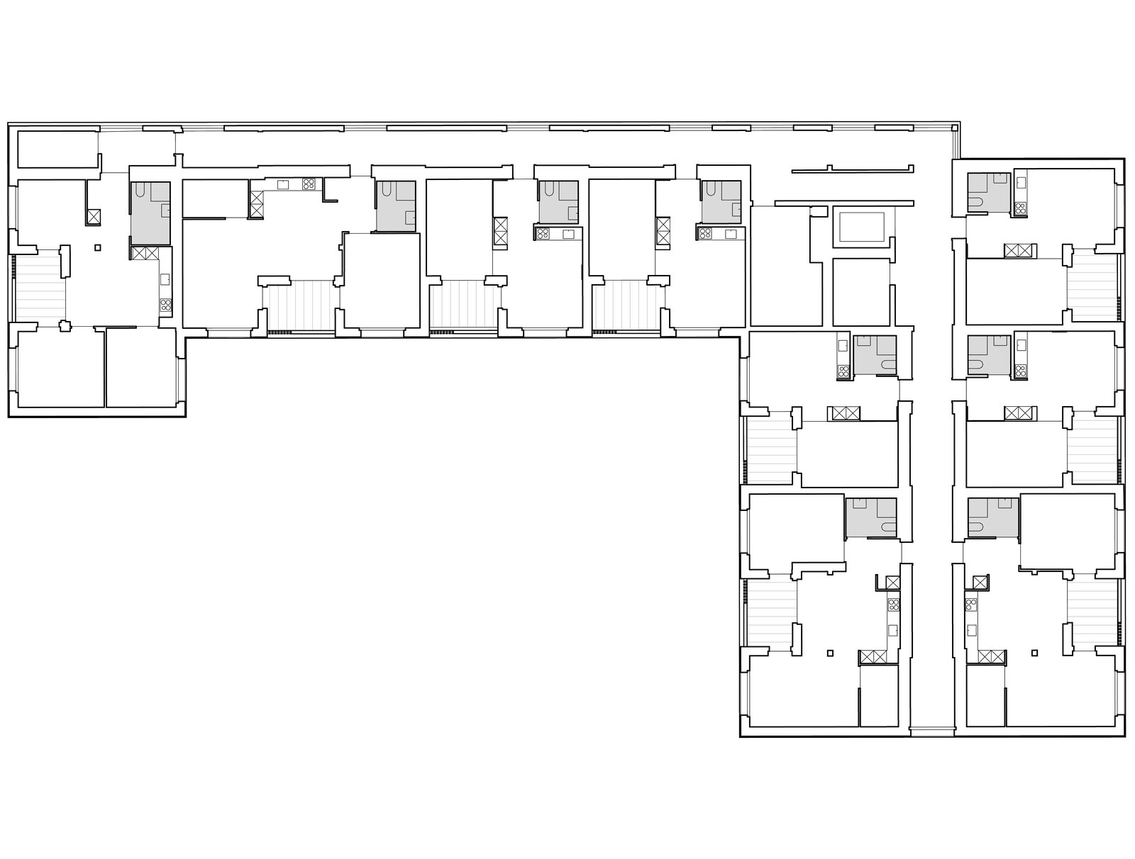
Das fünfgeschossige Gebäude an der Alleestrasse markiert den städtebaulichen Auftakt zum Areal des Alters- und Pflegezentrums , das zugleich Betreiberin der Alterswohnungen ist. Im Erdgeschoss befinden sich die gemeinschaftlichen Bereiche, die Hospizwohnung und die Spitex, in den Obergeschossen die hellen, barrierefreien Wohnungen in verschiedenen Grössen. 

Der Holz-Hybridbau mit vorgefertigten Elementen ermöglichte eine ressourcenschonende und effiziente Realisierung. Die vertikal strukturierte, vorvergraute Holzfassade und der naturnahe Aussenraum, der im Frühjahr erstmals erblühen wird, verleihen dem Ensemble eine warme, einladende Atmosphäre. 

Mit der Realisierung des Projekts setzt Amriswil ein starkes Zeichen für nachhaltiges, soziales und zukunftsorientiertes Bauen.

quote «Effizient geplant, erfolgreich umgesetzt. Der Neubau ist ein Gewinn für Amriswil.»

«Mit dem Neubau konnten wir das altersgerechte Wohnen in Amriswil nachhaltig weiterentwickeln. RLC als Generalplaner verstand
unsere Bedürfnisse und suchte gemeinsam mit den Unternehmern nach einfachen, praxistauglichen und wirtschaftlichen Lösungen. Die gute Zusammenarbeit ermöglichte Optimierungen während der Bauphase, so wurde das Budget unterschritten und der Bezug konnte früher als geplant erfolgen.»

Claude Brunner Stadtrat & Präsident der Baukommission
Impressionen
Pläne
Facts
  • Informationen
    Bauherrschaft Stadt Amriswil Aufgabe Neubau Alterswohnungen Auftragsart Wettbewerb 1. Rang Leistungen 100% Teilleistungen gem. SIA 102 inkl. Generalplanung, Baumanagement und örtlicher Bauleitung Planung 2021 Realisierung 2024–2025
  • Planerteam
    Architekt RLC Architekten AG, Rheineck Bauherrenvertretung Buffoi Bühler AG, St.Gallen Bauingenieur Massiv-/Stahlbau B3 Brühwiler AG, Wil Bauingenieur Holzbau, Brandschutz B3 Kolb AG, Romanshorn Elektroingenieur Inelplan AG, St.Gallen HLKKS-Ingenieur Kempter+Partner AG, St.Gallen Landschaftsarchitekt Parbat Landschaftsarchitektur GmbH, St.Gallen Bauphysik Braune Roth AG, Rorschacherberg Fotograf Jan Thoma, Abtwil
  • Wohnungen
  • Geschossfläche m2
  • Gebäudevolumen m3