Zentrumsüberbauung St.Margrethen // Wettbewerb 1. Rang Bahnhofstrasse Südwest, 9430 St.Margrethen
Ausgangslage

St. Margrethen wagt den Neustart in ein lebendigeres Dorfzentrum. 

Aufgabe

Das Planungsgebiet bildet den Auftakt zur neu gestalteten Bahnhofstrasse. Zwischen Kreisel und Bahnhof entsteht ein wichtiger Spannungsbogen des neuen öffentlichen Lebens. Diese Ausgangslage und die Tatsache, am Kreisel mit Gemeindehaus und Mineralbad wichtige öffentliche Einrichtungen vorzufinden, verleihen der Lage grosses städtebauliches Gewicht.

Lösung // Herausforderungen

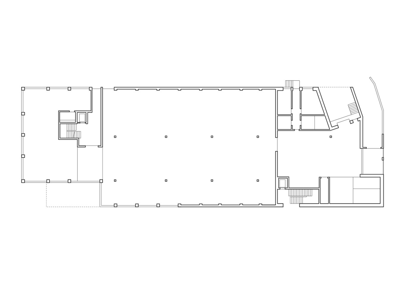
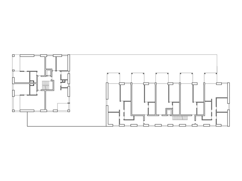
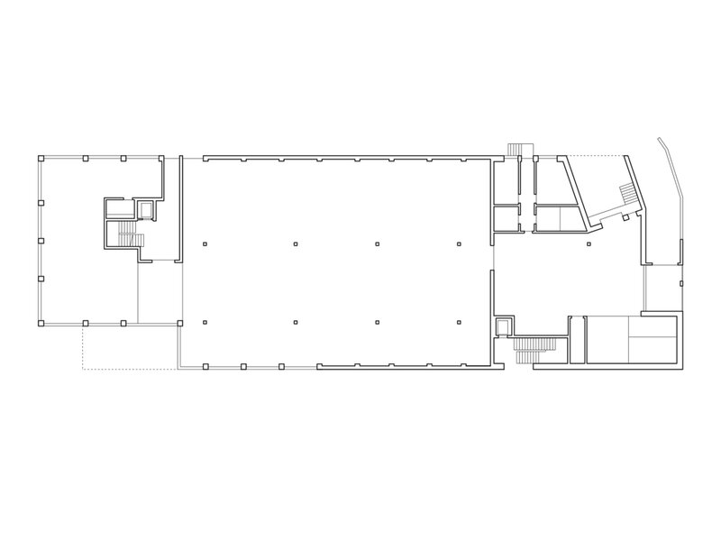
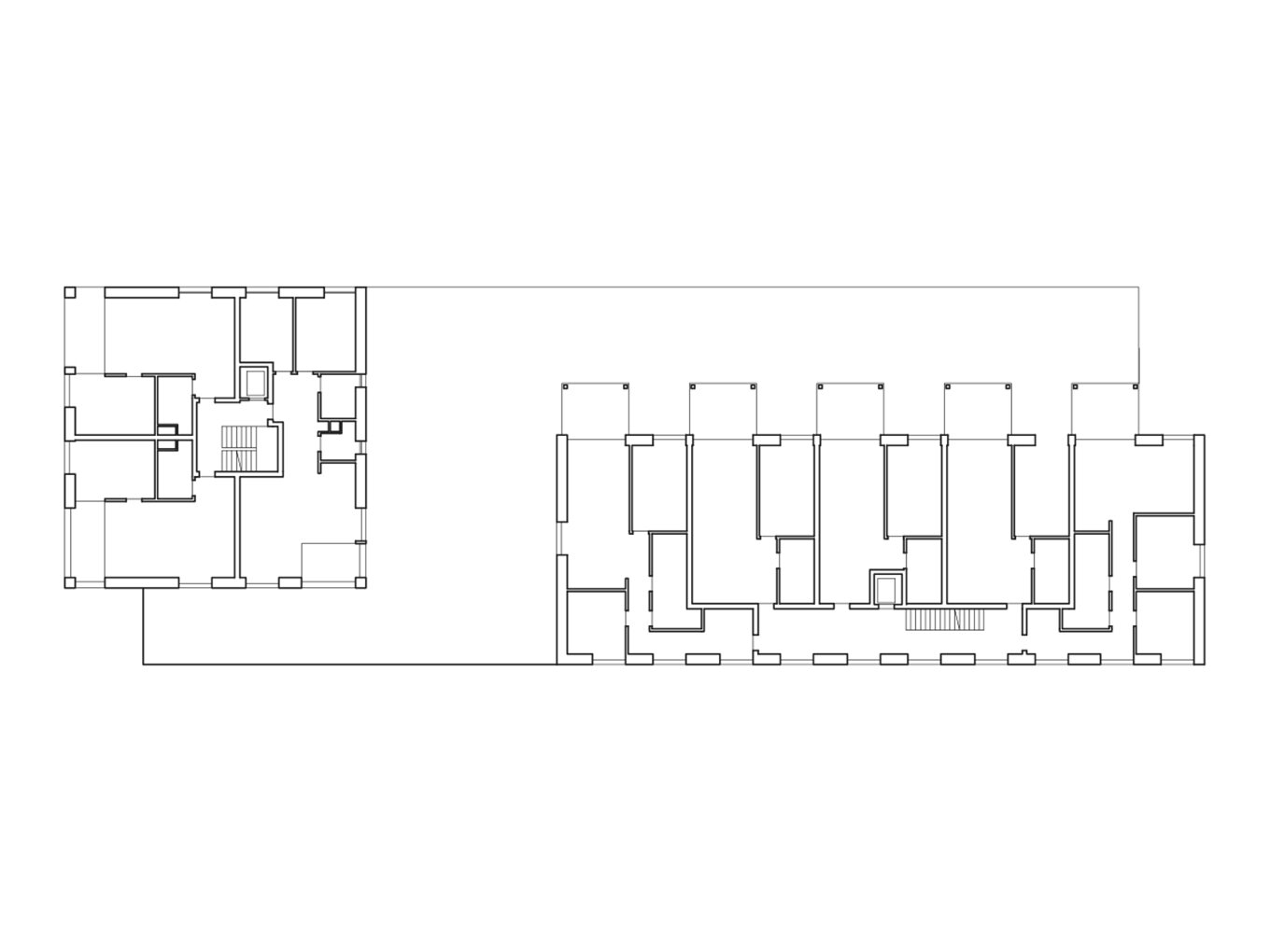
Das Projekt reagiert durch die gewählte Körnung und Höhenstaffelung auf die unterschiedlichen Bestandesbauten des Ortes. Strassen- wie auch die Aussenräume werden klar definiert. Jeder Bereich wird nach dem Grad an Öffentlichkeit unterschieden und entsprechend bespielt. Alle Wohnungen profitieren von der Zentrumszugehörigkeit und guter Besonnung. Die grosszügig gestalteten, zweiseitig ausgerichteten Aussenbereiche lassen den Bewohnern Spielraum für individuelle Einrichtungen.

Der Nutzermix mit Verkaufsgeschäften, Dienstleistern und Gastrobetrieben im Erdgeschoss ist zentrumsfördernd. Darüberliegend befinden sich in den oberen Geschossen die Wohnungen.

Impressionen
Pläne
Facts
  • Informationen
    Bauherrschaft HRS Real Estate AG, Frauenfeld Aufgabe Neubau Überbauung mit Handel & Wohnen Auftragsart Wettbewerb 1. Rang Leistungen 56 % Teilleistungen gem. SIA 102 Planung Wettbewerb 2012 Realisierung 2019–2021
  • Planerteam
    Totalunternehmerin HRS Real Estate AG, Frauenfeld Architekt RLC Architekten AG, Rheineck  Bauingenieur Wälli AG Ingenieure, St.Gallen HLKS-Ingenieur IG Energietechnik GmbH, St.Gallen Sanitäringenieur Tomaschett + Cioce AG, Rorschach Brandschutzplaner Wälli AG Ingenieure, St.Gallen Bauphysik Braune Roth AG, Rorschacherberg
  • Wettbewerb Rang
  • Geschossfläche m2
  • Gebäudevolumen m3