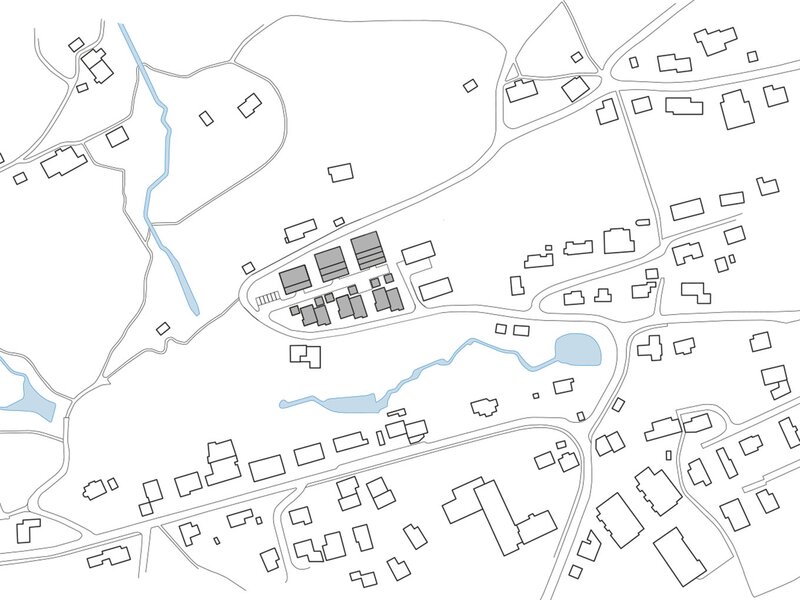
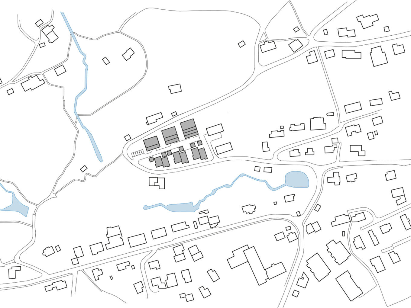
Doppel-Einfamilienhäuser & Terrassenwohnungen «Panorama», Rebstein Sonnenbergstrasse, Rebstein
Aufgabe

An der Sonnenbergstrasse entstehen sechs familienfreundliche Doppeleinfamilienhäuser und neun attraktive Terrassenwohnungen. Der Name offenbart, was die neun Terrassenwohnungen und sechs Doppeleinfamilienhäuser auszeichnet – Leben und Wohnen mit einer traumhaften Fernsicht mitten im Naherholungsgebiet.

Lösung // Herausforderungen

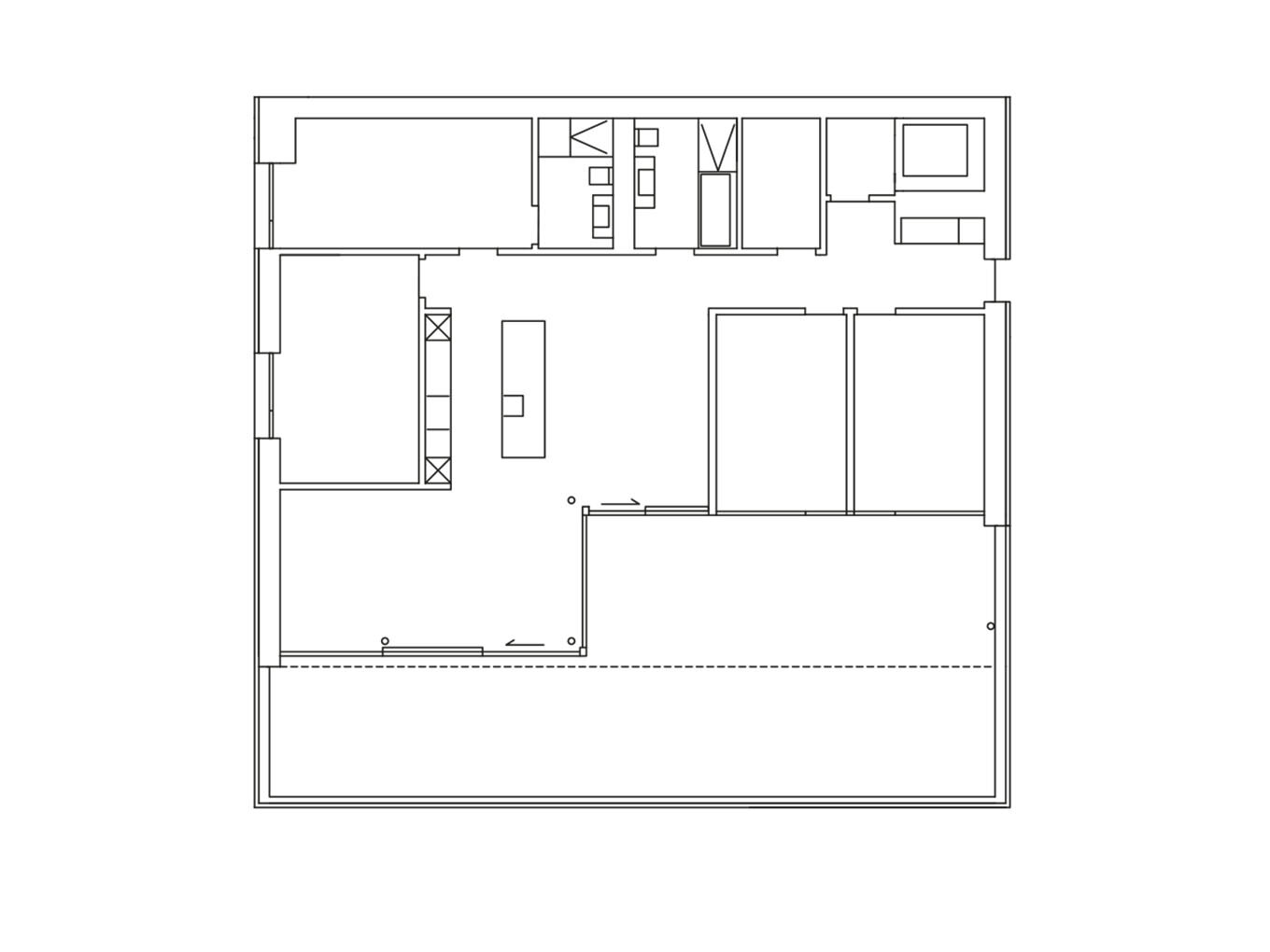
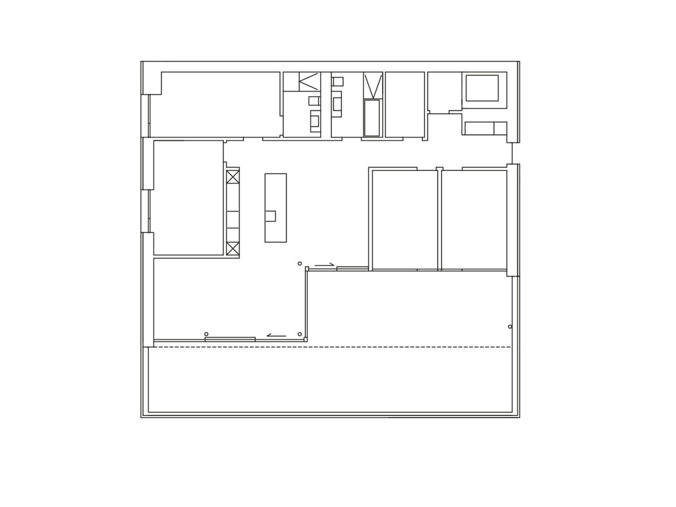
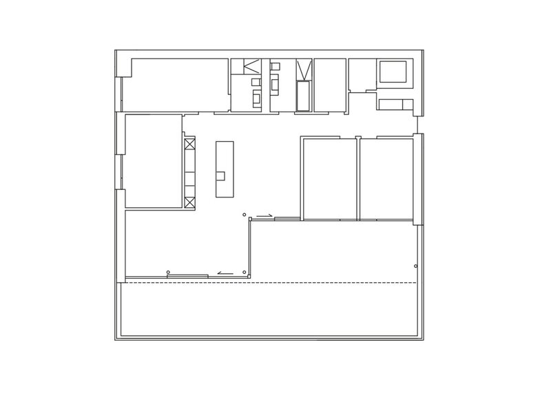
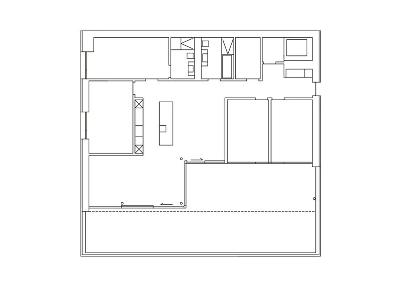
Hoher Kasten, Säntis und Pizol: Die Rede ist hier nicht von drei Ausflugszielen, sondern von den drei Terrassenhäusern. Pro Geschoss befindet sich je eine Wohnung mit einer grosszügigen Terrasse. Die Tiefgarage ist im Erdgeschoss direkt über die Sonnenbergstrasse erschlossen. Die Wohnungen können über die Tiefgarage mit dem Lift oder die Aussentreppe erreicht werden. Die Baukörper und Terrassen sind zugunsten der Privatsphäre geschossweise versetzt.

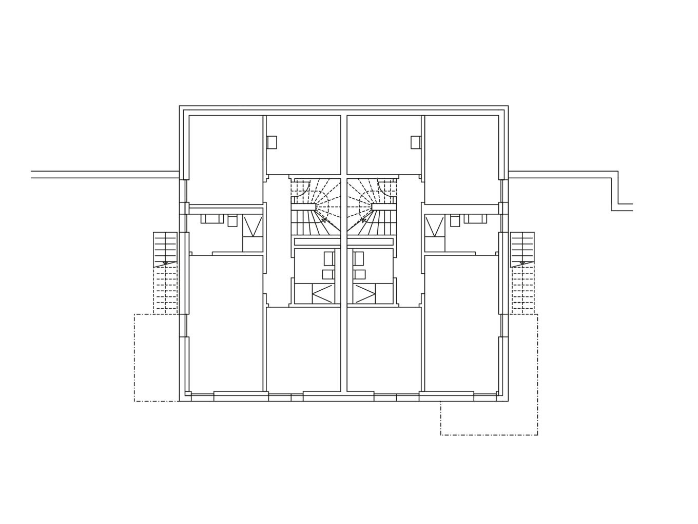
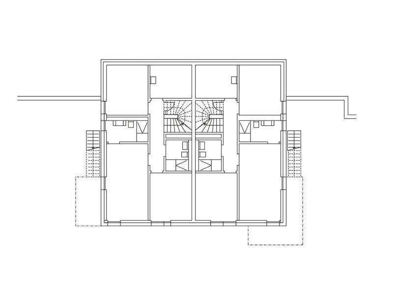
Drei Schwestern: Der Eingang der Doppel-Einfamilienhäuser befindet sich im Obergeschoss, wo sich auch die Küche und der Wohn- und Essbereich zugunsten der Aussicht befinden. Die «privaten» Räume wie Schlafzimmer und Bäder befinden sich im Erdgeschoss mit direktem Zugang zum Garten. Jedem Haus ist ein Carport mit zwei Abstellplätzen sowie ein zusätzlicher Besucherparkplatz zugewiesen. Jedes Haus verfügt über einen eigenen Garten.

Mehr zum Projekt:

www.panorama-rebstein.ch

Impressionen
Pläne
Facts
  • Informationen
    Bauherrschaft RLC Immoprojekt AG, Rheineck Aufgabe Projektentwicklung Neubau Wohnüberbauung Auftragsart Eigenentwicklung Leistungen Vorstudie, Vorprojekt, Bauprojekt, Ausführungsplanung, Käuferberatung Realisierung 2021–2023
  • Planerteam
    Projektentwicklung RLC Immoprojekt AG, Rheineck Architekt RLC Architekten AG, Rheineck Generalunternehmung Rhomberg Bau AG, St.Gallen  Geotechnik Andres Geotechnik, St.Gallen Bauingenieur Bänziger Partner AG, Widnau Strassen- und Werkleitungsplanung Wälli AG Ingenieure, Heerbrugg Elektroingenieur Marquart Elektroplanung, Altstätten HLKS-Ingenieur RBT Engineering GmbH, Flums Bauphysik Soundtherm GmbH, Winterthur Landschaftsarchitektur Alge Landschaftsarchitekten, Widnau
  • Anzahl Wohneinheiten