Kindergarten & Primarschule Felben-Wellhausen Bahnhofstrasse 17, 8552 Felben-Wellhausen
Aufgabe

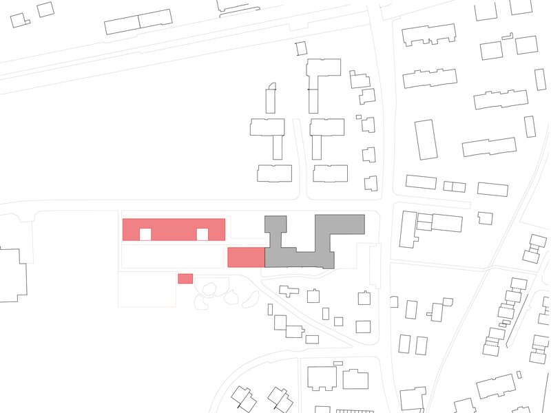
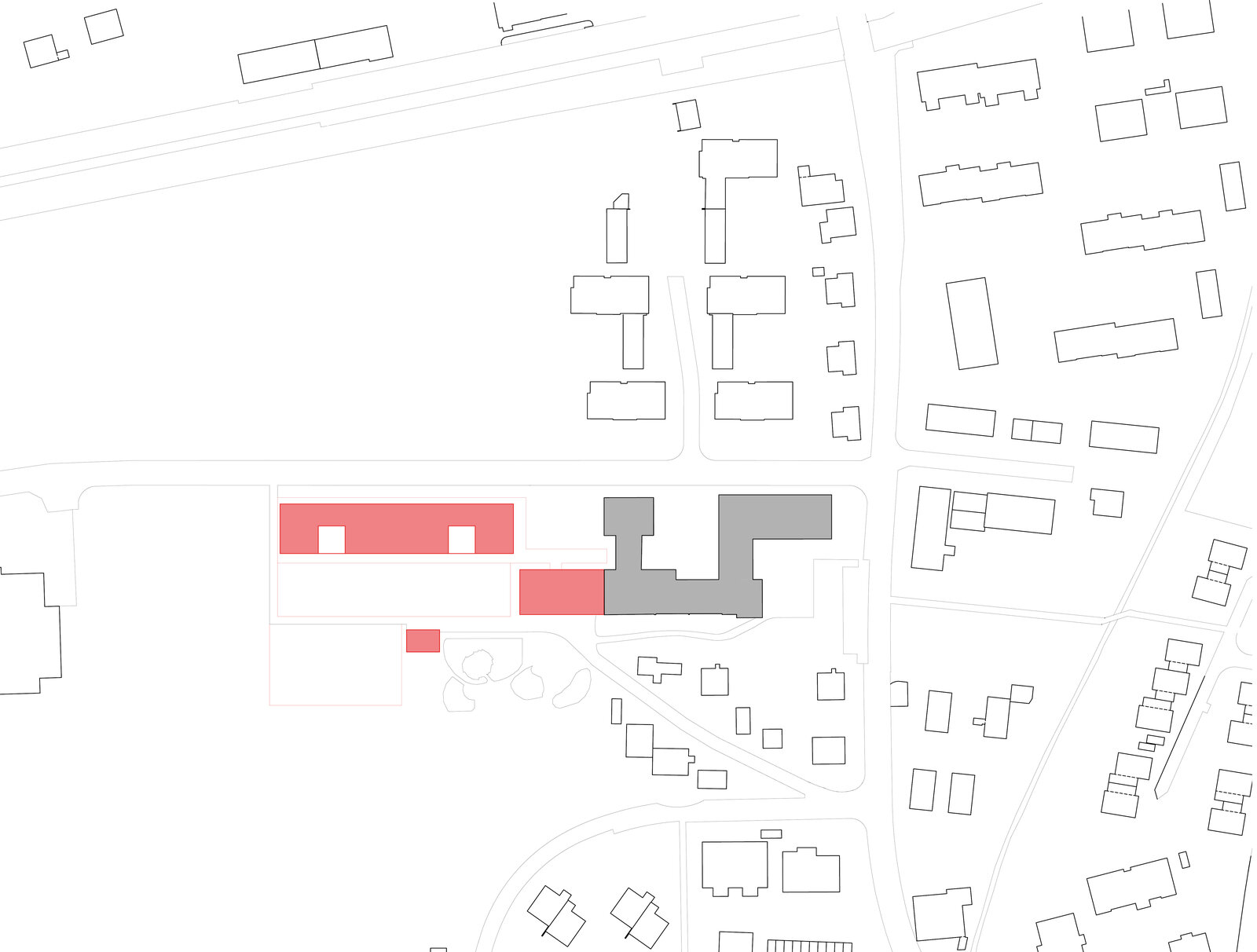
Der Erweiterungsbau vereint neue Räume für Sprachen, Handwerk und vier Kindergärten unter einem Dach. Die Schulanlage von 1961 wurde in ihrer Grundordnung weitergeführt, in der Länge ergänzt und aufgestockt. So entstand ein harmonisches Ensemble, das Bestehendes respektierte und zeitgemäss interpretierte.

Die abfallende Topografie wurde gezielt genutzt. Im Osten entstand ein barrierefreier Zugang, im Westen wurden die Höhendifferenzen über spielerische Stufen aufgefangen und zu Orten der Bewegung und Begegnung gestaltet.

Für den Kindergartenbereich kam ein additives System zum Einsatz, das allen vier Einheiten gleiche Qualität bot. Das eingeschossige, pavillonartige Holzgebäude schuf eine warme, überschaubare Welt mit direktem Bezug zum Aussenraum und zur Natur. Das gemeinsame Gartenzimmer, jeweils von zwei Kindergärten genutzt, wurde zum sinnlichen Zwischenraum und zu einem Ort für Entdeckung, Licht und Wachstum.

Der Neubau fügte sich selbstverständlich in die bestehende Struktur ein und brachte gleichzeitig eine offene, moderne Haltung zum Ausdruck. Architektur wurde hier als Lebensraum verstanden, in dem Lernen, Spielen und Wachsen Hand in Hand gingen.

Impressionen
Pläne
Facts
  • Informationen
    Bauherrschaft Schulgemeinde Felben-Wellhausen Aufgabe Erweiterung und Umbau Bestand Auftragsart Planerwahlverfahren 1. Rang Leistungen 58.5 % Teilleistungen gem. SIA 102 exkl. Baumanagement Planung 2023 Realisierung 2024–2025
  • Planerteam
    Architekt RLC Architekten AG, Winterthur Baumanagement PBM Planungs- und Baumanagement AG, St.Gallen Bauingenieur Ingenieurbüro A. Keller AG, Weinfelden Elektroplanung Amstein + Walthert AG, Frauenfeld HLKKS-Planung Amstein + Walthert AG, Frauenfeld Bauphysik WS Bauphysik GmbH, Bronschhofen Landschaftsarchitektur Fässler Freiraumplanung AG, Kreuzlingen
  • Geschossfläche KIGA m2
  • Geschossfläche PS m2
  • Gebäudevolumen KIGA m3
  • Gebäudevolumen PS m3
Weitere Referenzen