Digitalhotel Neu-Schönstatt Quarten // Planerwahlverfahren 1. Rang Josef-Kentenich-Weg 1, 8883 Quarten
Ausgangslage

Bereits 2015 veranstalteten die Marienschwestern einen Architekturwettbewerb zur Neuausrichtung für das in die Jahre gekommene Hotel von 1974/76. Damals noch mit dem Leitgedanken eines Gesundheitszentrums, überzeugte das Projekt von RLC. 

Aufgabe

Nach einer intensiven Konzeptüberarbeitung starteten im Mai 2020 die Bauarbeiten. Im Zusammenspiel von High Tech & Human Touch und der grandiosen Bergkulisse als Bühne für ein Naturschauspiel ist ein modernes Digitalhotel entstanden. Die feierliche Eröffnung fand im Juli 2021 statt.

Lösung // Herausforderungen

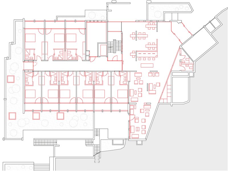
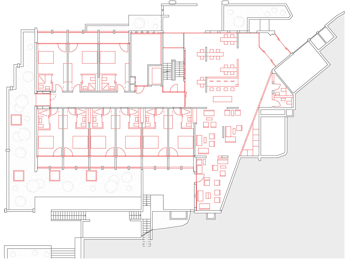
Die 59 Gästezimmer und 6 Apartments, alle mit Balkon, Berg- und Seesicht, schaffen dem Ferien- und Seminargast Raum für neue Perspektiven. Die Architektur ist schlicht und zeitlos gehalten – vermittelt Ruhe. Natürliche Materialien und Elemente verleihen dem Hotel eine harmonische Atmosphäre. 

Mit dem zusätzlichen Angebot von Wellness, Restaurant, Seminarräumen, Bühnensaal etc. können die Bedürfnisse der Ruhe suchenden Individualreisenden wie auch die Wünsche von Familien und jene des Businessgastes erfüllt werden.

Impressionen
Pläne
Facts
  • Informationen
    Bauherrschaft Verein Schönstätter Marienschwestern, Quarten Aufgabe Umbau und Sanierung Hotel Auftragsart Wettbewerb 1. Rang Leistungen Vorstudien, Projektierung, Ausschreibung, Realisierung Realisierung 2020–2021
  • Planerteam
    Architekt RLC Architekten AG, Rheineck Bauingenieur wlw Bauingenieure AG, Mels Elektroingenieur Inelplan AG Elektroingenieure, Buchs HLKKS- Ingenieur Vadea AG, St. Gallen  Bauphysik BB&A Buri Bauphysik & Akustik AG, Trübbach Brandschutz Vadea AG, St. Gallen